Добавить в корзинуПозвонить
Найти в Дзене

Интерьер видовой квартиры с террасой

Владельцы жилья в ЖК "Ривер Парк Коломенское" - молодая семья с ребенком, которая любит современную эстетику и стиль. Квартира имеет площадь в 139,7 кв.м., что позволяет "разгуляться" фантазии и использовать пространство по максимуму. Площадь после перепланировки уменьшилась на почти 4 кв.м Входная зона лаконична и минималистична. Для стен выбрана декоративная штукатурка под микроцемент, на полу керамогранит. Радиусная стена и гардероб оформлены шпоном дуба. Выходим в кухню-гостиную. Помещение объединено, очень просторно и разделено на кухонную зону, гостиную, столовую, имеется выход на террасу. В доме предусмотрено панорамное остекление, квартиры видовые Особого внимания заслуживает кухня. Она будет произведена в собственной столярной мастерской компании PLATINO mobili. Островная часть предназначена для готовки: здесь мы разместили варочную панель и вытяжку. С одной стороны острова - выдвижные ящики для хранения кухонной утвари, с другой - винный шкаф и витрина со стеклянными деко

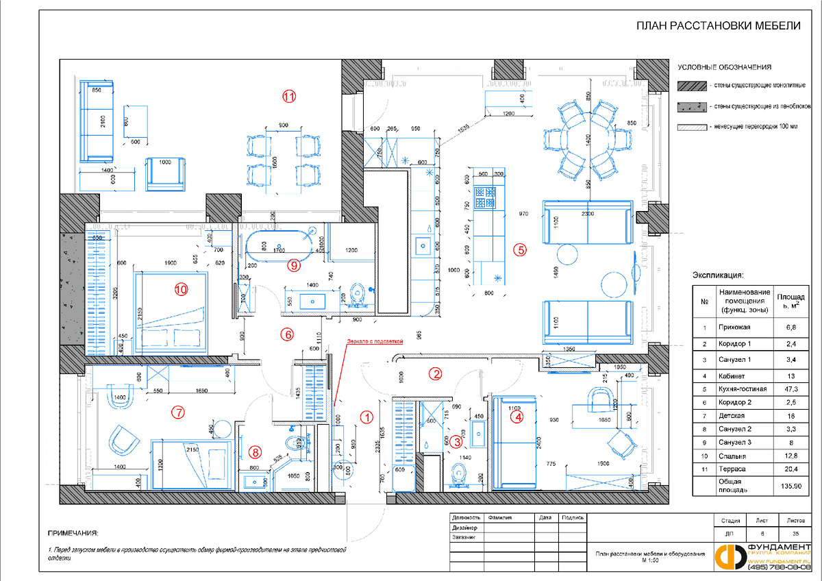
Владельцы жилья в ЖК "Ривер Парк Коломенское" - молодая семья с ребенком, которая любит современную эстетику и стиль. Квартира имеет площадь в 139,7 кв.м., что позволяет "разгуляться" фантазии и использовать пространство по максимуму. Площадь после перепланировки уменьшилась на почти 4 кв.м

планировочное решение
планировочное решение

Входная зона лаконична и минималистична. Для стен выбрана декоративная штукатурка под микроцемент, на полу керамогранит. Радиусная стена и гардероб оформлены шпоном дуба.

Входная зона
Входная зона

Выходим в кухню-гостиную. Помещение объединено, очень просторно и разделено на кухонную зону, гостиную, столовую, имеется выход на террасу. В доме предусмотрено панорамное остекление, квартиры видовые

Вид на кухню-гостиную
Вид на кухню-гостиную

Особого внимания заслуживает кухня. Она будет произведена в собственной столярной мастерской компании PLATINO mobili. Островная часть предназначена для готовки: здесь мы разместили варочную панель и вытяжку. С одной стороны острова - выдвижные ящики для хранения кухонной утвари, с другой - винный шкаф и витрина со стеклянными декоративными фасадами. Кухня также имеет скругления, визуальную асимметрию, рифление. Для столешницы выбран натуральный камень кварцит.

Обеденный стол расположили ближе к панорамным окнам. Благодаря им в квартире много естественного света. Тем не мене мы предусмотрели разнообразные сценарии освещения, использовав, например, закарнизную подсветку. Такие световые "игры" помогут подобрать освещение под настроение и погодные условия.

-6
Обеденная зона
Обеденная зона

Для главы семьи мы отвели рабочий кабинет. Он выглядит брутально и роскошно. Здесь расположен диван с раскладным механизмом. Комната при необходимости может быть использована в качестве гостевой. Для витрины, шкафа, рабочего стола и оконных откосов выбран шпон в оттенке "шоколадный дуб" и африканский эбен. Стены окрашены.

Кабинет
Кабинет

Санузел с постирочной примечателен тем, что позволяет просушивать белье и мелкие вещи внутри шкафа. Фасады с отверстиями обеспечивают естественную вентиляцию, но также мы добавили внутрь дополнительную вентиляционную решетку.

Детская для мальчика 9 лет также лаконична, светла и просторна. Здесь достаточно место для отдыха, учебы и творчества.

Совмещенный санузел при детской выполнен в похожей цветовой гамме.

Спальня укутывает теплом и безмятежностью, настраивает на отдых. В плане декора довольна сдержанна.

Ванная комната, напротив, получилась очень яркой за счет активного рисунка керамогранита под мрамор. Здесь размещены как душевая со встроенной сантехникой, так и отдельно стоящая ванна у окна.

-16

Терраса оборудована уличной плетеной мебелью из ротанга, на полу использована специальная террасная доска.

Как вам такой проект? Проект находится в стадии ремонта и скоро там начнется сборка мебели. Рассчитать стоимость ремонта можно с помощью нашего сайта. Смотреть портфолио https://remont-f.ru/portfolio/project.php