Добавить в корзинуПозвонить
Найти в Дзене

🏡 Теплый, уютный и надежный дом из бруса с мансардой – идеальное пространство для вашей семьи!

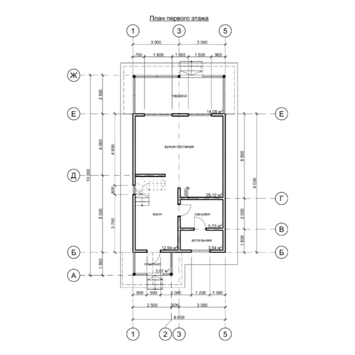
Представьте: вы заходите в просторную входную дверь, с порога ощущающую тепло натурального дерева. В доме светло, пахнет свежим брусом, а из окон открывается вид на природу. ✅ Просторная кухня-гостиная – сердце дома, где по утрам так приятно пить кофе, а вечером собираться с семьей и друзьями.
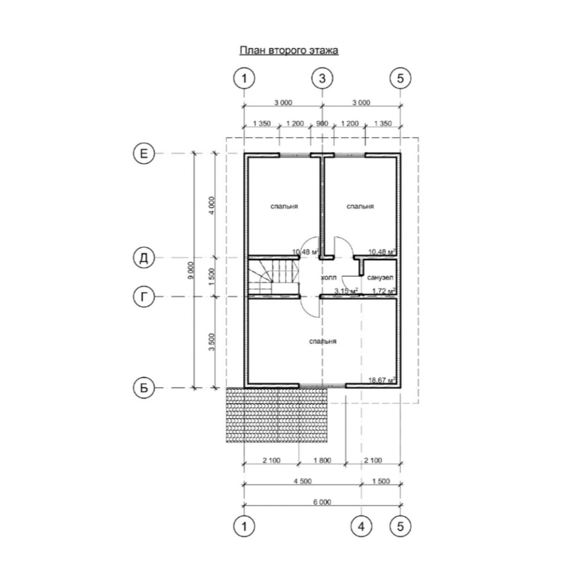
✅ Три уютные спальни на втором этаже – у каждого свое личное пространство для отдыха и уединения.
✅ Два санузла – больше комфорта для семьи.
✅ Отдельная котельная – тепло и удобно в любое время года.
✅ Просторная веранда 2,5×6 м – наслаждайтесь свежим воздухом и семейными ужинами на открытой площадке. ✔ Материал – строганный брус 150х150 мм, уложенный на джутовый утеплитель.
✔ Фундамент на выбор: блоки, винтовые сваи или ленточный
✔ Перекрытия и лаги – прочный брус 50×200 мм и 50×150 мм.
✔ Крыша – двускатная, с выносом 45 см, покрытие на выбор: металлочерепица, профлист или ондулин. Этот дом создан для тех, кто мечтает о загородной жизни в теплом, надежном и экологичном жилье. Он идеально
Оглавление

Представьте: вы заходите в просторную входную дверь, с порога ощущающую тепло натурального дерева. В доме светло, пахнет свежим брусом, а из окон открывается вид на природу.

🌿 Что вас ждет в этом доме?

Просторная кухня-гостиная – сердце дома, где по утрам так приятно пить кофе, а вечером собираться с семьей и друзьями.
Три уютные спальни на втором этаже – у каждого свое личное пространство для отдыха и уединения.
Два санузла – больше комфорта для семьи.
Отдельная котельная – тепло и удобно в любое время года.
Просторная веранда 2,5×6 м – наслаждайтесь свежим воздухом и семейными ужинами на открытой площадке.

Дом снаружи
Дом снаружи

🔨 Надежность и комфорт

Материал – строганный брус 150х150 мм, уложенный на джутовый утеплитель.
Фундамент на выбор: блоки, винтовые сваи или ленточный
Перекрытия и лаги – прочный брус 50×200 мм и 50×150 мм.
Крыша – двускатная, с выносом 45 см, покрытие на выбор: металлочерепица, профлист или ондулин.

Этот дом создан для тех, кто мечтает о загородной жизни в теплом, надежном и экологичном жилье. Он идеально подойдет для семьи с детьми – просторный, удобный, с продуманной планировкой.

📞 Позвоните, и мы подберем идеальный вариант для вас!

+7 (906)-908-96-04
Больше проектов
смотри тут