Добавить в корзинуПозвонить
Найти в Дзене

Одноэтажный дом с террасой

Как и всегда, в этом доме внесены некоторые изменения по желанию наших заказчиков. В общем, это крайне практичное и хорошо оснащенное строение. Краткие характеристики: Отдельно стоит отметить террасу, которая появилась, как отклик на окружающий рельеф. Её функциональность превосходит самые смелые ожидания. Это и основной вход в дом и место для организации досуга и просто место, которое радует каждый день своим видом. Из технических особенностей стоит отметить широкие свесы кровли, которые надежно защищают фасад и создают уют, надежную металлическую систему водосбора, интегрированную в конструкции террасы и почти невидимые, но функциональные ограждения. Конечно, дом обеспечен всем необходимым инженерным оборудованием. Одним словом, если нужна большая, просторная и светлая квартира с видом, свежим воздухом и территорией, где всегда есть, чем заняться, давайте строить дом!
Дом, построенный по мотивам проекта S23
Дом, построенный по мотивам проекта S23

Как и всегда, в этом доме внесены некоторые изменения по желанию наших заказчиков. В общем, это крайне практичное и хорошо оснащенное строение.

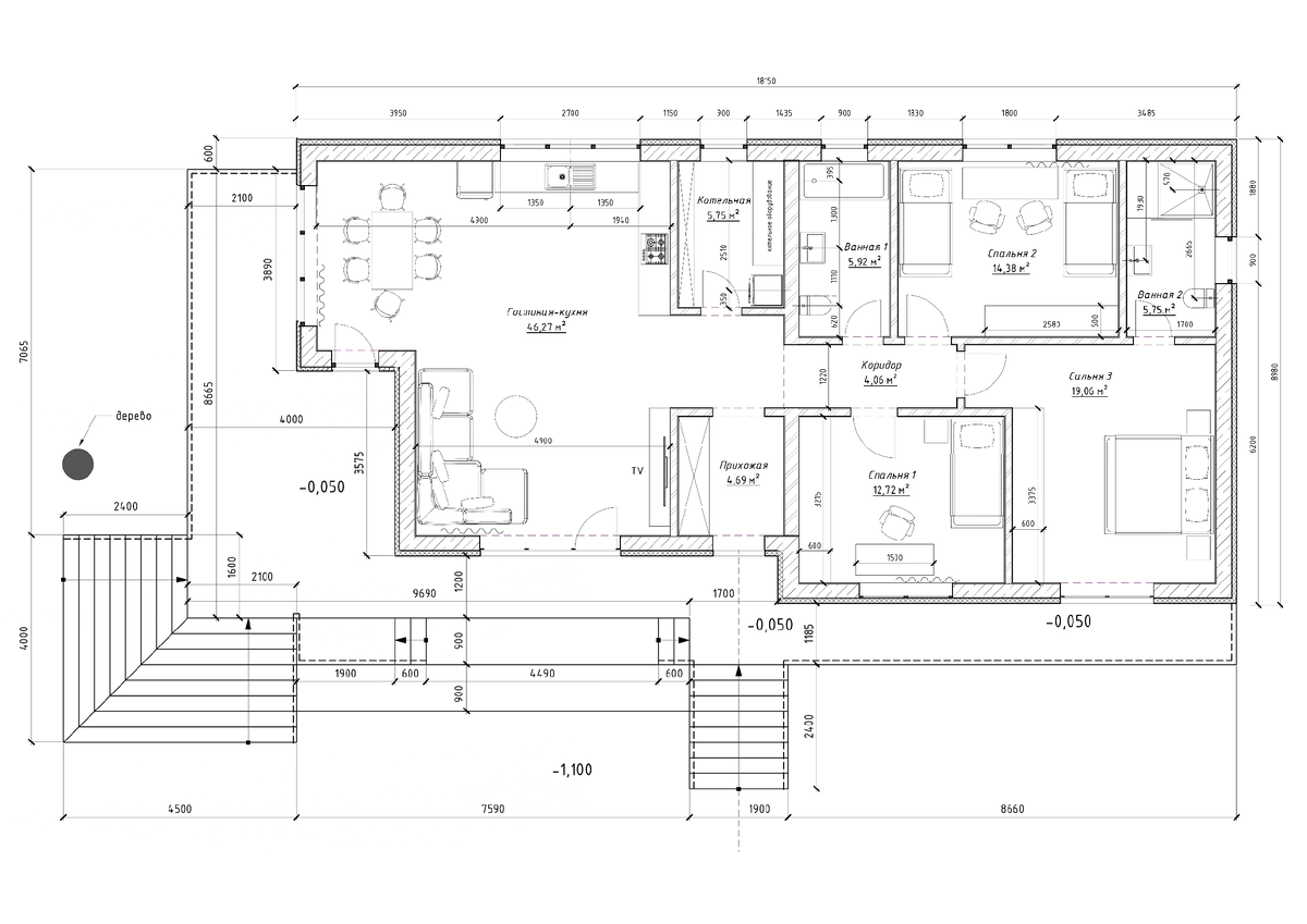
Рабочий проект
Рабочий проект

Краткие характеристики:

  • площадь: 118 м2
  • материал стен: газоблок (ограждающие), кирпич (несущие и перегородки)
  • окна: металлопластиковые 70 мм пятикамерные с тройным остеклением + ламинация снаружи
  • кровля: металлочерепица 0,5 мм по ГОСТ
  • фундамент: ростверк по буронабивным сваям
  • перекрытие пола: монолитный железобетон 200 мм с двойным армированием

Отдельно стоит отметить террасу, которая появилась, как отклик на окружающий рельеф. Её функциональность превосходит самые смелые ожидания.

Терраса с ограждениями
Терраса с ограждениями

Это и основной вход в дом и место для организации досуга и просто место, которое радует каждый день своим видом.

Дом на рельефе
Дом на рельефе

Из технических особенностей стоит отметить широкие свесы кровли, которые надежно защищают фасад и создают уют, надежную металлическую систему водосбора, интегрированную в конструкции террасы и почти невидимые, но функциональные ограждения. Конечно, дом обеспечен всем необходимым инженерным оборудованием.

Свесы кровли с отделкой деревом
Свесы кровли с отделкой деревом

Одним словом, если нужна большая, просторная и светлая квартира с видом, свежим воздухом и территорией, где всегда есть, чем заняться, давайте строить дом!