Добавить в корзинуПозвонить
Найти в Дзене
ГК «Ленстройтрест»

Что делать, если соседям становится тесно

Соседские комьюнити-клубы давно стали must have и одной из основных составляющих комфортной жилой среды. Но чтобы действительно быть полезными для жителей, такие пространства должны отвечать сразу нескольким ключевым требованиям. И более того - постоянно меняться. Для чего – покажем на конкретном примере. Среди таких требований - многофункциональность, продуманное зонирование, эргономичность, эстетика дизайна, эмоциональный комфорт – все должно работать на удовлетворение потребностей жителей в общении и создание позитивной атмосферы вокруг. Такие подходы отражены в новом пространстве «ЖИВИ Клуб», которое компания «Ленстройтрест» скоро откроет в квартале «Окла».
Для особого квартала Компания «Ленстройтрест» уже несколько лет развивает в своих проектах инфраструктуру добрососедства и добилась в том немалых успехов. Усилия застройщика трансформировались в сеть соседских пространств «ЖИВИ Клуб», в которых сегодня проходит более 6000 мероприятий в год. В общей сложности в них участвуют свы
Оглавление

Соседские комьюнити-клубы давно стали must have и одной из основных составляющих комфортной жилой среды. Но чтобы действительно быть полезными для жителей, такие пространства должны отвечать сразу нескольким ключевым требованиям. И более того - постоянно меняться. Для чего – покажем на конкретном примере.

Среди таких требований - многофункциональность, продуманное зонирование, эргономичность, эстетика дизайна, эмоциональный комфорт – все должно работать на удовлетворение потребностей жителей в общении и создание позитивной атмосферы вокруг. Такие подходы отражены в новом пространстве «ЖИВИ Клуб», которое компания «Ленстройтрест» скоро откроет в квартале «Окла».

Визуализация будущего «ЖИВИ Клуба» в квартале «Окла» - торжество эстетики и комфорта
Визуализация будущего «ЖИВИ Клуба» в квартале «Окла» - торжество эстетики и комфорта

Для особого квартала

Компания «Ленстройтрест» уже несколько лет развивает в своих проектах инфраструктуру добрососедства и добилась в том немалых успехов. Усилия застройщика трансформировались в сеть соседских пространств «ЖИВИ Клуб», в которых сегодня проходит более 6000 мероприятий в год. В общей сложности в них участвуют свыше 8000 человек ежемесячно. Соседские пространства открыты в кварталах «Юттери» и «Янила», а также в жилом комплексе «Окла» на севере Приморского района Петербурга.

«ЖИВИ Клуб» в «Окла» – особенное пространство возможностей. Обычно застройщик открывает их в уже сложившихся кварталах. А вот в «Окле» клуб появился два года назад, хотя до завершения проекта ещё далеко даже сейчас. Как вспоминают сотрудники, хотя жителей и было мало, но сама аудитория оказалась динамичной и более требовательной по сравнению с резидентами удаленных от центра города кварталов. А теперь это самый быстро растущий клуб – за последние 12 месяцев число посетителей увеличилось втрое. В минувшем году было принято решение перебазировать его в более крупное по площади пространство. Проект уже готов, а сам переезд намечен на начало лета. В ближайшее время застройщик приступает к отделочным работам.

Сценарий 100+

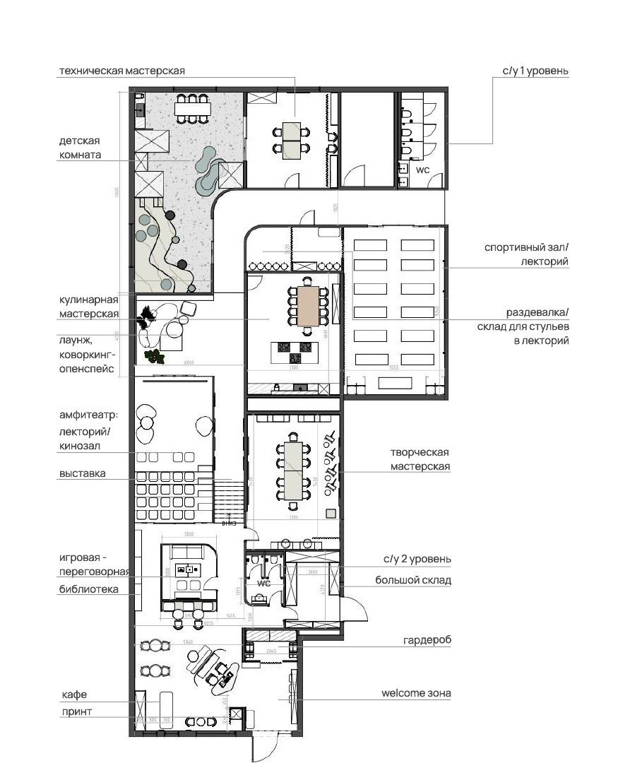
Новый «ЖИВИ Клуб» в «Окле» разместится на первом этаже недавно сданного в эксплуатацию многоэтажного паркинга и займет порядка 700 кв. м новых помещений. Чтобы сделать его удобным и максимально востребованным, проектировщики сделали ставку на создание гибких многофункциональных пространств с проработкой мельчайших деталей.

Схема планировки нового соседского пространства в «Окле»
Схема планировки нового соседского пространства в «Окле»


Такой подход начинается уже с welcome-зоны. Небольшая входная группа вместе с ресепшн будет обрамлена светопрозрачной перегородкой. На входе появится мерч-стойка, витрина для продажи творческих работ жителей, а также обтянутый текстилем информационный стенд до потолка: в любое место такого планшета можно крепить плакаты и расписание. Продуманное диагональное размещение ресепшен позволит скрыть «тайный» гардероб с подвесным шкафом во всю длину стены, а также сформирует свободные проходы во все остальные помещения.

Их будет немало – больше десятка с различным функциональным наполнением. Возле ресепшн расположится уютная зона партнерской кофейни. Рядом – закрытый модуль «игровой/переговорной», где разные сценарии освещения и стены с высокой звукоизоляцией обеспечат подходящую деловую или игровую атмосферу. Обособленный лаунж-уголок с уютной мягкой мебелью, приставками и настольными играми позволит отдохнуть от повседневной рутины и заняться релаксацией. Либо поработать – одновременно это коворкинг-опенспейс. Не позабыты и массовые события: просторный амфитеатр может служить кинозалом, он легко трансформируется с помощью передвижных перегородок и превращается в уютное обособленное пространство для проведения лекционных мероприятий.

Амфитеатр можно быстро превратить из кинозала в лекционное пространство или книжный клуб
Амфитеатр можно быстро превратить из кинозала в лекционное пространство или книжный клуб


Не оставят без внимания и детские активности. Изолированная игровая комната представляет собой многоуровневую конструкцию из трех «домиков» с различными игровыми и спортивными элементами. Здесь поместится большой стол на 12 человек для проведения мастер-классов и праздников, а также компактная кухня.

Эмоциональный комфорт

Продуманных пространств в новом «ЖИВИ Клуб» будет немало. Все помещения легко адаптировать под любые сценарии использования – работу, отдых, досуг. К примеру, большой спортивный зал с раздевалкой можно использовать для занятий йогой или в качестве еще одного лектория на 50 мест. Помещения «ЖИВИ Клуба» также будут включать творческую, техническую и кулинарную мастерские, библиотеку на 2000 книг, галерею для выставки творческих работ жильцов, два вместительных модуля для складского хранения (стульев и т. д.).

Ещё один пример помещения-трансформера: легким движением руки (а точнее – перемещением стульев) лекторий превращается в зал для занятия йогой
Ещё один пример помещения-трансформера: легким движением руки (а точнее – перемещением стульев) лекторий превращается в зал для занятия йогой


Важно, что конфигурация помещений, использование радиусных перегородок в коридорах обеспечивает свободный проход. Это позволяет выигрывать полезную площадь и формировать эмоционально комфортные пространства. Все помещения могут функционировать одновременно, не мешая друг другу. Этому способствует качественная звукоизоляция и мебель, разные сценарии освещения и удобная навигация.

Словом, жители нового «ЖИВИ Клуба» в «Окле» смогут свободно заниматься всем: работать, учиться, развивать хобби и собственный бизнес, общаться, отмечать праздники и отдыхать.

Еще один современный комьюнити-клуб девелопер планирует открыть в голландском квартале «Янила», где жителям также стало тесно в стенах старого помещения. Проект уже в финальной стадии разработки, а переезд намечен на лето-осень 2025 года.

Переходите на сайт, чтобы увидеть больше предложений от ГК "Ленстройтрест". Узнать подробности можно также по телефону +7 (812) 213-75-80