Добавить в корзинуПозвонить
Найти в Дзене

Зачем нужен проект частного дома: важные аспекты для комфортной жизни

Каждый, кто задумывается о строительстве собственного дома, рано или поздно задается вопросом о проектировании. Проект частного дома не только определяет его внешний вид, но и влияет на комфорт, функциональность и, что немаловажно, стоимость. Так зачем же нужен проект дома? Давайте разберемся! Первое, что приходит на ум – это возможность планирования. Проект представляет собой детализированную документацию, которая включает в себя все необходимые чертежи, спецификации и меморандумы, и служит основой для осуществления строительства. Он отвечает на множество вопросов: какую площадь будет занимать дом? Как распределятся комнаты? Какие материалы следует использовать? Каждый точный расчет важен для того, чтобы избежать лишних трат и переделок в будущем. Зачем нужны проблемы, если можно заранее продумать каждую деталь? Без проекта можно столкнуться с различными осложнениями, такими как неправильное распределение пространства или недостаточное количество окон и дверей. Это, в свою очередь, м
Оглавление

Узнайте, зачем нужен проект частного дома, чтобы создать идеальное пространство для жизни, сохранив при этом свои деньги и нервы.

Введение

Каждый, кто задумывается о строительстве собственного дома, рано или поздно задается вопросом о проектировании. Проект частного дома не только определяет его внешний вид, но и влияет на комфорт, функциональность и, что немаловажно, стоимость. Так зачем же нужен проект дома? Давайте разберемся!

Зачем нужен проект частного дома

Первое, что приходит на ум – это возможность планирования. Проект представляет собой детализированную документацию, которая включает в себя все необходимые чертежи, спецификации и меморандумы, и служит основой для осуществления строительства. Он отвечает на множество вопросов: какую площадь будет занимать дом? Как распределятся комнаты? Какие материалы следует использовать?

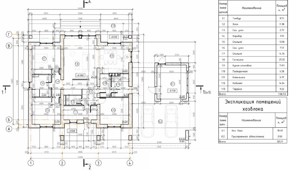
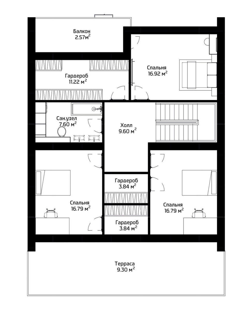
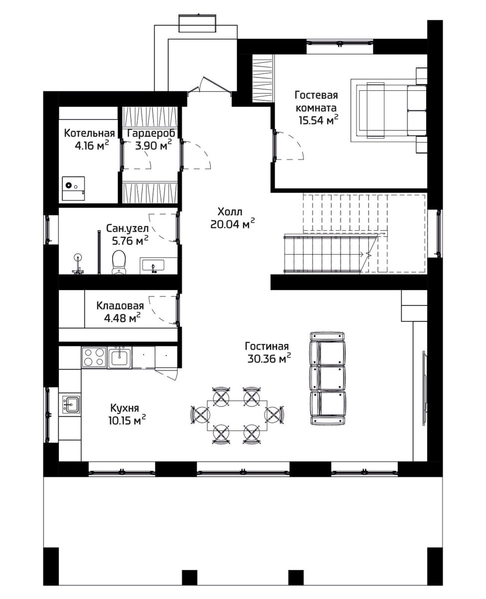
План дома
План дома

Каждый точный расчет важен для того, чтобы избежать лишних трат и переделок в будущем. Зачем нужны проблемы, если можно заранее продумать каждую деталь? Без проекта можно столкнуться с различными осложнениями, такими как неправильное распределение пространства или недостаточное количество окон и дверей. Это, в свою очередь, может сказаться на качестве жизни в новом доме.

Проект также позволяет заранее учесть экологические и климатические условия местности. Например, если вы живете в районе с холодным климатом, важно учесть размеры окон, уровень теплоизоляции и расположение дома относительно сторон света. Грамотное проектирование позволяет создать максимально комфортные условия для проживания.

Экономия времени и денег

Проект частного дома – это не только основа для строительства, но и шанс сэкономить время и деньги. Да, вначале может казаться, что разработка проекта потребует некоторых вложений, но это всего лишь первоначальные затраты. В дальнейшем, имея четкий план, можно избежать множества ошибок, которые, как правило, стоят неимоверно дорого.

Зачастую люди, которые пренебрегают проектом, теряют не только средства, но и время, ведь переделки и исправления влечут за собой дополнительные затраты на труд и материалы.

Создание уникальности и стиля

Являясь хозяином дома, который будете обустраивать и обживать, еще одной важной ступенью является возможность создать уникальный стиль. Заказав проект, вы можете работать с архитектором, который поможет вам визуализировать ваши идеи и преобразовать их в реальность.

Вы сможете выбрать не только фасад здания, но и продумать внутреннюю планировку, учитывая пожелания всех членов семьи. Это важный аспект, который делает дом не просто зданием, а настоящим уютным гнездом.

Часто задаваемые вопросы

1. Каков срок разработки проекта частного дома?

Сроки зависят от сложности проекта и загруженности проектировщиков, но в среднем это занимает от одного до трех месяцев.

2. Стоит ли обращаться к профессионалу?

Определенно стоит! Профессионалы помогут избежать множества последствий, связанных с неправильным планированием.

3. Можно ли изменить проект во время строительства?

Да, в некоторых случаях это возможно, но рекомендуется избегать изменений, чтобы не нарушить последовательность работы и бюджет.

Заключение

Проект частного дома – это важный инструмент в строительстве, который помогает избежать ненужных расходов и облегчить процесс создания вашего идеального пространства для жизни. Зачем нужен проект частного дома? Чтобы сделать вашу жизнь комфортной, а дом — уютным и красивым. Не пренебрегайте этой важной частью, и ваш дом будет радовать вас долгие годы!

Мы с радостью поможем закрыть все вопросы по проектированию и строительству дома. Подробнее https://lider-stroy.by/