Добавить в корзинуПозвонить
Найти в Дзене
ДОМ ОТ ПРОФИ

ИСТОРИЯ СТРОИТЕЛЬСТВА ДВУХЭТАЖНОГО ДОМА С ГАРАЖОМ

Сергей обратился к нам за строительством дома в 2022 году. Приехал в офис на встречу, и в итоге заключил с нами договор на проектирование 🔰 За основу взяли проект 23-216 и внесли изменения: - Отзеркалили дом слева на право - Удлинили гараж в длину дома - Встроили в конец гаража бойлерную (цель освободить место под сауну внутри дома) - Вшили в планировки сауну 🔰 Гараж мы сделали на едином фундаменте с домом, благодаря этому решению строительство дома вышло гораздо выгоднее. 🔰 В августе закончили разработку проекта 23-242 ▪️Общая площадь 242 кв.м. ▪️Площадь помещений 173 кв.м. ▪️Габариты 13,1х11,3 м 🔰 План 1 этажа - просторная кухня-гостиная 31 кв.м. - спальня - сауна с душевой - санузел - гараж с бойлерной 🔰 План 2 этажа - 3 спальни - гардеробная - кабинет ✔️ Осенью начали строительство ✔️ К декабрю поставили стены 1 и 2 этажа ✔️ В феврале 2023 года закончили строительство теплого контура дома Мы счастливы, что у Сергея и его семьи есть свой дом! Переходите в телеграм-бот, чтобы уз

Сергей обратился к нам за строительством дома в 2022 году.

Приехал в офис на встречу, и в итоге заключил с нами договор на проектирование

🔰 За основу взяли проект 23-216 и внесли изменения:

- Отзеркалили дом слева на право

- Удлинили гараж в длину дома

- Встроили в конец гаража бойлерную (цель освободить место под сауну внутри дома)

- Вшили в планировки сауну

🔰 Гараж мы сделали на едином фундаменте с домом, благодаря этому решению строительство дома вышло гораздо выгоднее.

🔰 В августе закончили разработку проекта 23-242

▪️Общая площадь 242 кв.м.

▪️Площадь помещений 173 кв.м.

▪️Габариты 13,1х11,3 м

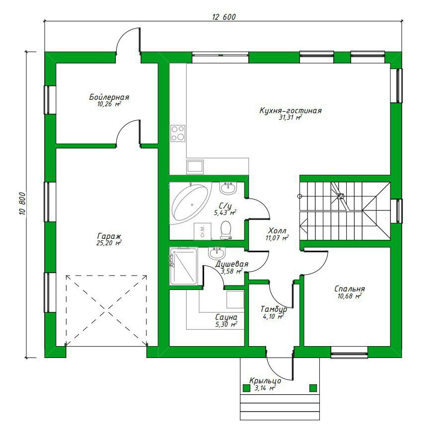
🔰 План 1 этажа

- просторная кухня-гостиная 31 кв.м.

- спальня

- сауна с душевой

- санузел

- гараж с бойлерной

-2

🔰 План 2 этажа

- 3 спальни

- гардеробная

- кабинет

-3

✔️ Осенью начали строительство

✔️ К декабрю поставили стены 1 и 2 этажа

✔️ В феврале 2023 года закончили строительство теплого контура дома

-4

Мы счастливы, что у Сергея и его семьи есть свой дом!

-5

Переходите в телеграм-бот, чтобы узнать стоимость строительства дома по проекту 23-242