Найти в Дзене
ЭТО ВАШ ИНТЕРЬЕР

За такую хрущевку мне не стыдно! Смотрите, что я сделала в запущенной "однушке" площадью всего 29 м² за 3 месяца

Оглавление

В наше время многие люди думают о том, куда вложить свои накопленные деньги, чтобы начать получать пассивный доход. Именно с этой целью наша сегодняшняя героиня решила приобрести крошечную однокомнатную квартиру, которая находится в обычном доме "хрущевского" периода (дом построен в 1964 году).

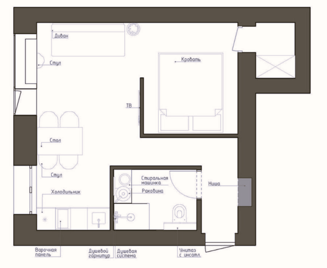
Площадь квартиры составляла всего 29,8 "квадратов", но для краткосрочной аренды этой площади вполне достаточно. Ремонта здесь не было много лет, поэтому перед тем, как начать сдавать её в аренду, хозяйке пришлось вложиться будущий интерьер.

Для создания продуманного дизайна хозяйка обратилась за помощью к дизайнеру — Насте Ляпиной. Нужно было создать светлое пространство, и Анастасия решила использовать контрастные сочетания. За основу дизайнер взяла жёлтый и небесно-изумрудный оттенки.

Проект

  • Местоположение: г. Красноярск
  • Площадь квартиры: 29,8 квадратных метров
  • Владельцы: девушка (квартира будет сдаваться в краткосрочную аренду для одного или двух человек)
  • Бюджет: 1 200 000 рублей
-2

Прихожая

Стены во входной группе покрыты светлой моющейся краской, а пол выполнен из керамогранита, который имитирует деревянное покрытие.

-3

Справа от входной двери располагается глубокая ниша, которую дизайнер решила выделить ярким желтым цветом. В этой нише установлена открытая система хранения с тумбой для обуви.

Кухня-гостиная

Стены здесь также окрашены светлой краской, а для пола выбрали классический ламинат. В квартире была сделана перепланировка, после которой кухня стала единым целом с гостиной. Правда, чтобы узаконить эту перепланировку, пришлось отказаться от газа в квартире. Теперь здесь вместо газовой плиты установлена двухконфорочная индукционная панель.

-5

Линейный кухонный гарнитур был сделан на заказ. Площадь кухонной зоны позволяла сделать гарнитур намного больше, но так как квартира предназначена для краткосрочной аренды, в большом гарнитуре не было смысла, да и стоил он сразу в два раза дороже.

Фасады верхнего яруса имитируют деревянную поверхность, а нижние фасады выполнены в сложном небесном оттенке. Для фартука выбрали прямоугольную плитку приглушенного желтого оттенка. Холодильник выбрали компактный и установили его под рабочей столешницей.

-7

Между кухней и гостиной была организована небольшая столовая зона с яркими акцентными стульями, которые выполнены в желтом оттенке. Радиаторы отопления заменили на новые и скрыли их за экранами из фанеры. Эти экраны крепятся на магнитные крепления. Далее расположили стильный диванчик и телевизор.

Спальня

В глубине комнаты была организована небольшая спальня, которую частично прикрыли перегородкой. Здесь расположили двуспальную кровать в серой обивке. Стену за изголовьем решили выделить цветом, поэтому её окрасили в приятный желтый оттенок. Здесь также есть дверь, которая ведет в небольшую изолированную гардеробную.

Ванная комната

Пол в ванной комнате выложили белой плиткой в сочетании с узорчатой. Стены облицевали плиткой и покрыли водостойкой краской серо-синего цвета.

Напротив входа обустроили зону для умывания с раковиной и стиральной машинкой. Поскольку свободного места было не так много, от обычной ванны решили отказаться и установили душевую кабину.

-11

Если вам понравилась статья, то не забудьте поставить лайк и подписаться, чтобы не пропустить новый материал!

Так же пишите в комментариях, что вам понравилось в этом проекте, а что вызывает сомнения.