Найти в Дзене

Ремонт как пазл, собирается по кусочкам 🧩

Это как сериал: вроде бы знаешь, чем всё закончится, но каждый день новые сюжетные повороты и неожиданности 🥴 Кажется, что всё просто: разработал дизайн, согласовал материалы, купил чистовые материалы, нанял рабочих — и готово! Но на деле оказывается, что стены кривые, полы неровные, а проводка сделана ещё при царе. На эту планировку ушло не мало времени и сил для меня и заказчика, очень долго обсуждали планировочное решение. Тут тоже свои сюрпризы. То плитка закончилась, то краска не того оттенка, а доставку перенесли на следующую неделю. И вот ты уже пятый день ходишь по строительным магазинам, как герой боевика, который ищет последний патрон для спасения мира. И хочется отметить удаленность заказчиков от объекта, это большой труд объяснить цвет плитки не видя ее в живую, потому что ни одна фотография и видео не передаст оттенок. Тут только доверится профессионализму дизайнера и его вкусу. Он всегда заканчивается быстрее, чем ты ожидаешь. То нужно докупить ещё пару мешков штукатур
Оглавление

Привет, друзья! Сегодня поговорим о том, с чем сталкивается каждый, кто решился на ремонт в квартире 🔨

Стройка

Это как сериал: вроде бы знаешь, чем всё закончится, но каждый день новые сюжетные повороты и неожиданности 🥴

Начнём с планирования 💡

Кажется, что всё просто: разработал дизайн, согласовал материалы, купил чистовые материалы, нанял рабочих — и готово! Но на деле оказывается, что стены кривые, полы неровные, а проводка сделана ещё при царе.

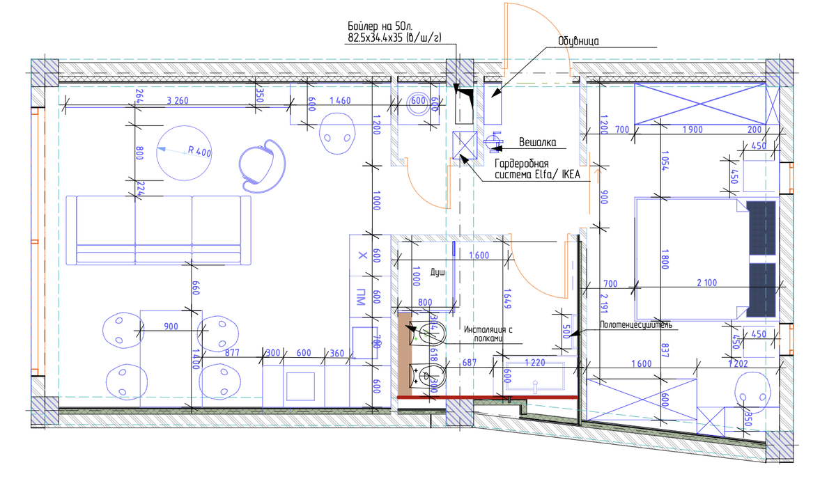
На эту планировку ушло не мало времени и сил для меня и заказчика, очень долго обсуждали планировочное решение.

Планировочное решение
Планировочное решение

Закупка материалов 📩

Тут тоже свои сюрпризы. То плитка закончилась, то краска не того оттенка, а доставку перенесли на следующую неделю. И вот ты уже пятый день ходишь по строительным магазинам, как герой боевика, который ищет последний патрон для спасения мира.

И хочется отметить удаленность заказчиков от объекта, это большой труд объяснить цвет плитки не видя ее в живую, потому что ни одна фотография и видео не передаст оттенок. Тут только доверится профессионализму дизайнера и его вкусу.

Бюджет 💸

Он всегда заканчивается быстрее, чем ты ожидаешь. То нужно докупить ещё пару мешков штукатурки, то мелочевки. И вот ты уже считаешь каждую копейку, мечтая о том, чтобы всё это поскорее закончилось. Конечно даже опытный специалист не может просчитать все наперед.

А самое интересное, когда чистовой материал резко начинает подниматься в цене. Когда в начале ремонта была одна цена, а на момент покупки совсем другая. Поэтому просьба для всех заказчиков, оплачивать чистовой материал сразу для фиксации цены, и не винить дизайнера в подорожании материалов 🥹

Но знаете, что самое интересное?

Несмотря на все эти сложности, стройка — это как сериал, который затягивает. Каждый день что-то новое, каждый день маленькие победы. И в какой-то момент ты понимаешь, что всё это того стоит. Потому что в конце тебя ждёт твой идеальный дом.

А как это происходит — расскажу во второй части. Оставайтесь на связи!

Если у вас есть идеи, которыми вы хотите поделиться, или вопросы по теме, пишите мне в комментариях — всегда рад обратной связи и новым темам для обсуждения!

Телеграмм: @Vershinin_design
Вконтакте: https://vk.com/vershinin_design

#дизайн #дизайниремонт #дизайнеринтерьера #дизайнер #Сочи #ремонт #стройка