Добавить в корзинуПозвонить
Найти в Дзене
ЭТО ВАШ ИНТЕРЬЕР

Мне в наследство от бабушки досталась сталинка с винтажной мебелью, в которую пришлось знатно вложиться. Смотрите, что у меня получилось

В моей сегодняшней статье я хочу рассказать о молодой женщине, которая унаследовала от бабушки старенькую квартиру. Состояние квартиры было не самым лучшим, сам дом, построенный в начале 50-х годов на Страстном бульваре, представлял собой историческое здание. У новой хозяйки квартиры уже есть собственное жильё, поэтому она решила полностью отремонтировать эту квартиру и сдавать её в аренду. Для этой задачи она обратилась к дизайнеру Наташе Широкорад. Однако, когда дизайнер приехала в квартиру, выяснилось, что первые жильцы много лет назад сделали незаконную перепланировку: кухню перенесли в жилую комнату, а санузел увеличили без согласования. Новой собственнице было важно наличие законной планировки в квартире, поэтому они с дизайнером решили вернуть изначальную планировку, которая была в 50-х годах. При оформлении данного интерьера дизайнер решила использовать светлые натуральные оттенки без ярких акцентов в отделке. Поэтому для стен подобрали светлый нейтральный тон, а в качестве на
Оглавление

В моей сегодняшней статье я хочу рассказать о молодой женщине, которая унаследовала от бабушки старенькую квартиру. Состояние квартиры было не самым лучшим, сам дом, построенный в начале 50-х годов на Страстном бульваре, представлял собой историческое здание.

У новой хозяйки квартиры уже есть собственное жильё, поэтому она решила полностью отремонтировать эту квартиру и сдавать её в аренду. Для этой задачи она обратилась к дизайнеру Наташе Широкорад.

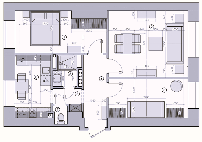
Однако, когда дизайнер приехала в квартиру, выяснилось, что первые жильцы много лет назад сделали незаконную перепланировку: кухню перенесли в жилую комнату, а санузел увеличили без согласования. Новой собственнице было важно наличие законной планировки в квартире, поэтому они с дизайнером решили вернуть изначальную планировку, которая была в 50-х годах.

Проект

  • Местоположение: Москва, Страстной бульвар
  • Площадь квартиры: 60 квадратных метров
  • Владельцы: женщина, которая будет сдавать квартиру в долгосрочную аренду
-2

Прихожая

При оформлении данного интерьера дизайнер решила использовать светлые натуральные оттенки без ярких акцентов в отделке. Поэтому для стен подобрали светлый нейтральный тон, а в качестве напольного покрытия здесь выступает крупноформатный керамогранит.

-3

Справа от входа разместили компактную систему хранения, а ближе к комнатам расположили большое зеркало и мягкую банкетку в пыльно-розовом цвете.

-4

Кухня

Из прихожей сразу же попадаешь в кухню. Здесь в отделке использовали светлую краску и темный керамогранит. Кухонное пространство решили сделать максимально функциональным, поэтому расположили кухонный гарнитур с двух сторон от входа. Фасады выбрали в приятном теплом оттенке.

-5

Фартук также оформлен керамогранитом, который прекрасно сочетается с напольным покрытием. Благодаря такой планировке кухонного пространства здесь удалось создать множество удобных мест для хранения и разместить всю необходимую бытовую технику: холодильник, посудомоечную и стиральную машины, духовой шкаф, варочную панель и другие устройства.

Возле окна была организована компактная столовая группа с мебелью, которая осталась от бабушки. Стулья и обеденный стол было решено вписать в новый интерьер, правда, перед этим их пришлось немного отреставрировать.

-7

Гостиная

Поскольку в небольшой кухне есть только небольшой столик для завтраков и перекусов, в гостиной решили обустроить полноценную обеденную зону. Её разместили прямо у входа в комнату. Здесь появился изящный стол, окружённый яркими стульями, которые стали главным акцентом в интерьере.

Ближе к окну расположилась зона отдыха с телевизором. Наша героиня также унаследовала от бабушки книжную витрину, винтажный комод, журнальный стол, шторы и даже ковёр. Все эти предметы было решено вписать в новый интерьер. Правда вот обивку дивана пришлось заменить, но всё остальное было в хорошем состоянии.

Спальня

При входе в комнату расположился большой и вместительный шкаф для одежды, фасады которого оформлены в нейтральном цвете. Стены окрашены в светлый оттенок, а пол покрыт паркетной доской. В центре комнаты находится двуспальная кровать с высоким изголовьем, выполненная в приятном голубом цвете и оснащенная подъемным механизмом.

Кабинет-детская

В зависимости от того, кто будет проживать в квартире, эта комната может выполнять различные функции: стать рабочим кабинетом или детской. Отделка в ней выполнена в том же стиле, что и в хозяйской спальне.

-11

Для меблировки помещения дизайнер выбрала универсальные предметы, которые легко адаптируются под различные задачи: раскладной диван в сложном зеленом оттенке и два больших шкафа, расположенных по бокам от него.

Ванная комната

Для отделки санузлов были использованы керамогранит и водостойкая краска. Из-за небольшой площади ванной комнаты было принято решение отказаться от ванны в пользу просторной душевой кабины.

-12

Если вам понравилась статья, то не забудьте поставить лайк и подписаться, чтобы не пропустить новый материал!

Так же пишите в комментариях, что вам понравилось в этом проекте, а что вызывает сомнения