Найти в Дзене

Особенности планировки, которые стоит учитывать до начала строительства дома

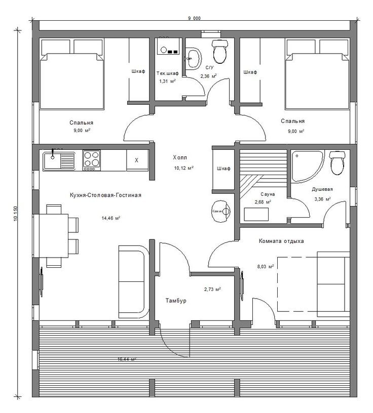
Планировка дома – это не просто схема на бумаге, а основа удобной и комфортной жизни. Ошибки на этом этапе могут привести к лишним тратам, неудобствам и даже к необходимости переделывать проект. Давайте разберем, на что стоит обратить внимание перед началом строительства. Перед тем как выбирать планировку, важно правильно расположить дом на участке. ✔ Учитываем стороны света: ✔ Отступы от границ участка: Сколько квадратных метров нужно? 💡 Важно: слишком маленький дом будет тесным, а слишком большой – дорогим в содержании. ✔ Один этаж или два? Удобная планировка – это когда приватные и общественные зоны отделены друг от друга. ✔ Первый этаж – общественная зона: ✔ Второй этаж / дальняя часть дома – личная зона: 💡 Важно: санузлы лучше располагать друг над другом – так проще провести коммуникации. Ошибки в расположении дверей и проходов могут сделать даже просторный дом неудобным. ✔ Что важно? Свет – залог комфорта. Недостаток окон сделает дом темным и неуютным. ✔ Рекомендации: Ошибки в
Оглавление

Планировка дома – это не просто схема на бумаге, а основа удобной и комфортной жизни. Ошибки на этом этапе могут привести к лишним тратам, неудобствам и даже к необходимости переделывать проект. Давайте разберем, на что стоит обратить внимание перед началом строительства.

📌 1. Размещение дома на участке

Перед тем как выбирать планировку, важно правильно расположить дом на участке.

Учитываем стороны света:

  • Окна спальни лучше ориентировать на восток – утром будет естественный свет.
  • Гостиную и кухню – на юг или юго-запад, чтобы комната была теплой и светлой.
  • Санузлы, гараж, кладовые – на север, там не требуется много света.

Отступы от границ участка:

  • По СНиП минимальное расстояние до соседей – 3 метра.
  • До дороги – минимум 5 метров.
  • Если планируется септик, его нельзя размещать ближе 5 метров к дому.

🏡 2. Оптимальная площадь и количество этажей

Сколько квадратных метров нужно?

  • Для одного человека – 40–50 м².
  • Для пары – 60–80 м².
  • Для семьи с детьми – от 100 м².

💡 Важно: слишком маленький дом будет тесным, а слишком большой – дорогим в содержании.

Один этаж или два?

  • Одноэтажный дом – удобнее, безопаснее для детей и пожилых.
  • Двухэтажный – позволяет сэкономить место на участке, но требует лестницы (а это дополнительные расходы).

🛏 3. Зонирование: где будет удобно?

Удобная планировка – это когда приватные и общественные зоны отделены друг от друга.

Первый этаж – общественная зона:

  • Гостиная
  • Кухня
  • Санузел
  • Котельная
  • Гостевая комната или кабинет

Второй этаж / дальняя часть дома – личная зона:

  • Спальни
  • Детские комнаты
  • Ванные

💡 Важно: санузлы лучше располагать друг над другом – так проще провести коммуникации.

🚪 4. Удобные проходы и расположение дверей

Ошибки в расположении дверей и проходов могут сделать даже просторный дом неудобным.

Что важно?

  • Минимальная ширина коридора – 90 см, иначе будет тесно.
  • Расстояние между дверьми – не менее 70 см, чтобы они не мешали друг другу.
  • Вход в гостиную лучше делать без двери или с раздвижной перегородкой – это создаст ощущение простора.

🪟 5. Количество окон и их размер

Свет – залог комфорта. Недостаток окон сделает дом темным и неуютным.

Рекомендации:

  • На 10 м² площади должно быть не менее 1 м² окна.
  • В гостиной лучше панорамные окна, они наполняют дом светом.
  • В спальне окна лучше делать среднего размера, чтобы не терять тепло зимой.
  • В ванной и гардеробной можно обойтись без окон, если есть хорошая вентиляция.

🔥 6. Котельная и коммуникации

Ошибки в планировании котельной и инженерных сетей – это проблемы с отоплением, канализацией и электрикой.

Котельная:

  • Должна быть отдельной комнатой (если газовый котел – это обязательное требование).
  • Минимальная площадь – 6 м².
  • Высота потолков – от 2,5 м.
  • Вентиляция – обязательна.

Канализация:

  • Лучше сразу продумать, где будет септик или подключение к центральной системе.
  • Не стоит тянуть трубы через весь дом – это увеличит расходы.

Электрика:

  • План розеток лучше делать до отделки, чтобы не пришлось тянуть удлинители.
  • В кухне и гостиной розеток нужно больше, чем кажется – минимум 5-6 штук.

🚗 7. Гараж и хозяйственные помещения

Многие забывают про гараж, кладовую и места хранения, а потом сталкиваются с нехваткой пространства.

Гараж:

  • Можно встроить в дом или сделать отдельно.
  • Если встроенный – нужен тепловой тамбур между домом и гаражом.
  • Минимальный размер на одну машину – 3×6 м.

Кладовые и гардеробные:

  • Важно продумать систему хранения – шкафы, ниши, антресоли.
  • Отдельная гардеробная удобнее, чем громоздкие шкафы в спальне.

🌿 8. Терраса, балкон, крыльцо

Если хочется больше пространства для отдыха, терраса или веранда – отличный вариант.

Терраса или веранда:

  • Можно сделать открытой (летний вариант) или застекленной (можно использовать круглый год).
  • Важно учесть направление ветра – если часто дует, отдыхать будет некомфортно.

Балкон:

  • В частных домах балкон нужен не всегда, но он может стать отличной зоной отдыха.
  • На балконе можно хранить сезонные вещи или сделать мини-кабинет.

Крыльцо:

  • Удобнее, если оно широкое и с навесом, чтобы было комфортно заходить в дом в дождь или снег.

🔎 Итог: что важно при планировке?

✅ Учитываем стороны света – где будут окна и комнаты.
✅ Определяемся с этажностью – один или два этажа.
✅ Разделяем общественные и личные зоны.
✅ Делаем удобные коридоры и расположение дверей.
✅ Продумываем количество окон для естественного света.
✅ Учитываем все коммуникации – отопление, воду, электричество.
✅ Закладываем места для хранения – кладовые, гардеробные.
✅ Не забываем про террасу, крыльцо, балкон.

🏡 Правильная планировка – это комфорт на долгие годы. Важно все продумать заранее, чтобы дом был удобным, светлым и функциональным!