Добавить в корзинуПозвонить
Найти в Дзене
ДОМ ОТ ПРОФИ

3 УНИВЕРСАЛЬНЫХ ПРОЕКТА ДОМОВ ОТ ПРОФИ 🏡

Они подойдут для: - семей с детьми - семейных пар, у которых дети уже выросли и приезжают только по выходным - тех, кто любит собирать гостей в своем доме Каждый из этих проектов модно адаптировать под свои желания и потребности либо оставить как есть, если вас все устраивает 👍🏼 ▪️Общая площадь 128 кв.м. ▪️Площадь помещений 102,8 кв.м. ▪️Габариты 12,8 х 10 м - просторная кухня-гостиная - тамбур с котельной - 3 спальни (в них можно сделать кабинет, комнату отдыха, гостевую, библиотеку и тд) - большой санузел Переходите по ссылке, чтобы узнать стоимость строительства дома по проекту 11-128-1 ▪️Общая площадь 130 кв.м. ▪️Площадь помещений 104 кв.м. ▪️Габариты 8,6 х 7,2 м - большая кухня-гостиная с выходом во двор - комната (гостевая, комната отдыха, кабинет) - санузел - гардеробная для верхней одежды - бойлерная - 3 спальни - гардеробная - санузел Переходите по ссылке, чтобы узнать стоимость строительства дома по проекту 15-13 ▪️Общая площадь 219 кв.м. ▪️Площадь помещений 156 кв.м. ▪️Га
Оглавление

Они подойдут для:

- семей с детьми

- семейных пар, у которых дети уже выросли и приезжают только по выходным

- тех, кто любит собирать гостей в своем доме

Каждый из этих проектов модно адаптировать под свои желания и потребности либо оставить как есть, если вас все устраивает 👍🏼

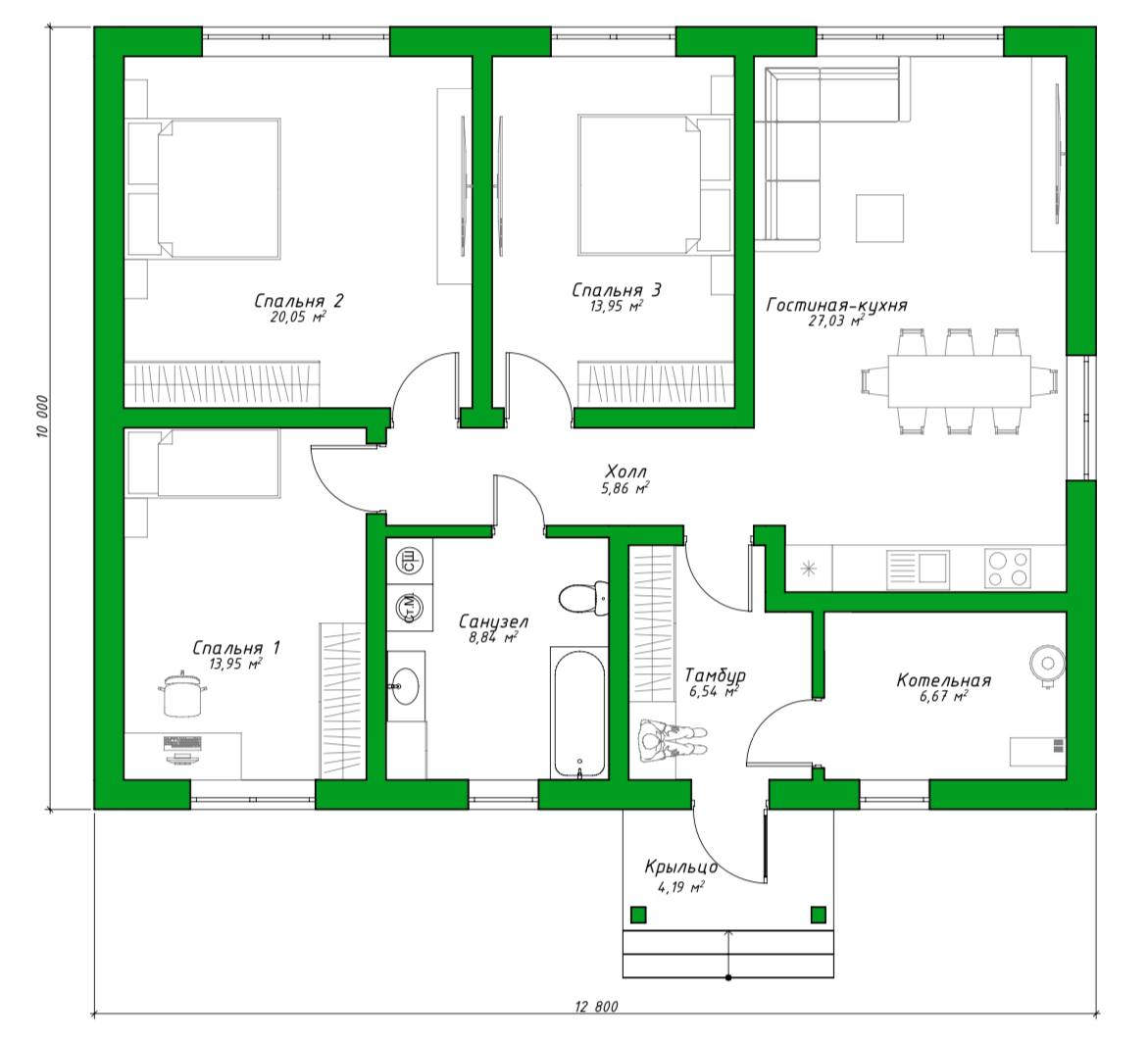
Проект одноэтажного дома 11-128-1

3D-визуализация проекта 11-128-1
3D-визуализация проекта 11-128-1

▪️Общая площадь 128 кв.м.

▪️Площадь помещений 102,8 кв.м.

▪️Габариты 12,8 х 10 м

🔰Планировка:

- просторная кухня-гостиная

- тамбур с котельной

- 3 спальни (в них можно сделать кабинет, комнату отдыха, гостевую, библиотеку и тд)

- большой санузел

Планировка
Планировка

Переходите по ссылке, чтобы узнать стоимость строительства дома по проекту 11-128-1

Проект двухэтажного дома с мансардой 15-13

3D-визуализация проекта 15-13
3D-визуализация проекта 15-13

▪️Общая площадь 130 кв.м.

▪️Площадь помещений 104 кв.м.

▪️Габариты 8,6 х 7,2 м

🔰План 1 этажа:

- большая кухня-гостиная с выходом во двор

- комната (гостевая, комната отдыха, кабинет)

- санузел

- гардеробная для верхней одежды

- бойлерная

План 1 этажа
План 1 этажа

🔰План 2 этажа:

- 3 спальни

- гардеробная

- санузел

План 2 этажа
План 2 этажа

Переходите по ссылке, чтобы узнать стоимость строительства дома по проекту 15-13

Проект двухэтажного дома с балконом и террасой 17-219

3D-визуализация проекта 17-219
3D-визуализация проекта 17-219

▪️Общая площадь 219 кв.м.

▪️Площадь помещений 156 кв.м.

▪️Габариты 9,85 х 11м

🔰План 1 этажа:

- кухня-гостиная с выходом на большую террасу 26 кв.м.

- гостевая

- бойлерная

- санузел

План 1 этажа
План 1 этажа

🔰План 2 этажа:

- 3 спальни, одна из которых с балконом

- гардеробная

- санузел

План 2 этажа
План 2 этажа

Переходите по ссылке, чтобы узнать стоимость строительства дома по проекту 17-219

Подборку каких проектов показать в следующий раз? Пишите в комментариях.