Найти в Дзене
Realt.by

Рядом с Минском продается стильный дом из бруса с банным комплексом. Цена — не космическая

В 20 минутах от Минска продается дом для жизни. Он построен из бруса, имеет террасу и балкон. Внутри сделан хороший ремонт, введены все коммуникации, которыми можно управлять с помощью системы «умный дом». Отопление на газу, а вода — центральная. Плюс — рядом возведена баня с жилой комнатой. Показываем интерьер дома и пишем его стоимость. Дом из бруса построили в 2014 году в деревне Шатилы в Дзержинском районе. Он с мансардным этажом. Крыша накрыта черепицей. Площадь дома составляет 107,7 м². Внутри сделан хороший ремонт. На первом этаже обустроена кухня-гостиная. Рядом находится отдельная жилая комната. Из технических помещений: ванная, санузел и топочная. На первом уровне есть застекленная в пол угловая терраса. На мансарде сделаны две комнаты, но одна из них проходная. В изолированной спальне есть выход на застекленный балкон. В доме работает газовое отопление, введен центральный водопровод, а канализация переливная. Нужную температуру поддерживают теплые полы на первом этаже. На вт

В 20 минутах от Минска продается дом для жизни. Он построен из бруса, имеет террасу и балкон. Внутри сделан хороший ремонт, введены все коммуникации, которыми можно управлять с помощью системы «умный дом». Отопление на газу, а вода — центральная. Плюс — рядом возведена баня с жилой комнатой. Показываем интерьер дома и пишем его стоимость.

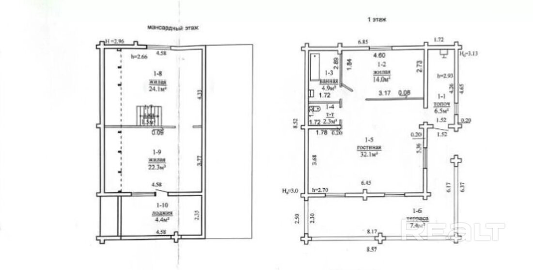
Дом из бруса построили в 2014 году в деревне Шатилы в Дзержинском районе. Он с мансардным этажом. Крыша накрыта черепицей. Площадь дома составляет 107,7 м².

-2

Внутри сделан хороший ремонт. На первом этаже обустроена кухня-гостиная. Рядом находится отдельная жилая комната. Из технических помещений: ванная, санузел и топочная.

На первом уровне есть застекленная в пол угловая терраса.

На мансарде сделаны две комнаты, но одна из них проходная. В изолированной спальне есть выход на застекленный балкон.

В доме работает газовое отопление, введен центральный водопровод, а канализация переливная. Нужную температуру поддерживают теплые полы на первом этаже. На втором есть кондиционер. Управлять светом, водой и отоплением можно с помощью системы «умный дом».

На территории также есть постройка в 178 квадратов, где выделено место под баню, гараж и жилую часть.

На первом этаже сделана кухня, санузел и душ. На втором есть две комнаты для отдыха. Под баней находится подвал по всему периметру.

Комплекс стоит на 13 сотках. Участок ровный, имеет правильную форму, огорожен забором с откатными воротами на пульте. На территории оборудовано место для барбекю, стоит современная беседка.

До Минска всего 28 км езды, до Дзержинска — 5 км. Недалеко находится железнодорожный остановочный пункт «Станьково».

Рядом есть детский сад и школа, магазины, почтовое отделение. Ближайший большой ТЦ располагается в 5 минутах езды на авто.

Стоимость дома — 160 тысяч долларов.