Добавить в корзинуПозвонить
Найти в Дзене

Проект. Строим планы и думаем, как перестроить дом, чтобы было удобно

В доме, который мы имеем нас не устраивало несколько моментов: Нам требовалось увеличить площадь и сделать перепланировку. Нужно было создавать проект. Первоначально я стала сама придумывать планировки с помощью бесплатного онлайн-планировщика. Что-то порисовала, но также решила обратиться к архитекторам и дизайнерам. Через сервис поиска специалистов стала узнавать, кто сможет предложить мне варианты планировок. Мое внимание привлек архитектор, супруга которого является дизайнером, и они работают в связке. За небольшую сумму мы договорились поработать над моим проектом. Описав свои хотелки: терраса, возможность увеличения площади за счет пристройки и необходимость лестницы на второй этаж, решили делать 3 варианта планировок: от минимальной перепланировки до проекта с пристройкой. Идеи были интересные, но смущало то, что пришлось бы пристраивать часть, по площади примерно равную существующему дому. Я продолжила размышлять самостоятельно. Рисовала планы все в том же онлайн-планировщике,

В доме, который мы имеем нас не устраивало несколько моментов:

  1. Маленькая площадь
  2. Только один этаж
  3. Неудобная планировка
Изначальная планировка дома. Терраса слева
Изначальная планировка дома. Терраса слева

Нам требовалось увеличить площадь и сделать перепланировку. Нужно было создавать проект.

Первоначально я стала сама придумывать планировки с помощью бесплатного онлайн-планировщика. Что-то порисовала, но также решила обратиться к архитекторам и дизайнерам. Через сервис поиска специалистов стала узнавать, кто сможет предложить мне варианты планировок. Мое внимание привлек архитектор, супруга которого является дизайнером, и они работают в связке. За небольшую сумму мы договорились поработать над моим проектом. Описав свои хотелки: терраса, возможность увеличения площади за счет пристройки и необходимость лестницы на второй этаж, решили делать 3 варианта планировок: от минимальной перепланировки до проекта с пристройкой.

Вариант 1
Вариант 1
Вариант 2
Вариант 2
Вариант 3
Вариант 3

Идеи были интересные, но смущало то, что пришлось бы пристраивать часть, по площади примерно равную существующему дому. Я продолжила размышлять самостоятельно. Рисовала планы все в том же онлайн-планировщике, обсуждала их с членами семьи (рисовали уже все 😃). И совместными усилиями мы придумали то, что нам подхошло.

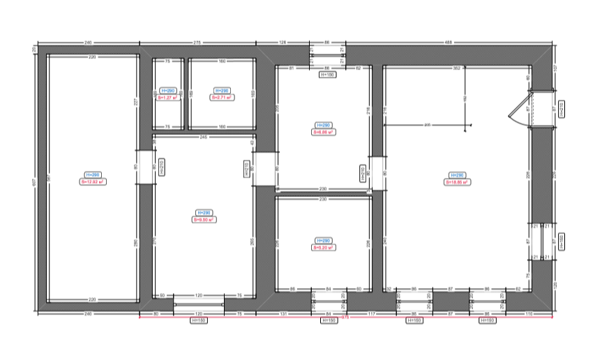
Вот такой вариант планировки первого этажа получился у меня
Вот такой вариант планировки первого этажа получился у меня

Надстраивать полноценный второй этаж мы не хотели. На то было несколько причин: такая большая площадь нам не была нужна, это давало бы большую нагрузку на фундамент. Планировали делать мансардный этаж, но приподнять стены, что, как нам казалось, дешевле строительства полноценного второго этажа.

Сама я работаю в графических редакторах с растровой и векторной графикой, но никак не связана с САПР. Пришлось осваивать, потому что хотелось отрисовать все более-менее подробно, а в онлайн-программах такой опции нет.

Я долго мучила программу, смотрела обучающие видео для понимания, как в ней работать. Сначала получалось не очень, было сложно, но стало понятнее, как будет выглядеть наш будующий дом. Да и строителям нужно было что-то показывать, чтобы они понимали, что мы хотим.

Рисовала стены, окна, двери (после нескольких туториалов с этим особых проблем не возникало), но крыша не давалась никак. Она предполагалась довольно сложной, а без опыта такое рисовать - очень сложно. Обратились к знакомой мужа - она смогла нарисовать то, что нам нужно, ура!

Вот, что получилось
Вот, что получилось
-7
-8

Я изначально хотела дом с балконом. В плане это отразили, но в процессе строительства реализовать это не удалось, а с чем это связано я расскажу в следующих постах.

План есть, внешняя часть дома подготовлена, примерная смета утверждена с бригадой, можно начинать?