Добавить в корзинуПозвонить
Найти в Дзене
АиФ – Урал

В Екатеринбурге построят новый жилой квартал и благоустроят парк

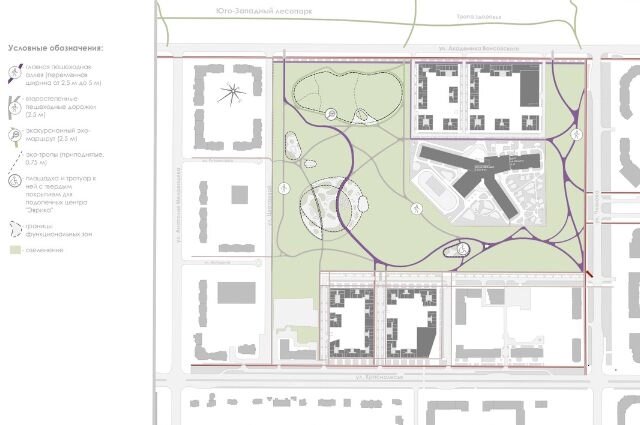
В Академическом районе начались подготовительные работы для строительства нового квартала в границах улиц Краснолесье – Мехренцева – Вонсовского – Чкалова. Работы в строгом соответствии с утвержденным проектом планировки ведет компания «Атомстройкомплекс». «Участок под строительство площадью 3,8 га расположен вдоль улицы Краснолесья. Он находится в собственности застройщика, все работы на нем осуществляются в соответствии с законом. На участке предусмотрено строительство двух жилых кварталов общей площадью 70 тыс. кв. метров, с подземным паркингом, помещениями под магазины и предприятия сферы услуг, а также помещение для детской художественной школы. Кроме того, предусмотрено продление местного проезда от улицы Чкалова до улицы Краснолесье еще на 500 метров – его общая протяженность составит 1,04 км. Местный проезд отделяет жилые кварталы от территории парка площадью 16 га, где уже этим летом, одновременно со строительством жилья, стартуют работы по благоустройству», – рассказал директ
   В Екатеринбурге построят новый жилой квартал и благоустроят парк
В Екатеринбурге построят новый жилой квартал и благоустроят парк

В Академическом районе начались подготовительные работы для строительства нового квартала в границах улиц Краснолесье – Мехренцева – Вонсовского – Чкалова. Работы в строгом соответствии с утвержденным проектом планировки ведет компания «Атомстройкомплекс».

   Фото: пресс-служба компании «Атомстройкомплекс»
Фото: пресс-служба компании «Атомстройкомплекс»

«Участок под строительство площадью 3,8 га расположен вдоль улицы Краснолесья. Он находится в собственности застройщика, все работы на нем осуществляются в соответствии с законом. На участке предусмотрено строительство двух жилых кварталов общей площадью 70 тыс. кв. метров, с подземным паркингом, помещениями под магазины и предприятия сферы услуг, а также помещение для детской художественной школы. Кроме того, предусмотрено продление местного проезда от улицы Чкалова до улицы Краснолесье еще на 500 метров – его общая протяженность составит 1,04 км. Местный проезд отделяет жилые кварталы от территории парка площадью 16 га, где уже этим летом, одновременно со строительством жилья, стартуют работы по благоустройству», – рассказал директор по управлению проектами строительной корпорации Дмитрий Фарафонов.

   Фото: пресс-служба компании «Атомстройкомплекс»
Фото: пресс-служба компании «Атомстройкомплекс»

Проект благоустройства парка разрабатывает Ботанический сад УрО РАН. Ранее представленная ими концепция была утверждена на Совете по развитию общественных пространств Екатеринбурга. Сейчас в соответствии с техническим заданием, выданным Управлением благоустройства города, ведется подготовка рабочей документации.

   Фото: пресс-служба компании «Атомстройкомплекс»
Фото: пресс-служба компании «Атомстройкомплекс»

В парке организуют безопасные и удобные для передвижения тропинки, современные детские и спортивные площадки, оборудуют инфраструктуру для выгула собак. Напротив центра «Эврика» разместят инклюзивную площадку, адаптированную для лиц с ограниченными возможностями здоровья.

   Фото: пресс-служба компании «Атомстройкомплекс»
Фото: пресс-служба компании «Атомстройкомплекс»

Эксперты Ботанического сада УрО РАН также предлагают организовать в парке площадку для изучения уральской флоры и фауны – так называемую зону естественного разнообразия. Она будет оборудована табличками с информацией о представленных видах растений, здесь смогут проводить школьные уроки, в частности, занятия кружка «Юный ландшафтный архитектор», который действует на базе школы №181.Внутри парка проектом планировки территории предусмотрен участок под размещение образовательного центра – школы на 1500 мест и детского сада на 350 мест.