Добавить в корзинуПозвонить
Найти в Дзене

МАЛАГА 200 м2 - проект длинного одноэтажного дома 12 х 23 метра, с 3 - 4 спальнями, изолированной кухней и гаражом

💒 Новый одноэтажный дом на сайте. Это проект большого одноэтажного дома для длинного участка шириной от 18 метров. В доме есть всё для комфорта - светлая гостиная, большие спальни, терраса, кладовые, гараж. Общая площадь помещений 200 м2. все проекты длинных и узких домов для длинных участков тут 👇 Дом в плане поделен на две параллельные части. В одной - помещения входной группы и дневная зона, в другой - спальни и гараж. Кухня изолированная. Котельная и гараж впереди работают как буфер от дорожного шума. Котельная со входом с улицы. В гараже устроено рабочее место и кладовка. Фундамент - ж/б лента глубокая. Стены – 400 мм газобетон. Перекрытие - монолитный ж/б без подполья, террасы - над просветом, чердачное - деревянное по монолитным балкам. ✅ Стоимость документации и порядок заказа чертежей - на нашем сайте 👇 ► Также следить за новостями, смотреть краткие обзоры проектов удобно в ТЕЛЕГРАММ-КАНАЛЕ и группе ВК
Оглавление

💒 Новый одноэтажный дом на сайте.

Это проект большого одноэтажного дома для длинного участка шириной от 18 метров. В доме есть всё для комфорта - светлая гостиная, большие спальни, терраса, кладовые, гараж. Общая площадь помещений 200 м2.

все проекты длинных и узких домов для длинных участков тут 👇

Узкие длинные одноэтажные дома для длинных участков - подборка проектов | Инваполис - проекты рациональных домов | Дзен

Архитектура, фасады

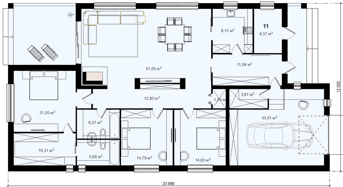
Планировка этажа

Дом в плане поделен на две параллельные части. В одной - помещения входной группы и дневная зона, в другой - спальни и гараж. Кухня изолированная. Котельная и гараж впереди работают как буфер от дорожного шума. Котельная со входом с улицы. В гараже устроено рабочее место и кладовка.

Вариант планировки №1. Базовый (с 3 спальнями)

В торце дома большая мастер-спальня с вместительной гардеробной и ванной с окошком.
В торце дома большая мастер-спальня с вместительной гардеробной и ванной с окошком.

Вариант планировки 2. С четырьмя спальнями

Часть плана с мастер-спальней перепланирована. Родительская уменьшена, за счет этого устроена ещё одна детская. Или кабинет к родительской.
Часть плана с мастер-спальней перепланирована. Родительская уменьшена, за счет этого устроена ещё одна детская. Или кабинет к родительской.

Вариант планировки 3. Читательницы выпросили большую кухню.

Конструктивные решения и материалы строительства

Фундамент - ж/б лента глубокая. Стены – 400 мм газобетон. Перекрытие - монолитный ж/б без подполья, террасы - над просветом, чердачное - деревянное по монолитным балкам.

Стоимость документации и порядок заказа чертежей - на нашем сайте 👇

МАЛАГА 200 м2 - проект длинного одноэтажного дома 12 х 23 метра с 3 - 4 спальнями, изолированной кухней, гаражом

► Также следить за новостями, смотреть краткие обзоры проектов удобно в ТЕЛЕГРАММ-КАНАЛЕ и группе ВК