Добавить в корзинуПозвонить
Найти в Дзене
Янина Дача

Характеристики дома

Итак, обещала рассказать технические характеристики дома. Дом по проекту "Домодедовский". Название строительной компании не называю, за рекламу никто не платит😅 Да и пока мы там не живём и полноценно не используем рекомендовать не могу. Каркас-150 мм+50 мм перекрёстное утепление Пол-200 мм утепление Rockwool Потолок-200 мм утепление Rockwool Наружная отделка-фасадная плитка HAUBERK кирпич Шотландский Входная дверь с терморазрывом Внутренняя отделка стен-имитация бруса 140 мм Потолок-евровагонка 90 мм Пол первого этажа-фанера 20 мм под ламинат Пол второго этажа-фанера 20 мм под ламинат Пол с/у-ЦСП 20 мм под плитку Стены с/у ЦСП под плитку Окна ПВХ, профиль КВЕ двухкамерный стеклопакет Кровля Металл профиль 0,5 мм цвет 8017 Металлические софиты и карнизы Фундамент-ж/б сваи 3000 мм и 4000мм Обработка обвязки, лаг, чернового пола-Неомид 430 Терраса 8*3 метра Высота потолков первого этажа 2.50м, второго 2.40м. Двери на первом этаже, только проемы, на втором установка наших. Коммуникаци

Итак, обещала рассказать технические характеристики дома.

Дом по проекту "Домодедовский".

Название строительной компании не называю, за рекламу никто не платит😅
Да и пока мы там не живём и полноценно не используем рекомендовать не могу.

Каркас-150 мм+50 мм перекрёстное утепление

Пол-200 мм утепление Rockwool

Потолок-200 мм утепление Rockwool

Наружная отделка-фасадная плитка HAUBERK кирпич Шотландский

Входная дверь с терморазрывом

Внутренняя отделка стен-имитация бруса 140 мм

Потолок-евровагонка 90 мм

Пол первого этажа-фанера 20 мм под ламинат

Пол второго этажа-фанера 20 мм под ламинат

Пол с/у-ЦСП 20 мм под плитку

Стены с/у ЦСП под плитку

Окна ПВХ, профиль КВЕ двухкамерный стеклопакет

Кровля Металл профиль 0,5 мм цвет 8017

Металлические софиты и карнизы

Фундамент-ж/б сваи 3000 мм и 4000мм

Обработка обвязки, лаг, чернового пола-Неомид 430

-2

Терраса 8*3 метра

Высота потолков первого этажа 2.50м, второго 2.40м.

Двери на первом этаже, только проемы, на втором установка наших.

-3

Коммуникации:

  • Септик, дренажный колодец, монтаж канализации
  • Батареи, теплый пол, разводка всего отопления по 2 этажам.
  • Монтаж котла
  • Копка по участку водопровода+ его монтаж в доме
  • Фильтр, насосы

Плюс отдельно была стяжка полусухая.

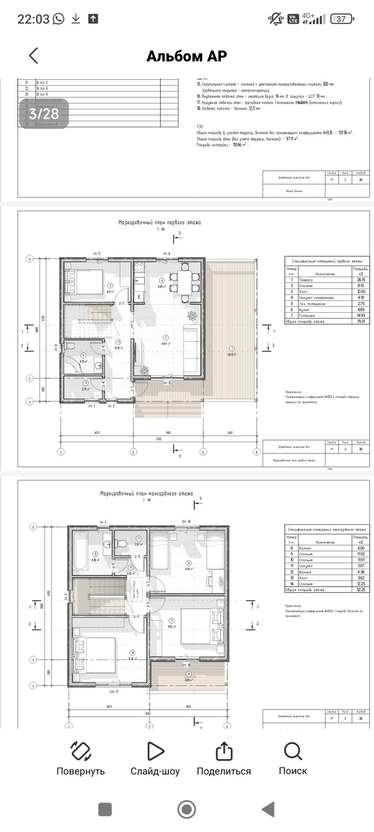
Вот так выглядел наш дом на картинке тех плана

-4

Было бы здорово, чтобы и территорию вокруг кто-то бы облагородил. Получаешь уже такой домик на картинке, цветы, трава.

Не входило в комплектацию у нас разводка электричества. Потому что мы планируем делать ретро проводку.

Взято из интернета
Взято из интернета

Выглядит это вот так примерно

Взято из интернета
Взято из интернета

А для этого надо сначала покрасить стены внутри. А красить нам сказали не раньше весны.

Пока не знаю будем ли сами вести ее, или нанимать электриков, подумаем.

Пока думаем какого цвета делать.

На темной будет видно пыль.

Ну не люблю я пыль вытирать, вот прям ненавижу всеми фибрами и отдаленными уголками своей души.

Белая может пожелтеть или пачкаться от чьих то ручек, не будем показывать пальцем чьих.

Пока не пришли к единому решению.

Вот такие технические характеристики.

-7

#дом#дача#стройка#строим сами