Найти в Дзене
Про Schuco.

Особое внимание мы уделяем элитным оконным профилям Schuco.

Ярмак — ваш надежный партнер в сфере светопрозрачных конструкций. Мы предлагаем полный комплекс услуг: от проектирования и производства до монтажа и гарантийного обслуживания. Особое внимание мы уделяем элитным оконным профилям Schuco. Эти профили могут быть покрашены в любой оттенок по шкале RAL, а также декорированы под различные природные текстуры, такие как дерево, камень, текстиль с фотографическим качеством. Таким образом, вы можете быть уверены, что ваша светопрозрачная конструкция будет выглядеть не только элегантно, но и гармонично вписываться в интерьер. Schuco AWS 75.SI+ AWS - Aluminium Window System (алюминиевая оконная система), 75 - монтажная глубина в мм. SI - Super Insulation (Конструкции с максимальной теплоизоляцией Окна Schuco AWS 75 мм с технологией SimplySmart — универсальное решение с максимальной теплоизоляцией. Серия AWS 75.SI+ (Super Insulation) обеспечивает превосходную теплоизоляцию при ширине видимого профиля всего 117 мм, отличаясь функциональностью, ди
Оглавление

Ярмак — ваш надежный партнер в сфере светопрозрачных конструкций. Мы предлагаем полный комплекс услуг: от проектирования и производства до монтажа и гарантийного обслуживания.

Особое внимание мы уделяем элитным оконным профилям Schuco. Эти профили могут быть покрашены в любой оттенок по шкале RAL, а также декорированы под различные природные текстуры, такие как дерево, камень, текстиль с фотографическим качеством. Таким образом, вы можете быть уверены, что ваша светопрозрачная конструкция будет выглядеть не только элегантно, но и гармонично вписываться в интерьер.

Описание алюминиевой оконной системы Schuco AWS 75.SI+ с максимальной теплоизоляцией

Schuco AWS 75.SI+

AWS - Aluminium Window System (алюминиевая оконная система),

75 - монтажная глубина в мм.

SI - Super Insulation (Конструкции с максимальной теплоизоляцией

Окна Schuco AWS 75 мм с технологией SimplySmart — универсальное решение с максимальной теплоизоляцией. Серия AWS 75.SI+ (Super Insulation) обеспечивает превосходную теплоизоляцию при ширине видимого профиля всего 117 мм, отличаясь функциональностью, дизайном и экологичностью благодаря перерабатываемым материалам и среднему уплотнителю по периметру с новой изоляцией фальца стекла. Монтаж упрощен за счет фурнитуры Schuco AvanTec SimplySmart нового поколения.

Для архитектурных проектов с высокими требованиями предлагаются окна Schuco AWS 75 BS.SI+ со скрытыми створками и узкими переплетами, обеспечивающие максимальную прозрачность. Для экономичного производства ленточных окон большой высоты (этажные окна) с эффектом монолитной конструкции разработана серия Schuco AWS 75 WF.SI+, основанная на блочных окнах Schuco.

Характеристики алюминиевой системы Schuco AWS 75.SI

-Макс. габариты створки (ширина х высота):1000х2500 мм. или 1700х2100 мм.

-Глубина наружной рамы: 75 мм.

-Видимая ширина рамы и створки: 117 мм.

-Очень высокая теплоизоляция: Uf 0,9 - 1,6 Вт/м²K

-Открывание внутрь или наружу

-Цвет профиля: любой по шкале RAL

-Максимальная толщина стеклопакета: 61 мм.

-Максимальный вес створки: до 250 кг.

-Угол открывания створки: до 180 градусов

-Coвмecтимocть c двepнoй cиcтeмoй Schuco ADS 75

-Возможно применение электроприводной фурнитуры Schuco TipTronic

-Взломоустойчивость до класса WK3

-Вариант с открыванием наружу

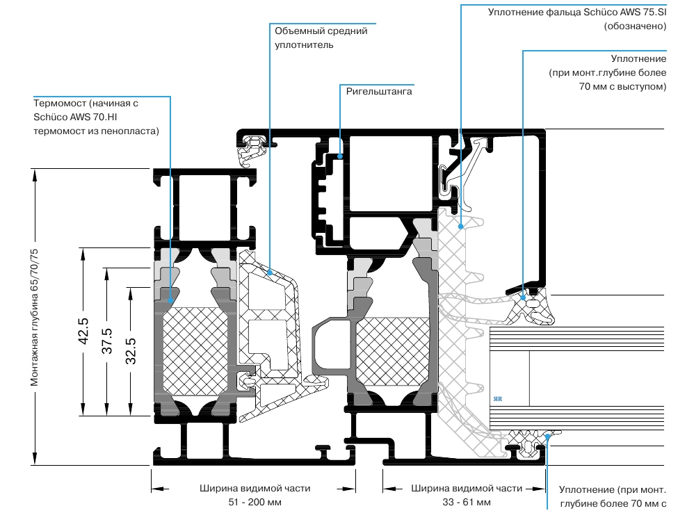
Схематичная структура алюминиевого окна Schuco AWS
Схематичная структура алюминиевого окна Schuco AWS

Виды исполнения алюминиевой оконной системы Schuco AWS 75

AWS 75.SI - алюминиевая оконная система, 75 мм - монтажная глубина, с максимальной теплоизоляцией
AWS 75 BS.HI - алюминиевая оконная система, 75 мм - монтажная глубина, блочная система с высокой теплоизоляцией
AWS 75 BS.SI - алюминиевая оконная система, 75 мм - монтажная глубина, блочная система с максимальной теплоизоляцией
AWS 75 RL.HI - алюминиевая оконная система, 75 мм - монтажная глубина, профили со скошенными наружными контурами с максимальной теплоизоляцией
AWS 75 SL.HI - алюминиевая оконная система, 75 мм - монтажная глубина, профили со скругленными наружными профилями с максимальной теплоизоляцией
AWS 75 ST.HI - алюминиевая оконная система, 75 мм - монтажная глубина, профили с узкими переплетами и имитацией стали с максимальной теплоизоляцией
AWS 75 WF.HI - алюминиевая оконная система, 75 мм - монтажная глубина, профили с имитацией стоично-ригельных фасадов с максимальной теплоизоляцией

Виды исполнения алюминиевой оконной системы Schuco AWS 75
Виды исполнения алюминиевой оконной системы Schuco AWS 75

Конструкции Schuco подходят как для коттеджей, так и для квартир св многоэтажных домах. Благодаря особенностям профиля из алюминия, мы смогли достичь сравнительно малой ширины видимой части, что позволяет увеличить стеклянную составляющую. Таким образом, ваши помещения будут наполнены светом, создавая атмосферу уюта и комфорта.

-3

Великолепный внешний вид наших конструкций особенно тянет взгляды. Мы предлагаем широчайший выбор цветовых решений, чтобы каждый клиент мог выбрать наиболее подходящий вариант для себя. Но это еще не все! Каждая система Schuco может быть выполнена в различных контурах, от классического до стильно изящного, скругленного дизайнерского и других вариантов. Вы сможете подобрать идеальную конструкцию, которая отразит ваш собственный вкус и предпочтения.

Не упускайте возможность создать уникальный образ вашего дома с помощью окон Schuco от компании Ярмак https://yarmak.ru/ . Мы гарантируем высокое качество, надежность и долговечность наших изделий. Обратитесь к нам уже сегодня и мы с удовольствием поможем вам осуществить вашу мечту о стильном и функциональном доме.