Добавить в корзинуПозвонить
Найти в Дзене
ДОМ ОТ ПРОФИ

История строительства одноэтажного дома 146 кв.м.🏡

К нам обратился клиент в апреле 2020 года с просьбой прислать расчет стоимости строительства проекта с сайта. На тот момент он сравнивал разные компании и предложения. В итоге Юрий выбрал ДОМ ОТ ПРОФИ и в августе 2022 заключил с нами договор на проектирование. Мы сделали выезд на участок в Истринском районе, где обнаружили перепад рельефа примерно 1.2 метра и застой воды в некоторых местах. ▪️ общая площадь 146 кв.м. ▪️ площадь помещений 120 кв.м. ▪️ габариты 17,2 м х 8,5м - просторная кухня-гостиная-столовая с выходом на террасу 23 кв.м. - мастер-спальня с собственным санузлом - 2 спальни - санузел - прихожая с гардеробной и бойлерной ▪️ В январе теплый контур был готов. ▪️ В 2023 году мы приезжали в гости к клиенту Мы счастливы, что у Юрия теперь есть такой замечательный дом 😍 Переходите в телеграм-бот, чтобы узнать стоимость строительства дома по проекту 7-146
Оглавление

К нам обратился клиент в апреле 2020 года с просьбой прислать расчет стоимости строительства проекта с сайта. На тот момент он сравнивал разные компании и предложения.

В итоге Юрий выбрал ДОМ ОТ ПРОФИ и в августе 2022 заключил с нами договор на проектирование.

Мы сделали выезд на участок в Истринском районе, где обнаружили перепад рельефа примерно 1.2 метра и застой воды в некоторых местах.

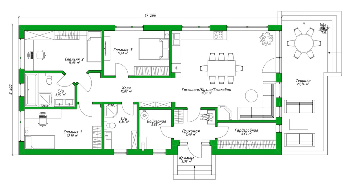
🔰 Наши архитекторы спроектировали одноэтажный дом 7-146

▪️ общая площадь 146 кв.м.

▪️ площадь помещений 120 кв.м.

▪️ габариты 17,2 м х 8,5м

🔰 Планировка:

-2

- просторная кухня-гостиная-столовая с выходом на террасу 23 кв.м.

- мастер-спальня с собственным санузлом

- 2 спальни

- санузел

- прихожая с гардеробной и бойлерной

🔰 В сентябре заключили договор на строительство и начали работы.

-3

▪️ В январе теплый контур был готов.

▪️ В 2023 году мы приезжали в гости к клиенту

-4

Мы счастливы, что у Юрия теперь есть такой замечательный дом 😍

Переходите в телеграм-бот, чтобы узнать стоимость строительства дома по проекту 7-146