Добавить в корзинуПозвонить
Найти в Дзене

Дом со вторым светом в Сосново. История проектирования

Весной 2020 года наша компания заключила договор на проектирование и строительства дома. Участок с большим перепадом рельефа и высокими соснами, требовал тщательного анализа, чтобы на разных высотных отметках взаимоувязать все необходимые строения и зоны, которые Заказчик пожелал организовать для своего комфортного проживания за городом. Поэтому, совместно с разработкой проекта дома было принято решение о разработке ландшафтного проекта. На первой встрече архитектор проекта Алексей Килевник записал все пожелания Заказчика, касающиеся жилого дома: этажность, состав помещений, наличие цокольного этажа, второго света и террас, архитектурный образ и материал отделки фасадов, ориентация помещений по сторонам света. Также предварительно определили расположение въезда, парковки и хозяйственных зон. После выполнения первых эскизных планировок наши специалисты не раз выезжали на участок для изучения рельефа. На месте определялось предварительное пятно застройки, делались эскизные зарисовки. На

Весной 2020 года наша компания заключила договор на проектирование и строительства дома. Участок с большим перепадом рельефа и высокими соснами, требовал тщательного анализа, чтобы на разных высотных отметках взаимоувязать все необходимые строения и зоны, которые Заказчик пожелал организовать для своего комфортного проживания за городом.

Поэтому, совместно с разработкой проекта дома было принято решение о разработке ландшафтного проекта.

На первой встрече архитектор проекта Алексей Килевник записал все пожелания Заказчика, касающиеся жилого дома: этажность, состав помещений, наличие цокольного этажа, второго света и террас, архитектурный образ и материал отделки фасадов, ориентация помещений по сторонам света. Также предварительно определили расположение въезда, парковки и хозяйственных зон.

После выполнения первых эскизных планировок наши специалисты не раз выезжали на участок для изучения рельефа. На месте определялось предварительное пятно застройки, делались эскизные зарисовки. На некоторых выездах проводились встречи с заказчиком для обсуждения эскизных решений.

Первый вариант планировки 1-го этажа
Первый вариант планировки 1-го этажа

В итоге было предложено решение - посадить фундамент будущего дома на максимально ровную часть участка. Для этого было необходимо соблюсти определенные пропорции дома в плане, т.е. вытянуть его вдоль северо-восточной части территории. В результате такого решения появилась возможность избежать наличия цокольного этажа и высокого ростверка фундамента, что существенно сократило затраты на строительство.

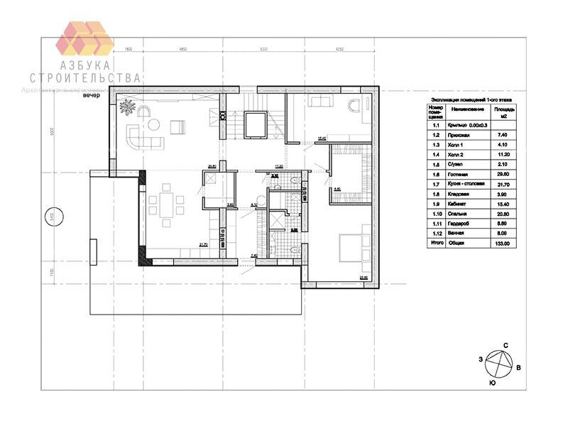
Финальный вариант планировки 1-го этажа
Финальный вариант планировки 1-го этажа

Выбранный вариант еще раз проверили вместе с Заказчиком на выезде, сделав разбивку на участке.

После обсуждений и согласования планировочных решений архитектор разработал фасады здания, которые представил Заказчику в виде трехмерной модели.

После согласования архитектурных решений инженеры разработали конструктивную часть проекта. Перед разработкой конструктивных решений на участке были выполнены инженерно-геологические изыскания.

Построенный дом
Построенный дом

Посмотрите видеообзоры построенного дома: