Добавить в корзинуПозвонить
Найти в Дзене
Строим на Позитиве

Планировка одноэтажного дома 9x11 с тремя спальнями.

Показываю свою лучшую планировку одноэтажного дома размером 9х11 метров и полезной площадью всего 79,6 м2. Удивительно, но в эту площадь я смог уместить вариант с тремя спальнями, а также просторную кухню-гостиную и раздельный санузел. Один мой знакомый, еще достаточно молодой попросил помочь начертить для него небольшой домик в один этаж, с максимальными размерами 9х11. Домик ему хочется уютный и в тоже время простой в исполнении, так как строиться планирует самостоятельно. На данный момент у него один маленький ребенок, но есть принципиальное желание завести второго. Когда детишки одного пола, при ограниченной площади дома, оптимально делать детскую в одной комнате. Но если дети разных полов, то со временем вариант с одной детской комнатой станет неудобным. Я решил сделать проект максимально универсальным и начертить его в двух вариантах. Если дети одного пола - вариант с двумя спальнями, если мальчик и девочка - вариант с тремя спальнями. В остальном, оба проекта практически иденти
Оглавление

Показываю свою лучшую планировку одноэтажного дома размером 9х11 метров и полезной площадью всего 79,6 м2. Удивительно, но в эту площадь я смог уместить вариант с тремя спальнями, а также просторную кухню-гостиную и раздельный санузел.

Предпосылки к проектированию.

Один мой знакомый, еще достаточно молодой попросил помочь начертить для него небольшой домик в один этаж, с максимальными размерами 9х11. Домик ему хочется уютный и в тоже время простой в исполнении, так как строиться планирует самостоятельно.

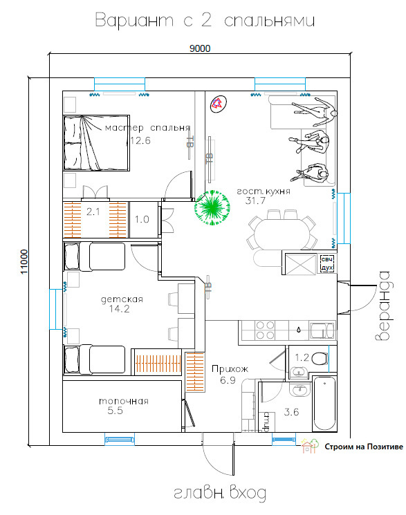
На данный момент у него один маленький ребенок, но есть принципиальное желание завести второго. Когда детишки одного пола, при ограниченной площади дома, оптимально делать детскую в одной комнате. Но если дети разных полов, то со временем вариант с одной детской комнатой станет неудобным.

Проект дома 9*11 с двумя спальнями
Проект дома 9*11 с двумя спальнями

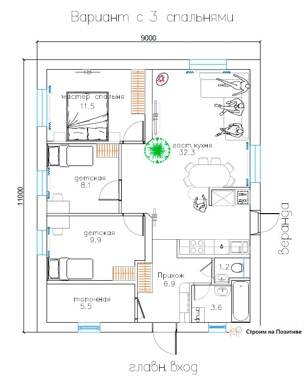
Я решил сделать проект максимально универсальным и начертить его в двух вариантах. Если дети одного пола - вариант с двумя спальнями, если мальчик и девочка - вариант с тремя спальнями. В остальном, оба проекта практически идентичны.

Проект дома 9х11 с тремя спальнями
Проект дома 9х11 с тремя спальнями

Проектные работы по этой планировке (проект фундамента, стен, кровли, смета на материалы и т.д.) я планирую выкладывать на канале, поэтому если вам нравится планировка, не забывайте подписываться на канал.

Основные конструктивные особенности

  • Площадь дома по внешним стенам 99м2
  • Фундамент - пока предполагаю просчитывать два варианта - малозаглубленную ленту с утепленной отмосткой + перекрытие по грунту и плита по пенопласту ребрами вниз также с утепленной отмосткой
  • Стены - внешние, газобетон марки d400 толщиной 400, внутренняя несущая - d500 толщиной 300. Обвязочный пояс и монолитная балка по центральной стене. Внутренние перегородки газобетон 150мм (стена под кухонный гарнитур и стена между топочной и жилой комнатой) и 100мм (остальные перегородки)
  • Кровля - вальмовая, просчитаю два варианта металлочерепица и гибкая многослойная черепица. Утепление 200мм по чердачному перекрытию (чердак холодный). Свесы кровли 500мм.

Планировочные решения

Большая кухня-гостиная — это не просто пространство, а воплощение комфорта и функциональности. Первым плюсом является создание открытой концепции, которая способствует свободному движению и ощущению простора. В таком интерьере легко собираться с друзьями и семьей, ведь кухня становится центром общения и взаимодействия.

Убрав из проекта лишний коридор, удалось выжать максимум из дома размерами 9 на 11м. Кухня - гостиная получилась большой, я бы даже сказал максимально большой учитывая скромные размеры дома и полезную площадь всего в 79.6м2. Помимо этого длинный коридор это существенная прибавка к штукатурным и отделочным работам.

-3

Кухня предполагается двухлинейная. На одной линии размещена мойка, посудомоечная машина и электроплита. На второй линии колонна под духовку и СВЧ, большой холодильник (90см) и вспомогательный столик по типу барного.

  • За небольшим столиком хозяйка может заниматься готовкой общаясь с домочадцами или попить кофе. Во время застолья этот столик можно использовать для размещения напитков, хлеба, громоздких блюд и т.д. разгрузив основной стол.

Кстати, в Швеции часто используют похожий столик, для размещения на нем блюд во время больших застолий. Гости сами подходят и набирают то что им подходит, отсюда и пошло название - шведский стол.

В целом кухня получилась довольно компактной, но учитывая что обеденный стол вынесен за ее пределы, а также общий минимализм дома, вполне комфортная. Выход на веранду выполнен через зону кухни.

Гостиная классическая расположена в стороне от основных проходов, включает большой ТВ (можно заменить на проектор), угловой диван и мини камин.

Мини камин - признаюсь честно, я большой любитель каминов, хотя сам еще не установил и опыта эксплуатации не имею, но в своих проектах всегда нахожу местечко для мини камина. В эту планировку идеально подойдет овальный, компактный камин ромотоп ларедо в песчанике.

  • Вечерами, собираясь с близкими у камина, можно наслаждаться теплом и общением, делясь историями и смехом, создавая воспоминания, которые останутся с вами навсегда.
печь камин ромотоп ларедо и угловой диван
печь камин ромотоп ларедо и угловой диван

Спальни - как я уже говорил, у меня получилось вместить в столь малую площадь вариант с тремя спальнями. Детские спальни небольшие, но как говорит моя старшая дочь - пусть маленькая, но своя. И она была счастлива когда на даче у тещи ей выделили крохотную комнату на втором этаже.

Я считаю если дети разнополые, однозначно нужно отдельные комнаты. А двум мальчишкам или девчонкам можно и в одной большой, веселее будет. Мебель в детских расставил по минимуму - кровать, письменный стол, шкаф для одежды. Игрушки можно хранить в ящике под кроватью.

Когда дети вырастут и разъедутся, то в варианте с тремя спальнями, самую маленькую можно заменить на кабинет или кладовую.

Главная спальня обладает уже вполне приличными размерами, комплектуется большим шкафом или гардеробной.

-5

Прихожая, топочная, санузел.

Прихожая - средних размеров, позволяет свободно разместить большой шкаф для верхней одежды и обуви, а также прихожую со пуфиком и вешалками. На этом проекте не стал отделять прихожую от гостиной-кухни дверью, но рекомендую это сделать, возможность такая есть.

-6

Топочная - оптимальных размеров для размещения газового котла. Перегородку между топочной и спальней буду закладывать толщиной 150мм, тем самым увеличив ее на 50% относительно прочих перегородок, толщины которых предполагаются в 100мм. Думаю 150мм газоблока будет достаточно что бы исключить возможный шум из топочной.

Топочная имеет вытянутую форму, учитывая что дом совсем маленький, оборудование котельной не займет много места, и после подключения газа можно перенести в топочную колонну со стиральной и сушильной машиной расположив возле входа (как вариант).

Санузел - с трудом, но все таки у меня получилось втиснуть раздельный санузел. Дом рассчитан на семью в 4 человека и ситуации когда кто то принимает ванну с морской солью и пеной, а кому то вдруг приспичило и приходится ждать, хотелось бы избежать.

Еще хочется отметить, что за исключением топочной, все источники сточных вод находятся очень компактно. Это позволит сделать канализацию максимально эффективной и наименее затратной.

Не знаю как вам, а мне эта планировка кажется очень удачной, возможно, начни я стройку заново, то не стал бы строить свои 2 этажа в 150м2, а выбрал именно этот проект. В принципе, в нем есть все что надо. И при этом он будет весьма экономичным в эксплуатации. А пристроив застекленную веранду можно существенно расширить пространство дома на летний период.

А на этом все, ставьте лайки, подписывайтесь на канал, оставляйте комментарии.

Также вам может быть интересно: