Найти в Дзене
Пикабу

Две двери, и коридор

За неделю до нового года, подписали строительный контракт. Клиенты купили часть дома, собираются сделать детский сад. До этого в этом здании была поликлиника. Нужно развалить все внутренние стены, и сделать в конечном итоге открытое помещение для детей. Начали ломать старые стены, а они во -первых из бетонных блоков, а во вторых поддерживают стропила крыши первого этажа. Полгода архитектор работал над проектом и не проверил структурные особенности проекта. Закрыли стройку на две недели, что инженер внёс изменения в проект. Через две недели получили инженерные чертежи. Инженер решил сносить всю крышу и устанавливать металлические колонны на новые фундаменты с перекрытиями. Этого не было в контакте, поэтому посчитали и дали доп цену клиенту. Вышло дополнительных работ на 82000 фунтов стерлингов. Клиент утвердил, но уже был недоволен архитектором. Непредвиденные расходы его сильно расстроили, чего и следовало ожидать. Все что можно сломали, стали копать фундамент согласно структурному чер

За неделю до нового года, подписали строительный контракт. Клиенты купили часть дома, собираются сделать детский сад. До этого в этом здании была поликлиника. Нужно развалить все внутренние стены, и сделать в конечном итоге открытое помещение для детей.

Начали ломать старые стены, а они во -первых из бетонных блоков, а во вторых поддерживают стропила крыши первого этажа.

Полгода архитектор работал над проектом и не проверил структурные особенности проекта. Закрыли стройку на две недели, что инженер внёс изменения в проект. Через две недели получили инженерные чертежи. Инженер решил сносить всю крышу и устанавливать металлические колонны на новые фундаменты с перекрытиями. Этого не было в контакте, поэтому посчитали и дали доп цену клиенту. Вышло дополнительных работ на 82000 фунтов стерлингов. Клиент утвердил, но уже был недоволен архитектором. Непредвиденные расходы его сильно расстроили, чего и следовало ожидать.

.
.

Все что можно сломали, стали копать фундамент согласно структурному чертежу.

-3

Раскопали пять фундаментов, в одном из них дренажная труба дома.

-4

Я как раз на стройке был, сделал эту фотографию, и вышел на улицу поговорить по телефону с архитектором. Вот так выглядит дом.

-5

Слева это вход в их купленную часть дома, у клиентов весь первый этаж и подвал. С права вход на второй этаж дома, там живёт какой то индус с семьёй. Я вышел на улицу, и как раз он шел мимо, я поздоровался. Он зашёл в свою дверь. Я смотрю ему в след, и думаю.

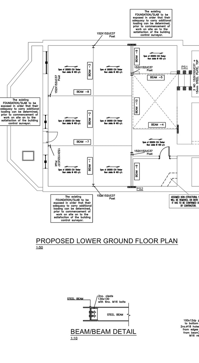
А как он попадает к себе на второй этаж? Как оказалось, идут они на второй этаж через свой коридор, который находится на нашем этаже. Этот коридор разделяет часть первого этажа примерно пополам. А у архитектора в проекте, вот так.

-6

То что чужой коридор делит эту большую комнату пополам он и не знал. архитектор там ходил что то мерил, обсуждали дизайн с клиентами, и вот такая засада.

Я думаю его смутила эта заколоченная дверь.

-7

Он думал, что эта дверь во вторую комнату., потому что во второй комнате, точно такая же дверь.

-8

Но дело в том, что это две разные двери, через которые раньше можно было попасть на второй этаж этого дома. Много лет назад дом раздели, продали разным людям, а двери просто заблокировали.

Самое удивительное они расположены друг напротив друга, и покрашены одним цветом.

Сегодня архитектор встречается с клиентами, будут обсуждать эту проблему. Вероятно будут менять архитектурные чертежи.

П.С. Фундамент, где обнаружили дренажную трубу попросили закопать, и перенести в угол дома.

Пост автора turul.

Читать комментарии на Пикабу.