Добавить в корзинуПозвонить
Найти в Дзене

ТЕХНИЧЕСКОЕ ОБСЛУЖИВАНИЕ СУХИХ СИЛОВЫХ ТРАНСФОРМАТОРОВ

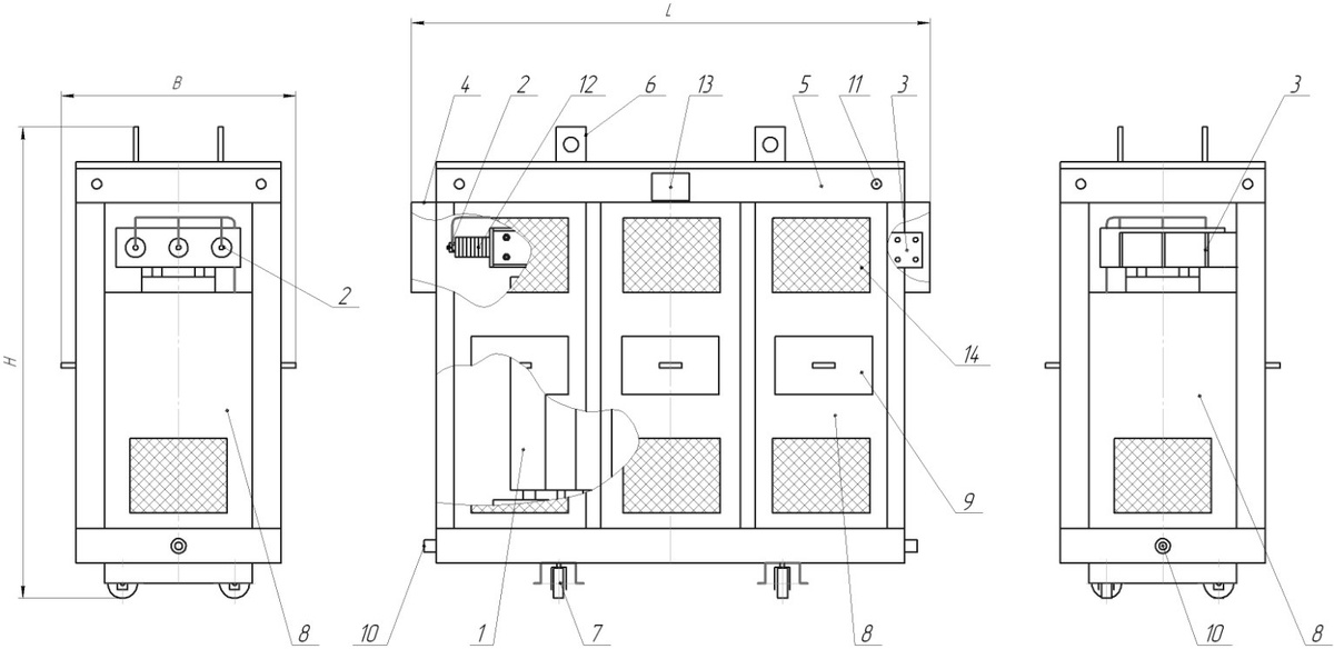
В условиях эксплуатации с целью обеспечения нормальной работы трансформаторов в течение всего срока службы необходимо регулярно следить за его состоянием. Сроки периодических внешних осмотров зависят от типа установки, назначения трансформаторов и определяются правилами технической эксплуатации и утвержденными в установленном порядке для данного объекта инструкциями При монтаже трансформаторов и его обслуживании, требования безопасности соответствуют действующим «Правилам технической эксплуатации электроустановок потребителей» и «Межотраслевым правилам по охране труда (правилам безопасности при эксплуатации электроустановок)». Поднимать и перемещать трансформаторы следует осторожно. Трансформатор необходимо поднимать только за специально предназначенные для этой цели подъемные рым-болты и пластины с отверстиями согласно рисункам представленным ниже. Общий вид, устройство, габаритные, присоединительные размеры и масса трансформаторов. ЗАПРЕЩАЕТСЯ: Техническое обслуживание трансформаторо

В условиях эксплуатации с целью обеспечения нормальной работы трансформаторов в течение всего срока службы необходимо регулярно следить за его состоянием.

Сроки периодических внешних осмотров зависят от типа установки, назначения трансформаторов и определяются правилами технической эксплуатации и утвержденными в установленном порядке для данного объекта инструкциями

При монтаже трансформаторов и его обслуживании, требования безопасности соответствуют действующим «Правилам технической эксплуатации электроустановок потребителей» и «Межотраслевым правилам по охране труда (правилам безопасности при эксплуатации электроустановок)».

Поднимать и перемещать трансформаторы следует осторожно. Трансформатор необходимо поднимать только за специально предназначенные для этой цели подъемные рым-болты и пластины с отверстиями согласно рисункам представленным ниже.

Общий вид, устройство, габаритные, присоединительные размеры и масса трансформаторов.

-2

ЗАПРЕЩАЕТСЯ:

  • производить любые виды работ и переключения на трансформаторах, подключенных к сети хотя бы с одной стороны;
  • эксплуатировать трансформаторы с поврежденными вводами (трещинами, сколами на изоляционных поверхностях обмоток и вводов ВН, перегорание токопроводящих элементов ввода), с поврежденными элементами изоляции (следами прогорания или электрического пробоя);
  • включать трансформатор без подключения к заземлению.

Техническое обслуживание трансформаторов

Эксплуатация и обслуживание трансформатора разрешается лицам прошедшим специальную подготовку и ознакомившимся с руководством по эксплуатации.

Для своевременного обнаружения неисправностей все трансформаторы подвергаются периодическому внешнему осмотру (без отключения).

При внешнем осмотре трансформаторов, прежде всего, проверяется отсутствие повреждений в элементах рабочей изоляции. На рабочих поверхностях изоляционных деталей не должно быть следов подгорания, разрушения или электрического пробоя изоляции.

При осмотре следует прислушаться к звуку работающего трансформатора. По характеру звука, его усилению или появлению новых тонов в звучании можно предварительно установить наличие неисправностей:

  • ослабление стяжки ярма и его балок;
  • работу трансформатора при повышенном напряжении.

В процессе эксплуатации, с течением времени, отдельные части трансформаторов, подвергаясь термическим, электродинамическим и механическим воздействиям, постепенно теряют свои первоначальные качества и могут прийти в негодность.

Необходимо время от времени производить осмотры трансформаторов с отключением их от сети.

В зависимости от объема работ, производимых при ремонтах, различают два вида ремонта:

  • капитальный ремонт с разборкой трансформаторов на отдельные составные части;
  • текущий ремонт с отключением трансформаторов от сети, но без разборки его на отдельные составные части.

Капитальный ремонт с разборкой трансформаторов на отдельные составные части производится в зависимости от результатов измерений и состояния трансформаторов.

Периодический капитальный ремонт трансформаторов производят в следующем объеме:

  1. разборка трансформатора на его основные составные части и их осмотр;
  2. очистка поверхностей рабочей изоляции от пыли, грязи или нагара;
  3. ремонт магнитопровода, обмоток, перемычек переключателя и вводов;
  4. чистка и, в случае необходимости, покраска металлических узлов и деталей трансформатора;
  5. проведение установленных измерений и испытаний.

В периодический текущий ремонт входят следующие работы:

  1. наружный осмотр и устранение обнаруженных дефектов;
  2. очистка от пыли и грязи поверхностей рабочей изоляции;
  3. проведение установленных измерений и испытаний.

Определение характеристик изоляции

За температуру изоляции трансформатора, не подвергавшегося нагреву, принимается температура окружающего воздуха. Перед проведением измерений трансформатор следует выдержать при этой температуре не менее 6 часов. Если температура воздуха ниже плюс 10 °С, то для измерения изоляционных характеристик трансформатора, его необходимо нагреть.

Нагрев производить одним из следующих методов:

  • размещением в отапливаемом помещении;
  • нагревом электронагревателями закрытого типа, устанавливаемыми под трансформатор;
  • прогревом токами короткого замыкания, величиной не больше номинальной.

При нагреве трансформатора, температура изоляции принимается равной средней температуре СО, определяемой по сопротивлению обмоток постоянному току. Измерение указанного сопротивления производить не ранее, чем через 60 минут после отключения нагрева током в обмотке или через 30 минут после отключения внешнего источника тепла.

Сопротивление изоляции измерять мегомметром с рабочим напряжением 1000 В и с верхним пределом измерения не ниже 1000 МОм. Перед началом каждого измерения испытуемая обмотка должна быть временно заземлена не менее чем на 2 минуты.

Состояние изоляции оценивается по коэффициенту абсорбции Кабс. Коэффициент абсорбции определяется как отношение значения сопротивления изоляции (R²60), замеренного через 60 секунд после приложения напряжения, к значению сопротивления (R²15), замеренного через 15 секунд.

Величина R²60 / R²15 не нормируется, обычно это отношение при температуре от плюс 10 до плюс 30°С для трансформаторов с неувлажненной изоляцией должна быть не менее 1,3.

Для приведения значений R²15 и R²60, измеренных при температуре t1 на заводе, к температуре t2, измеренных при монтаже, производится перерасчет с помощью коэффициента К2, примерное значение которого приведено в таблице.

-3

Приведенные значения сопротивления изоляции при монтаже должны быть не ниже 70 % от значений заводских испытаний, указанных в паспорте трансформаторов.

Включить трансформатор на полное номинальное напряжение при отключенной нагрузке (в режиме холостого хода) и провести наблюдение за его состоянием в течение 30 минут.

При удовлетворительных результатах пробного включения трансформатор может быть включен под нагрузку.

Ревизия трансформаторов

В процессе эксплуатации трансформаторы должны подвергаться систематическому контролю и периодическим планово-предупредительным ревизиям.

В послегарантийный период трансформаторы могут быть разобраны, в случае необходимости, для ревизии. В период гарантийного срока разборку трансформаторов разрешается производить только с согласия завода - изготовителя.

Помещение, где производится ревизия трансформаторов, должно быть сухим и чистым, защищенным от попадания атмосферных осадков и пыли.

-4

Разборку трансформаторов производить в следующей последовательности:

  1. снять кожух трансформатора (для трансформаторов типа ТЛСЗ);
  2. разобрать схему соединения обмоток, разъединив перемычки 11 (см. рисунок);
  3. ослабить винты для подпрессовки обмоток 8;
  4. снять упоры фиксации обмоток 7;
  5. ослабить шпильки 4;
  6. снять верхние ярмовые балки 3;
  7. расшихтовать верхнее ярмо магнитопровода;
  8. снять фиксирующие клинья между вентильными обмотками и стержнем магнитопровода;
  9. отсоединить шины, соединяющие вводы фазных ВО;
  10. снять обмотки ВО;
  11. снять обмотки СО.
  12. выполнить работы, связанные с устранением неполадок в трансформаторе.

Сборку трансформатора производить в обратном порядке.

Активная часть трансформаторов подлежит сушке, если в процессе ревизии обнаружится снижение величины сопротивления изоляции ниже значений, указанных в таблице.

-5

Сушка активной части трансформаторов должна производиться при температуре (100 – 105) °С. Повышать температуру необходимо постепенно со скоростью не более 50 °С/ч. Сушка считается оконченной, если сопротивление изоляции, которое вначале уменьшается, а затем повышается, будет в дальнейшем постоянным в течение 6 часов.

Результаты ревизии трансформаторов оформляются актом.

Утилизация трансформаторов

Компоновка конструктивных элементов трансформаторов, вид материалов (экологически безопасные), используемые при изготовлении трансформаторов, позволяют минимизировать технологический процесс утилизации.

При утилизации должны быть выполнены следующие требования:

  • металлические составные части трансформаторов (алюминиевые вывода, сталь электротехническая и конструкционная) должны быть сданы на предприятия по переработке цветных и черных металлов;
  • сетевые обмотки, стеклотекстолитовые изделия, листовые материалы должны быть отправлены на полигон твердых бытовых отходов.