Добавить в корзинуПозвонить
Найти в Дзене
ДОМ с умом

Проект "Николь" - дом выходного дня с 2 спальнями.

Дом по проекту "Николь" – отличный вариант для тех, кто пока не готов к полному переезду загород, но хотел бы проводить больше времени на свежем воздухе вдали от мегаполиса. Несмотря на скромные размеры, его внутреннее пространство рационально распланировано для комфортного размещения семьи из 3-х человек. Общая площадь: 68,8 кв.м
Жилая площадь: 68,8 кв.м
Габариты: 10,5 м х 11,5 м
Фундамент: буронабивные сваи с ростверком
Стены: керамзитоблок 390 мм, утеплитель - 100 мм.
Отделка фасада: кирпич
Чердачное перекрытия - по деревянным балкам
Крыша - из металлочерепицы по деревянной стропильной системе Этот дом отличается компактными габаритами и практичной организацией внутреннего пространства. В доме предусмотрены 2 спальни, кухня-гостиная с выходом на террасу, санузел, тамбур и котельная. В коттедже нет ничего лишнего, но при этом есть все для комфортного отдыха за городом. 📌Жилая площадь – 68,8 кв.м
📌Кухня-гостиная - 25 в.м
📌Спальни – 2 шт. ▪️▪️▪️▪️▪️▪️▪️▪️▪️▪️▪️▪️▪️▪️▪️▪️▪️▪️▪️▪️
Оглавление

Дом по проекту "Николь" – отличный вариант для тех, кто пока не готов к полному переезду загород, но хотел бы проводить больше времени на свежем воздухе вдали от мегаполиса. Несмотря на скромные размеры, его внутреннее пространство рационально распланировано для комфортного размещения семьи из 3-х человек.

Характеристики:

Общая площадь: 68,8 кв.м
Жилая площадь: 68,8 кв.м
Габариты: 10,5 м х 11,5 м
Фундамент: буронабивные сваи с ростверком
Стены: керамзитоблок 390 мм, утеплитель - 100 мм.
Отделка фасада: кирпич
Чердачное перекрытия - по деревянным балкам
Крыша - из металлочерепицы по деревянной стропильной системе

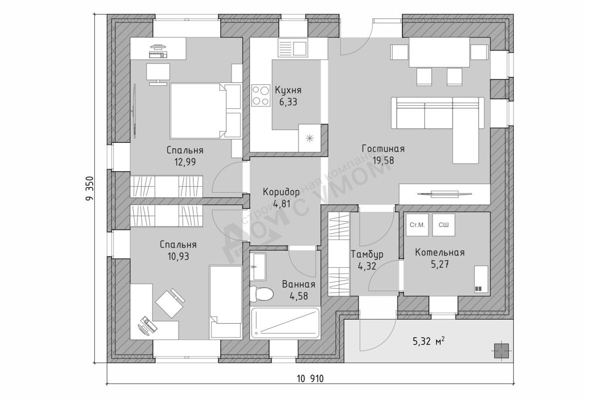
Планировка:

Этот дом отличается компактными габаритами и практичной организацией внутреннего пространства. В доме предусмотрены 2 спальни, кухня-гостиная с выходом на террасу, санузел, тамбур и котельная. В коттедже нет ничего лишнего, но при этом есть все для комфортного отдыха за городом.

-2

📌Жилая площадь – 68,8 кв.м
📌Кухня-гостиная - 25 в.м
📌Спальни – 2 шт.

▪️▪️▪️▪️▪️▪️▪️▪️▪️▪️▪️▪️▪️▪️▪️▪️▪️▪️▪️▪️▪️▪️▪️▪️▪️▪️▪️▪️▪️▪️▪️▪️▪️

Стоимость проектной документации (серии АР, КР) - 26 000 руб.