Найти в Дзене
DIVAN.RU

ДО/ПОСЛЕ: из унылой «сталинки» в элегантный интерьер с анфиладой

Впечатляющее преображение питерской вторички в эстетичное и комфортное пространство. Об объекте: двухкомнатная квартира 62 кв.м, г. Санкт-Петербург Авторы проекта: дизайнеры Александра и Анастасия Рушанские «Состояние квартиры было так себе, долгое время она сдавалась. Здесь уже не осталось лепнины или советского паркета, которые можно было бы сохранить, так что старый ремонт подлежал смелому сносу. Наша основная задача была — сделать эстетично и комфортно, чтобы будущие хозяева получали положительные эмоции от проживания». Чтобы визуально увеличить пространство, планировку сделали анфиладной — создали дополнительный проход из кухни в гостиную, объединив таким образом все помещения. В прихожей расширили площадь кладовой, превратив ее в полноценную гардеробную. До ремонта кухня была совершенно неактуальным пространством. Требовалось полностью поменять отделку, продумать современное наполнение и красивый дизайн. Новый интерьер получился светлым, легким и очень уютным. На полу во всей ква
Оглавление

Впечатляющее преображение питерской вторички в эстетичное и комфортное пространство.

Об объекте: двухкомнатная квартира 62 кв.м, г. Санкт-Петербург

Авторы проекта: дизайнеры Александра и Анастасия Рушанские

«Состояние квартиры было так себе, долгое время она сдавалась. Здесь уже не осталось лепнины или советского паркета, которые можно было бы сохранить, так что старый ремонт подлежал смелому сносу. Наша основная задача была — сделать эстетично и комфортно, чтобы будущие хозяева получали положительные эмоции от проживания».

Чтобы визуально увеличить пространство, планировку сделали анфиладной — создали дополнительный проход из кухни в гостиную, объединив таким образом все помещения. В прихожей расширили площадь кладовой, превратив ее в полноценную гардеробную.

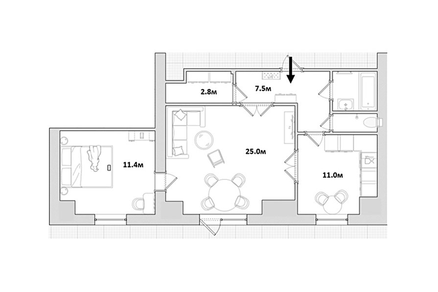
Планировочное решение
Планировочное решение

Кухня

До ремонта кухня была совершенно неактуальным пространством. Требовалось полностью поменять отделку, продумать современное наполнение и красивый дизайн.

Состояние кухни ДО ремонта
Состояние кухни ДО ремонта

Новый интерьер получился светлым, легким и очень уютным. На полу во всей квартире единым контуром уложен ламинат, стены окрашены белой краской.

Угловой гарнитур собирали из готовых модулей, фасады подобраны в цвет стен. От верхних шкафов отказались, чтобы пространство свободным.

Обратите внимание: на кухне отсутствует вытяжка. Как утверждают заказчики, запахи быстро исчезают при открытии окна или включении вытяжного вентилятора. Кроме того, кухня изолирована от других помещений квартиры дверями, которые можно закрыть во время готовки.

Гостиная

На начало проекта это было просторное помещение, в котором на первый взгляд не к чему придраться. Но его функционал был не определен: комнату использовали и как гостиную, и как спальню. Темная громоздкая мебель производила «тяжелое» впечатление.

Для оформления стен в комнате использовали сочетание светлой краски и молдингов. Выкрашенные в тот же цвет, они практически не считываются, но в то же время добавляют объема и визуально приподнимают потолки.

При выборе отделочных материалов и мебели стремились к оптимальному соотношению цены и качества. В этом нам очень помог бренд divan.ru, где есть все необходимое для обустройства дома. Белоснежный диван Льери с обивкой из букле и столик Репаркс из переработанного пластика были заказаны именно здесь.

➡️ В кадре угловой диван Льери от бренда divan.ru >>

Нам нравится традиция собираться всей семьей за большим обеденным столом: вести длинные беседы за ужином, обсуждать последние новости. Хотелось, чтобы именно такими маленькими радостями была наполнена жизнь хозяев квартиры, поэтому мы тщательно подошли к выбору обеденной группы. Стол с реечным основанием и стулья с плетеными сиденьями тоже нашли в divan.ru. Они станут отличным местом, где можно собираться всей семьей, вести долгие беседы за ужином и обсуждать последние новости.
Проект дизайнеров  Александры и Анастасии Рушанских; автор фото Александра Дуброва
Проект дизайнеров Александры и Анастасии Рушанских; автор фото Александра Дуброва

➡️ В кадре кухонный стол Хилл от бренда divan.ru >>

❤️ Эту кровать сейчас можно приобрести со скидкой до 10 000₽*! Выбирайте мебель и аксессуары по выгодным ценам на распродаже в divan.ru >>

-9

Спальня

В варианте «до» интерьер выглядел слишком мрачно и неуютно из-за обилия мебели.

Состояние спальни ДО ремонта
Состояние спальни ДО ремонта

После ремонта спальня преобразилась: стены и потолок сделали светлыми, кровать поставили широкую и с мягким изголовьем, подобрали акцентный текстиль. Около окна обустроили рабочее место, которое может служить туалетным столиком, предусмотрели ростовое зеркало и распашной шкаф (он стоит напротив окна). Динамики и графичности добавили с помощью оригинальных светильников.

➡️ В кадре кровать Лайтси от бренда divan.ru >>

Прихожая

Часть длинного коридора отдали под гардеробную. В прихожей поставили узкую консоль, напольную вешалку и мягкую банкетку.

➡️ В кадре тумба Осака Wood от бренда divan.ru >>

Санузел

Ванная комната и туалет «поддерживают» цветовую гамму, выбранную для всей квартиры: в них преобладают белые оттенки, добавлены элементами дерева и черные акценты. Светлые стены помогают визуально расширить пространство, отражая свет. Рельефная плитка оживляет монохромный дизайн, добавляя ему ритм и динамику.

Кстати: из наследия предыдущих владельцев удалось сохранить чугунную ванну, которую отреставрировали с помощью жидкого мрамора.

==========

Оцените интерьер в комментариях, а если материал понравился — не забудьте поставить лайк👍

🖤divan.ru — не только блог про интерьеры, но и производитель доступной дизайнерской мебели. Ищите новые идеи и переходите на сайт, чтобы воплотить их в жизнь.