Найти в Дзене
Лесстрой Портал

Дом из оцилиндрованного бревна «Проверенный» от 2 450 000 рублей

Двухэтажный дом 10.4x7.7 м, общей площадью 105 м2 и стоимостью от 2 450 000 рублей. От нашего подрядчика ООО "БрусКом". Ссылка на проект: https://lesstroy.net/user/16337/project/52273/
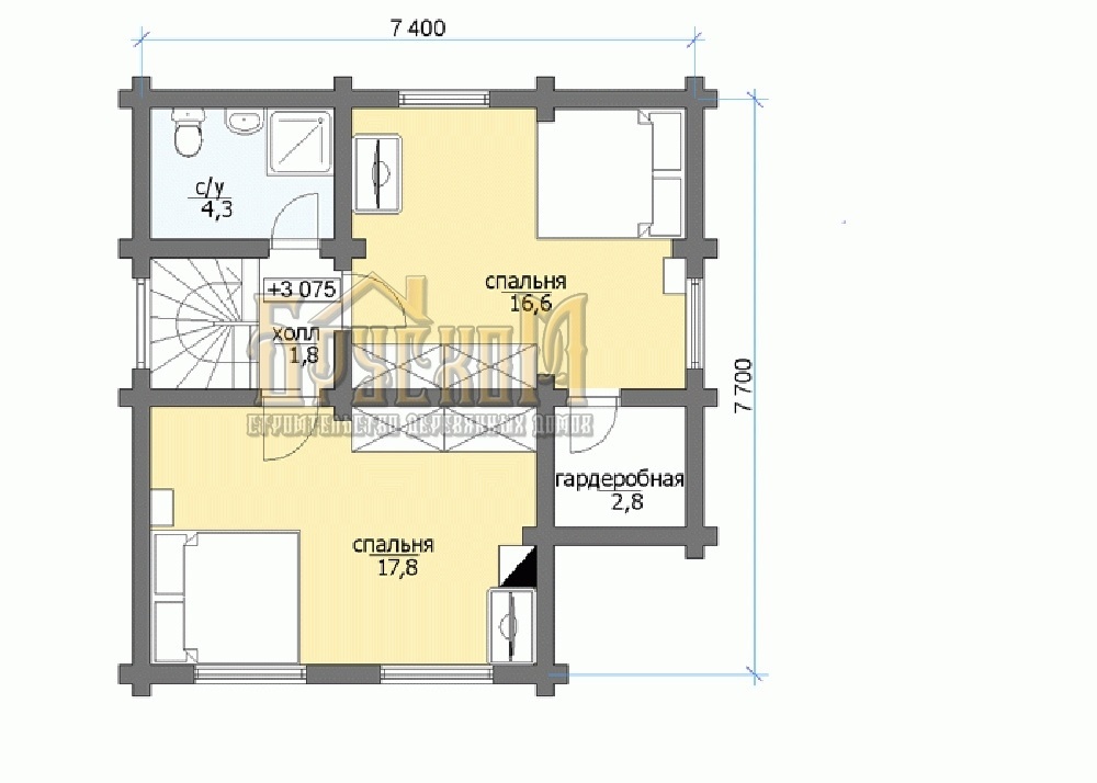
Несмотря на свои относительно небольшие размеры, дом достаточно привлекательный и вместительный. На первом этаже разместились прихожая, с/у, кухня-столовая и гостиная, из которой можно попасть на большую террасу. На мансардном этаже разместился просторный холл, с/у и две спальни. Благодаря большим окнам времяпровождение в гостиной на первом этаже будет доставлять большое удовольствие чтобы дышать свежим воздухом и любоваться природой.
Дом «Проверенный» Размер: 10.4 х 7.7 м Общая площадь: 103 кв.м Жилая площадь: 89.4 кв.м Площадь первого этажа: 58.9 кв.м Площадь второго этажа: 43.3 кв.м В комплектацию входит:
1. Стеновой комплект с крепежными элементами
2. Межвенцовый утеплитель (джут)
3. Балки перекрытия (брус 100×150 мм)
4. Потолочные балки (доска обрезная хвойных пород 50×150 мм)
5. Стропильная

Двухэтажный дом 10.4x7.7 м, общей площадью 105 м2 и стоимостью от 2 450 000 рублей. От нашего подрядчика ООО "БрусКом".

Ссылка на проект: https://lesstroy.net/user/16337/project/52273/

Описание проекта

Несмотря на свои относительно небольшие размеры, дом достаточно привлекательный и вместительный. На первом этаже разместились прихожая, с/у, кухня-столовая и гостиная, из которой можно попасть на большую террасу. На мансардном этаже разместился просторный холл, с/у и две спальни. Благодаря большим окнам времяпровождение в гостиной на первом этаже будет доставлять большое удовольствие чтобы дышать свежим воздухом и любоваться природой.
Дом «Проверенный» Размер: 10.4 х 7.7 м Общая площадь: 103 кв.м Жилая площадь: 89.4 кв.м Площадь первого этажа: 58.9 кв.м Площадь второго этажа: 43.3 кв.м

В комплектацию входит:
1. Стеновой комплект с крепежными элементами
2. Межвенцовый утеплитель (джут)
3. Балки перекрытия (брус 100×150 мм)
4. Потолочные балки (доска обрезная хвойных пород 50×150 мм)
5. Стропильная система (доска обрезная хвойных пород 50×150 мм) с крепежными элементами
6. Обрешетка (доска обрезная хвойных пород 25×100 или 150 мм)
7. Материал временной кровли (рубероид)
8. Погрузка, доставка на участок и разгрузка материала
9. Антисептирование материала 10. Установка (монтаж ) дома на вашем участке.

В указанную стоимость не входят и отдельно рассчитываются: Стоимость фундамента (в зависимости от его типа применительно к Вашему участку) Стоимость кровли (в зависимости от материала согласно Вашим предпочтениям) Стоимость внешней и внутренней отделки Возможно изменение проекта. Возможно строительство из: оцилиндрованного бревна с Финским профилем профилированного бруса