Добавить в корзинуПозвонить
Найти в Дзене
СК "Отис-Строй"

Популярные проекты дачных домиков стоимостью до 1,5 млн. рублей.

В последние годы дачные домики становятся все более популярными среди россиян, стремящихся создать уютное пространство для отдыха и уединения на природе. Один из наиболее востребованных сегментов – проекты стоимостью до 1,5 миллиона рублей. Эти бюджетные решения позволяют реализовать мечты о собственном уголке без значительных финансовых вложений. Как правило, такие домики варьируются от компактных одноэтажных построек до небольших, домиков с мансардным этажом предлагая разумное распределение пространства. Кроме того, проекты предусматривают наличие всех необходимых удобств: от уютной террасы до полноценной кухни. При доступной цене такие домики становятся отличной альтернативой городской квартире, позволяя насладиться природой и спокойствием в любое время года. Проекты одноэтажных домов для дачи предлагают разнообразные варианты для создания комфортного и стильного пространства, идеально подходящего для отдыха и уединения. Невысокие одноэтажные здания обеспечивают легкость конструкции

В последние годы дачные домики становятся все более популярными среди россиян, стремящихся создать уютное пространство для отдыха и уединения на природе. Один из наиболее востребованных сегментов – проекты стоимостью до 1,5 миллиона рублей. Эти бюджетные решения позволяют реализовать мечты о собственном уголке без значительных финансовых вложений.

Как правило, такие домики варьируются от компактных одноэтажных построек до небольших, домиков с мансардным этажом предлагая разумное распределение пространства. Кроме того, проекты предусматривают наличие всех необходимых удобств: от уютной террасы до полноценной кухни. При доступной цене такие домики становятся отличной альтернативой городской квартире, позволяя насладиться природой и спокойствием в любое время года.

Проекты одноэтажных домов для дачи предлагают разнообразные варианты для создания комфортного и стильного пространства, идеально подходящего для отдыха и уединения.

Невысокие одноэтажные здания обеспечивают легкость конструкции и удобство в эксплуатации, что особенно ценно для дачных участков, а наличие просторных террас создают атмосферу уюта и гармонии с природой.

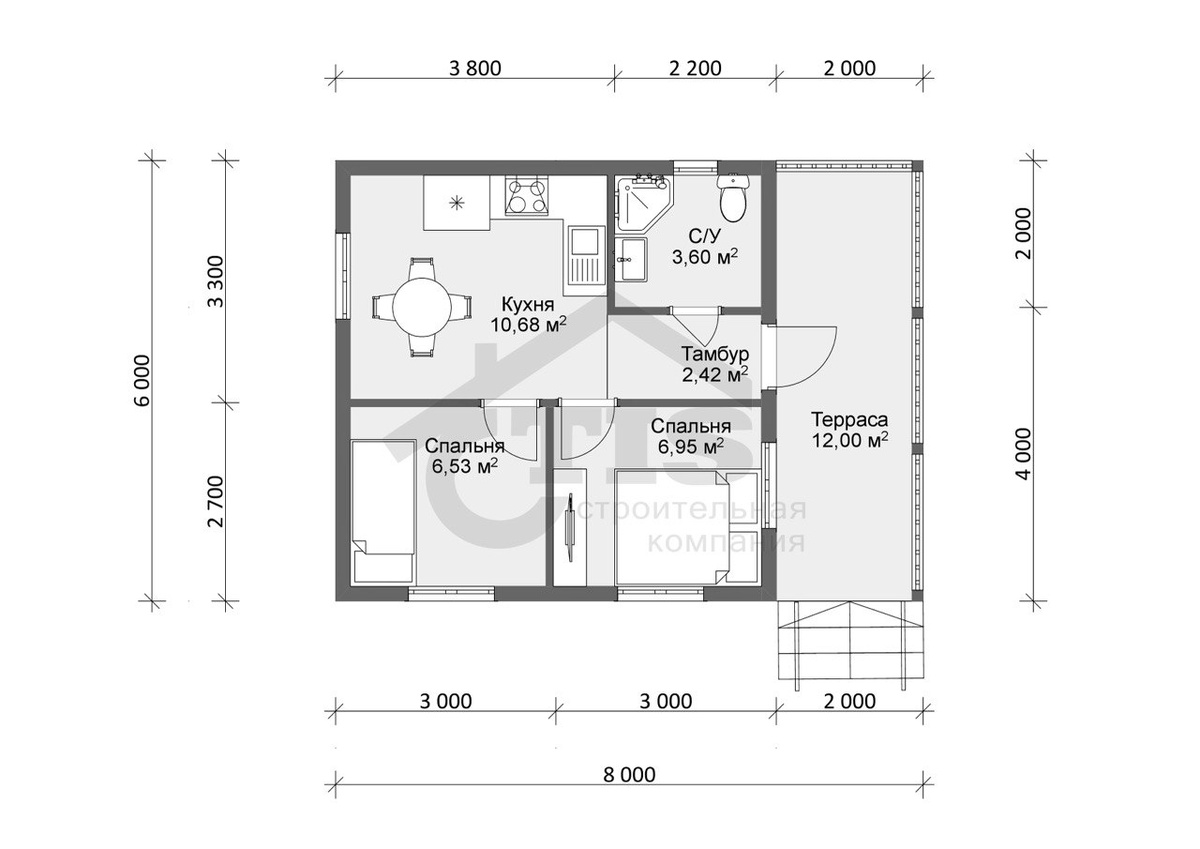
Проект К-44 – стоимостью от 1 390 000 рублей.

Это уютный одноэтажный дом, размером 6*8м с жилой площадью 42 кв.м. В доме имеется просторная терраса, тамбур, небольшая кухня-столовая и две уютные спальные комнаты. Данный вариант подойдет как для сезонного, так и постоянного проживания небольшой семьи состоящей из 2-3 человек.

-2

Проект К-39 – стоимостью от 1 420 000 рублей.

Это уютный домик, размером 6*8м, площадью 44 кв.м, планировка которого включает: просторную террасу, небольшую прихожую, санузел, спальную комнату и объединенную кухню-гостиную, которую по вашему желанию можно разделить на 2 помещения.

-3

-4

Проекты домов с мансардой, предпочтительный вариант для, тех, кто хочет сэкономить место на участке, не теряя при этом жилую площадь. Мансарда, представляет собой уютные и функциональные пространства на втором ярусе, которые можно использовать для различных целей: от мастерской до спальни или детской комнаты.

Проект К-17 – стоимостью от 1 480 000 рублей.

Это небольшой дом с мансардой, размером 6*6м, с жилой площадью 40 кв.м. Планировка дома включает: две просторные комнаты на первом этаже, которые можно использовать как кухню-гостиную и спальную комнату, и дополнительную спальную комнату на втором этаже. Фишкой проекта является наличие просторной террасы и балкона, что позволит сполна насладиться полноценным отдыхом на природе, не выходя из дома.

-5

План 1 этажа
План 1 этажа
План 2 этажа
План 2 этажа

Проект К-12 – стоимостью от 1 500 000 рублей.

Это уютный домик с мансардой, компактным размером 5*6м, с жилой площадью 45 кв.м. В планировке первого этажа предусмотрено наличие прихожей, санузла, кухни и гостиной. А на втором этаже имеются две уютные спальные комнаты.

-8

План 1 этажа
План 1 этажа
План 2 этажа
План 2 этажа

*цены, указанные в данной статье, актуальны на момент ее написания (январь/февраль 2025 года), по вопросам строительства обращайтесь к нашим менеджерам любым удобным для вас способом на нашем сайте https://otis-stroy.ru/