Найти в Дзене

Фотообзор Бани 6х4 П-2 – прекрасное дополнение к вашей даче

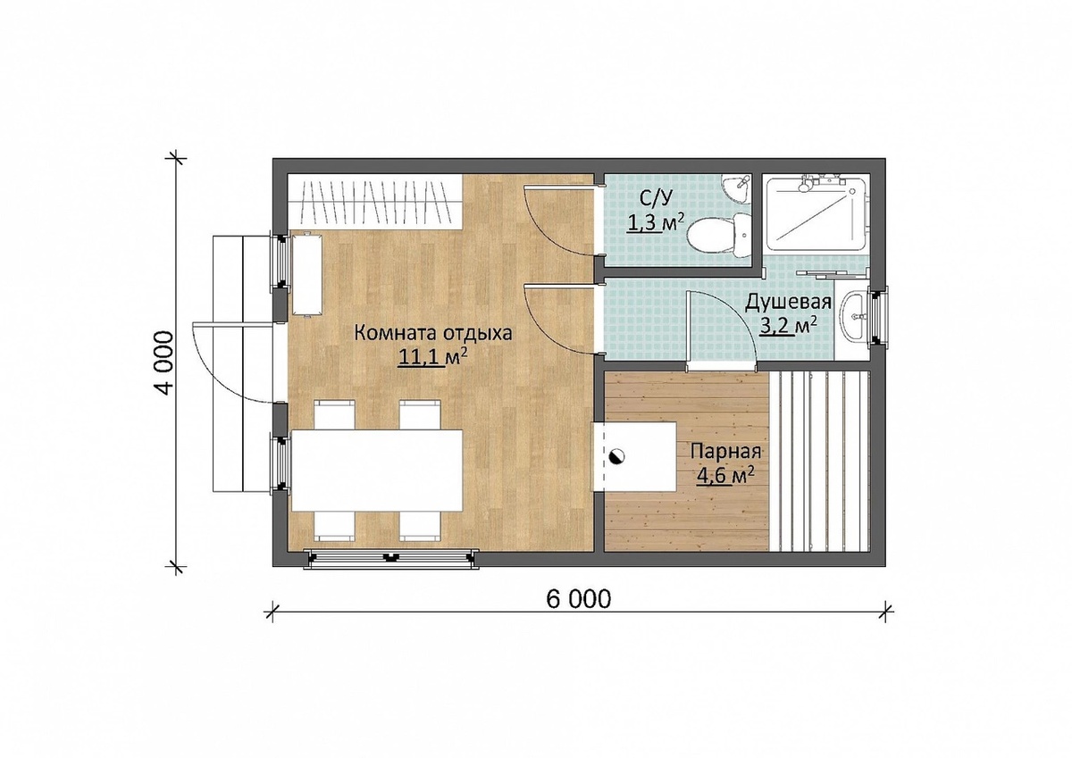
На выставочной площадке Малоэтажная страна в Котельниках мы построили новый выставочный образец Бани размером 6х4. В ней продумано все для комфортного отдыха с родными и близкими. В данном исполнении мы сделали входную дверь пластиковой, с ней пространство внутри бани ощущается больше и просторнее, плюс в комнату попадает больше естественного света – ниже на фото вы это сами увидите! При желании заказчика мы можем поменять дверь на металлическую или деревянную. Итак, предлагаем познакомиться со строением поближе! Баня небольшая, и поместится даже на узких или маленьких участках - 20,2 м2. В ней есть комната отдыха, санузел, полноценная душевая, и сердце любой бани – парная. На входе нас встречает комната отдыха. Здесь уместился обеденный стол со стульями и полноценный кухонный гарнитур. Сюда же выходит печка, создавая неповторимый уют и тепло в помещении. Из комнаты отдыха ведут 2 двери, одна из них в санузел. В нем уместился унитаз и угловая раковина. Вторая дверь ведет нас в душевую
Оглавление

На выставочной площадке Малоэтажная страна в Котельниках мы построили новый выставочный образец Бани размером 6х4. В ней продумано все для комфортного отдыха с родными и близкими.

В данном исполнении мы сделали входную дверь пластиковой, с ней пространство внутри бани ощущается больше и просторнее, плюс в комнату попадает больше естественного света – ниже на фото вы это сами увидите! При желании заказчика мы можем поменять дверь на металлическую или деревянную.

Итак, предлагаем познакомиться со строением поближе!

Планировка

Баня небольшая, и поместится даже на узких или маленьких участках - 20,2 м2. В ней есть комната отдыха, санузел, полноценная душевая, и сердце любой бани – парная.

-2

Фотоэкскурсия по бане

На входе нас встречает комната отдыха. Здесь уместился обеденный стол со стульями и полноценный кухонный гарнитур. Сюда же выходит печка, создавая неповторимый уют и тепло в помещении.

Из комнаты отдыха ведут 2 двери, одна из них в санузел. В нем уместился унитаз и угловая раковина.

Вторая дверь ведет нас в душевую и парное отделение. В небольшом коридоре мы расположили душевую кабину и раковину. Установили небольшое окошко для естественного освещения.

Ну и, наконец, парная! Стены и полки отделаны осиной. Тут находится продолжение самой печки-каменки, бак для нагрева воды и дымоход. Аромат натуральной древесины и приглушенный свет позволит расслабиться на 100%!

Мы также сняли видеоэкскурсию по Бане, посмотреть можно тут: https://dzen.ru/video/watch/67973dda2e99f20333ec0f50

Заказывайте баню на нашем сайте по ссылке: https://liderlesa.ru/catalog/bani/banya-6x4-p-2/

Где посмотреть на выставочные объекты?

Уже посмотрели фотообзор и видеообзор, все понравилось, но сомнения все равно есть? Посетите выставку Малоэтажная страна по адресу: МО, г. Котельники, Дзержинское шоссе, вл. 7/7, дом 58. И вживую посмотрите на этот и другие выставочные дома строительной компании ЦНА.

Ждем вас ежедневно с 10:00 до 19:00!

Подробнее о строительной компании ЦНА здесь: https://liderlesa.ru/