Добавить в корзинуПозвонить
Найти в Дзене
ПСК "Градиент"

Проект G-105: просторный дом на узком участке

Представляем новый проект ПСК Градиент для большой семьи! Проект G-105 идеально подходит для узких участков
Посмотреть проект на сайте: https://clck.ru/3G46w7
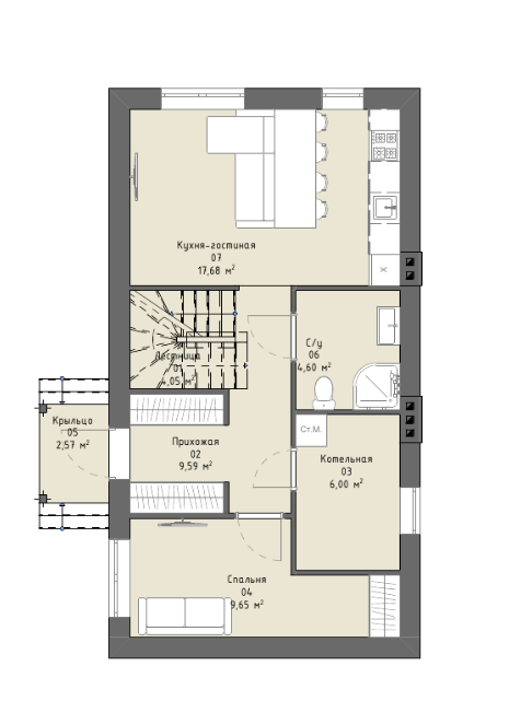
Стоимость строительства от 5,6 млн Этот просторный дом включает: 📌4 спальни, что идеально подходит для комфортного проживания. 📌2 сан. узла 📌котельная 📌кухня-гостиная 💎Откройте для себя комфорт семейной жизни с максимальным использованием пространства!💎 Чтобы узнать стоимость строительства переходите по ссылке и ставьте +
https://t.me/+vtI7CzDKCkNjODIy

Представляем новый проект ПСК Градиент для большой семьи!

Проект G-105 идеально подходит для узких участков
Посмотреть проект на сайте:
https://clck.ru/3G46w7
Стоимость строительства от 5,6 млн

Этот просторный дом включает:

📌4 спальни, что идеально подходит для комфортного проживания.

📌2 сан. узла

📌котельная

📌кухня-гостиная

1 этаж
1 этаж

2 этаж
2 этаж

💎Откройте для себя комфорт семейной жизни с максимальным использованием пространства!💎

Чтобы узнать стоимость строительства переходите по ссылке и ставьте +
https://t.me/+vtI7CzDKCkNjODIy