Найти в Дзене
Берег Песочной

Лот №132: Современный дом для большой семьи на участке 502 м2

Представляем вам современный двухэтажный загородный дом, воплощающий комфорт и функциональность для большой семьи. Дом общей площадью 172,60 м2, расположенный на участке 502 м2, предлагает 5 уютных спален, обеспечивая пространство для каждого члена семьи. Строительство с использованием современных технологий: Внешний вид: Планировка: Первый этаж: Второй этаж: Преимущества: Лот №132 - это не просто дом, это небольшой оазис для вашей семьи, где каждый может найти свое уютное место. В нем вы найдете все необходимое для комфортной и счастливой жизни. #коттеджныйпоселок #БерегПесочной #строительнаякомпания #качественноестроительство #БерегПесочной #коттеджныйпосёлок

Представляем вам современный двухэтажный загородный дом, воплощающий комфорт и функциональность для большой семьи. Дом общей площадью 172,60 м2, расположенный на участке 502 м2, предлагает 5 уютных спален, обеспечивая пространство для каждого члена семьи.

Строительство с использованием современных технологий:

  • Часторебристые сборные панели БЭНПАН Премиум: несущие конструкции наружных стен первого и второго этажей выполнены из часторебристых сборных панелей с встроенной теплоизоляцией, что обеспечивает высокую энергоэффективность и удобство в эксплуатации.
  • Плоская крыша из утепленных железобетонных панелей БЭНПАН: создает современный и стильный вид дома, а также обеспечивает надежную защиту от непогоды.

Внешний вид:

  • Гладкая штукатурка и панели с тиснением: создают стильный и современный фасад дома, который отлично впишется в любой ландшафт.
  • Большие окна в пол: на первом и втором этажах обеспечивают максимальное естественное освещение и создают ощущение простора.

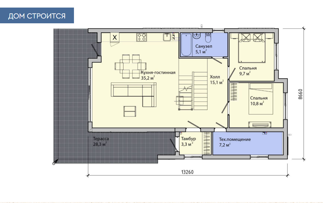
Планировка:

Первый этаж:

  • Тамбур: защищает от холода и шума.
  • Холл: просторный и светлый, обеспечивает удобный доступ ко всем помещениям первого этажа.
  • Спальни: две комфортные спальни на первом этаже идеально подходят для гостей или членов семьи, предпочитающих пространство на первом этаже.
  • Техническое помещение: предоставляет удобное место для хранения хозяйственных вещей.
  • Кухня-гостиная: просторный и светлый зал, созданный для комфортного проведения времени с семьей и друзьями.
  • Лестница: обеспечивает удобный подъем на второй этаж.
  • Санузел: отдельное комфортное пространство для удобства всей семьи.
  • Терраса: большая открытая терраса, идеально подходит для приятного проведения времени на свежем воздухе.

-2

Второй этаж:

  • Холл: просторный и светлый, обеспечивает удобный доступ ко всем помещениям второго этажа.
  • Спальни: три комфортные спальни предоставляют личное пространство для каждого члена семьи.
  • Санузлы: три отдельных санузла обеспечивают максимальное удобство для всех членов семьи.
  • Гардеробная: предоставляет удобное место для хранения одежды и других личных вещей.
  • Балкон: небольшой балкон, идеально подходит для приятных сидений на свежем воздухе.
-3

Преимущества:

  • Просторный и функциональный: дом предназначен для комфортного проживания большой семьи, обеспечивая каждому члену семьи личное пространство.
  • Современные технологии: использование технологии БЭНПАН Премиум обеспечивает высокую энергоэффективность и удобство в эксплуатации.
  • Стильный дизайн: дом отличается стильным и современным дизайном, который отлично впишется в любой ландшафт.
  • Большие окна в пол: обеспечивают максимальное естественное освещение и создают ощущение простора.
  • Функциональная планировка: дом располагает всеми необходимыми помещениями для комфортной жизни.

Лот №132 - это не просто дом, это небольшой оазис для вашей семьи, где каждый может найти свое уютное место. В нем вы найдете все необходимое для комфортной и счастливой жизни.

#коттеджныйпоселок #БерегПесочной #строительнаякомпания #качественноестроительство #БерегПесочной #коттеджныйпосёлок