Добавить в корзинуПозвонить
Найти в Дзене
Лесстрой Портал

Каркасный дом "SCANDI 90" от 2 514 000 рублей

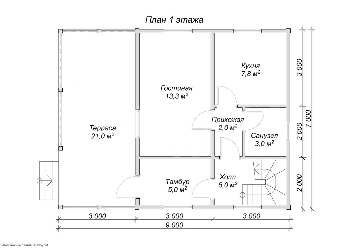
Двухэтажный дом под ключ в скандинавском стиле площадью застройки 9х7 м, общей площадью 90 м2 и стоимостью от 2 514 000 рублей. От нашего подрядчика Скандикъ Ссылка на проект: https://lesstroy.net/user/18927/project/82110/ SCANDI  90. Дом с мансардой в скандинавском стиле, площадью 90 кв.м Стены − каркас 150 мм. Наружная  отделка  имитацией бруса, внутри гипсокартон, утепление − 150 мм Кровля − бесшумные волнистые листы Ондулин Cмарт с гидробарьером Smart Lock Полы − влагостойкие шпунтованные плиты Quick Deck Professional, утепление 150 мм Перегородки − каркас 100 мм, отделка гипсокартон Потолок − отделка гипсокартон, утепление 150 мм Высота потолков − первый этаж 2,5 м; второй этаж  2,5 м Окна − ПВХ окна класса А, двухкамерные, Melke Lite`60 с стеклопакетом Climatherm и фурнитурой FUTURUSS Двери − входная металлическая, Гарда Муар, межкомнатные филенчатые Лестница − деревянная, клееная, с ограждением
Доступны 3 комплектации:
Сканди Зима
Сканди Про
Сканди Про Макс Строительство данног

Двухэтажный дом под ключ в скандинавском стиле площадью застройки 9х7 м, общей площадью 90 м2 и стоимостью от 2 514 000 рублей. От нашего подрядчика Скандикъ

Ссылка на проект: https://lesstroy.net/user/18927/project/82110/

Описание проекта

SCANDI  90. Дом с мансардой в скандинавском стиле, площадью 90 кв.м

Стены − каркас 150 мм. Наружная  отделка  имитацией бруса, внутри гипсокартон, утепление − 150 мм

Кровля − бесшумные волнистые листы Ондулин Cмарт с гидробарьером Smart Lock

Полы − влагостойкие шпунтованные плиты Quick Deck Professional, утепление 150 мм

Перегородки − каркас 100 мм, отделка гипсокартон

Потолок − отделка гипсокартон, утепление 150 мм

Высота потолков − первый этаж 2,5 м; второй этаж  2,5 м

Окна − ПВХ окна класса А, двухкамерные, Melke Lite`60 с стеклопакетом Climatherm и фурнитурой FUTURUSS

Двери − входная металлическая, Гарда Муар, межкомнатные филенчатые

Лестница − деревянная, клееная, с ограждением

Доступны 3 комплектации:
Сканди Зима
Сканди Про
Сканди Про Макс

Строительство данного дома доступно в ипотеку и с использованием материнского капитала.