Добавить в корзинуПозвонить
Найти в Дзене

БП-174/3: Современный комфорт для большой семьи

Бэнпан представляет индивидуальный проект жилого дома БП- 174/3 – просторное и стильное решение для комфортного проживания семьи из 5-6 человек. Проект БП- 174/3: Планировка: Первый этаж: Второй этаж: Преимущества проекта БП- 174/3: Бэнпан - ваш надежный партнер в строительстве индивидуального дома вашей мечты. Проект БП- 174/3 - отличное решение для комфортного проживания семьи, сочетающего в себе стиль, современность, функциональность и высокое качество. Свяжитесь с нами, чтобы получить детальную информацию о проекте и обсудить возможности его реализации. Бэнпан - ваш дом, ваша жизнь! #доммечты #строительство #Бэнпан #загородныйдом #архитектура #дизайн #индивидуальныйпроект #современныетехнологии #строительнаякомпания #качественноестроительство

Бэнпан представляет индивидуальный проект жилого дома БП- 174/3 – просторное и стильное решение для комфортного проживания семьи из 5-6 человек.

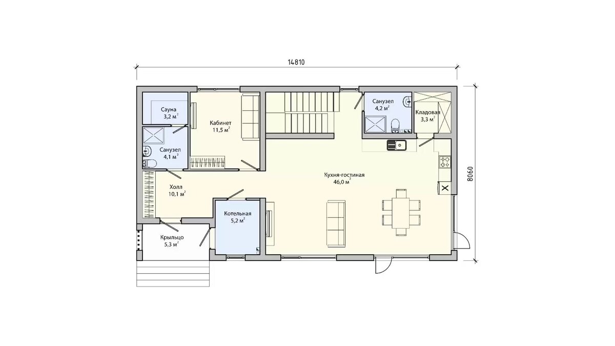
Проект БП- 174/3:

  • Общая площадь: 207,6 кв. м.
  • Стиль: Современный
  • Материал: Панели БЭНПАН Премиум

Планировка:

Первый этаж:

  • Холл: Встречайте гостей в просторном холле, который станет визитной карточкой вашего дома.
  • Кабинет: Отдельное рабочее пространство для концентрации и продуктивной работы.
  • Котельная: Обеспечивает комфортный микроклимат в доме.
  • Два санузла: Удобство и комфорт для всех членов семьи.
  • Сауна: Отдельная зона для релаксации и оздоровления.
  • Гостиная, совмещенная с кухней: Просторное помещение для отдыха и приготовления пищи, идеально подходящее для проведения семейных вечеров.
  • Кладовая: Дополнительное место для хранения вещей и бытовой техники.
  • Лестничный холл: Обеспечивает удобный доступ на второй этаж.
-2

Второй этаж:

  • Холл: Просторный холл, который станет отличным местом для сбора всей семьи.
  • Общий санузел: Обеспечивает комфорт и удобство для всех членов семьи.
  • Две спальни с выходом на балкон: Просторные и светлые спальни, где можно насладиться свежим воздухом и прекрасным видом.
  • Мастер спальня с собственным санузлом и выходом на отдельный балкон: Идеальное место для уединения и отдыха.
-3

Преимущества проекта БП- 174/3:

  • Современный дизайн: Стильный и функциональный проект, подчеркивающий индивидуальность вашего дома.
  • Панели БЭНПАН Премиум: Обеспечивают высокую прочность, долговечность и превосходные теплоизоляционные свойства.
  • Просторная планировка: Дом подходит для семей с детьми и гостей.
  • Функциональное зонирование: Каждый член семьи найдет свое уютное место.
  • Высокий уровень комфорта: Создано все для того, чтобы ваш дом стал настоящим оазисом спокойствия и уюта.

Бэнпан - ваш надежный партнер в строительстве индивидуального дома вашей мечты. Проект БП- 174/3 - отличное решение для комфортного проживания семьи, сочетающего в себе стиль, современность, функциональность и высокое качество.

Свяжитесь с нами, чтобы получить детальную информацию о проекте и обсудить возможности его реализации.

Бэнпан - ваш дом, ваша жизнь!

#доммечты #строительство #Бэнпан #загородныйдом #архитектура #дизайн #индивидуальныйпроект #современныетехнологии #строительнаякомпания #качественноестроительство