Добавить в корзинуПозвонить
Найти в Дзене

ПРОЕКТ ЮСУПОВ. Одноэтажный дом 190 м2

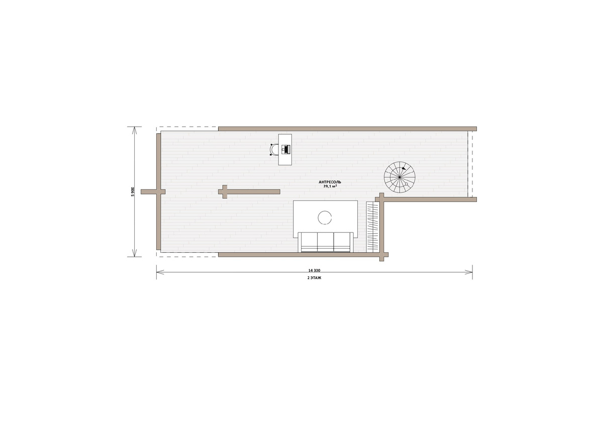
Расскажем о вместительном одноэтажном доме из клееного бруса, площадью 190 м2. Его пространство максимально продумано для комфортной загородной жизни. Внешний вид дома отличается стильным дизайном, сочетающим в себе уют деревянного дома с актуальными тенденциями. Рассмотрим планировку: НА ПЕРВОМ ЭТАЖЕ сосредоточено множество жилых и подсобных помещений для каждого члена семьи: две спальни, у каждой отдельный санузел, просторная кухня объединяется гостиная, где будет уютно собираться всей семьей, будуар, сауна и даже СПА, как отдельное пространство для релакса и ухода за собой. А тамбур и техническая комната создают условия для оптимальной организации быта. Высокая кровля центральной части дома позволяет получить дополнительное пространство НАВЕРХУ: это довольно вместительная антресоль площадью 29 квадратов – подойдет под мастерскую или рабочий кабинет. Еще одной особенностью этого дома является панорамное остекление, которое преображает внутреннее пространство дома, обеспечивая максим

Расскажем о вместительном одноэтажном доме из клееного бруса, площадью 190 м2. Его пространство максимально продумано для комфортной загородной жизни.

Внешний вид дома отличается стильным дизайном, сочетающим в себе уют деревянного дома с актуальными тенденциями.

Рассмотрим планировку:

НА ПЕРВОМ ЭТАЖЕ сосредоточено множество жилых и подсобных помещений для каждого члена семьи: две спальни, у каждой отдельный санузел, просторная кухня объединяется гостиная, где будет уютно собираться всей семьей, будуар, сауна и даже СПА, как отдельное пространство для релакса и ухода за собой. А тамбур и техническая комната создают условия для оптимальной организации быта.

Высокая кровля центральной части дома позволяет получить дополнительное пространство НАВЕРХУ: это довольно вместительная антресоль площадью 29 квадратов – подойдет под мастерскую или рабочий кабинет.

Еще одной особенностью этого дома является панорамное остекление, которое преображает внутреннее пространство дома, обеспечивая максимальную освещенность.

Такой дом мы готовы построить за 5 месяцев, включая изготовление домокомплекта из клееного бруса.

Понравился дом? Заполните форму по ссылке, мы свяжемся с Вами и вышлем презентацию проекта.