Добавить в корзинуПозвонить
Найти в Дзене
ОВиК project

Вентиляция машинных отделений лифтов. Оптимизация

Ранее здесь писали о решениях по вентиляции и отоплению машинных отделений лифтов. Напомним, решение по вентиляции выглядело так: Основные сложности, с которыми столкнулись на этапах монтажа, ПНР, эксплуатации: В связи с указанными причинами желательно исключить размещение вентиляционного оборудования в машинном отделении. На данный момент пришли к такому решению: В помещении машинного отделения лифтов предусматривается система вытяжной вентиляция для ассимиляции тепловыделений от электродвигателей лифтов. Система работает периодически по сигналу датчика температуры в помещении. Вентилятор (см. рис. 3) размещается на кровле машинного отделения (или стене). Приток через клапан с электроприводом. Решение представлено на рис. 4 При желании на притоке можно предусмотреть фильтр (см. рис. 5). 28.01.2025 Благодарим за внимание! Подписывайтесь на нас в Telegram! Чат Telegram-канала доступен по ссылке. Отправить пожелания, замечания, Ваши технические решения, справочную литературу и другую по

Ранее здесь писали о решениях по вентиляции и отоплению машинных отделений лифтов. Напомним, решение по вентиляции выглядело так:

Рис. 1 Вентиляция машинного отделения лифтов
Рис. 1 Вентиляция машинного отделения лифтов

Основные сложности, с которыми столкнулись на этапах монтажа, ПНР, эксплуатации:

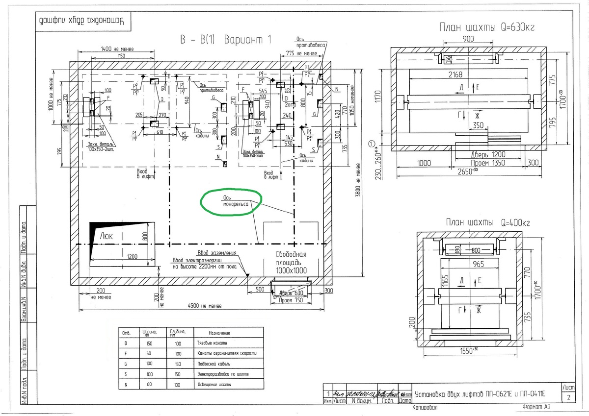
  1. Размещение вентилятора в помещении машинного отделения осложнено небольшой высотой помещения, присутствием крупных узлов лифтового оборудования и наличием системы монорельса (для перемещения тяжёлого оборудования при монтаже, ремонте или плановом обслуживании) (см. рис. 2);
  2. Ограниченный доступ к машинному отделению. После монтажа лифтового оборудования доступ к машинному отделению ограничивается. В результате осложняется монтаж, ПНР и эксплуатационное обслуживание.
Рис. 2 Система монорельса в машинном отделении лифта
Рис. 2 Система монорельса в машинном отделении лифта

В связи с указанными причинами желательно исключить размещение вентиляционного оборудования в машинном отделении.

На данный момент пришли к такому решению:

В помещении машинного отделения лифтов предусматривается система вытяжной вентиляция для ассимиляции тепловыделений от электродвигателей лифтов. Система работает периодически по сигналу датчика температуры в помещении. Вентилятор (см. рис. 3) размещается на кровле машинного отделения (или стене). Приток через клапан с электроприводом. Решение представлено на рис. 4

Рис. 3 Крышный вытяжной вентилятор
Рис. 3 Крышный вытяжной вентилятор
Рис. 4 Система вентиляции машинного отделения без размещения вентиляционного оборудования внутри помещения
Рис. 4 Система вентиляции машинного отделения без размещения вентиляционного оборудования внутри помещения

При желании на притоке можно предусмотреть фильтр (см. рис. 5).

Рис. 5 Система вентиляции машинного отделения без размещения вентиляционного оборудования внутри помещения с фильтром на притоке
Рис. 5 Система вентиляции машинного отделения без размещения вентиляционного оборудования внутри помещения с фильтром на притоке

28.01.2025

Благодарим за внимание!

Подписывайтесь на нас в Telegram!

Чат Telegram-канала доступен по ссылке.

QR-код для перехода в Telegram-канал
QR-код для перехода в Telegram-канал

Отправить пожелания, замечания, Ваши технические решения, справочную литературу и другую полезную информацию Вы можете на электронный адрес: ovik-projekt@yandex.ru

Друзья, мы не просим средства на поддержку нашего проекта (хотя будем им рады, чего таить). Но если Вы действительно хотите выразить нам благодарность:

Кошелек ЮMoney: 4100116641749592

Инструкция, как пополнить кошелек Юмани со Сбербанка, здесь.