Найти в Дзене

Строительство дома. Часть 1. Выбор планировки

Почему 1 этаж. Сколько нужно унитазов. Почему кухня отделена от гостиной. Что сделал бы иначе. Этой статьёй я начну серию статьей о моём опыте строительства дома. Все друзья-знакомые, которые хотели, уже построились, поэтому делюсь опытом с "неограниченным кругом лиц". Зачем вообще дом? Идея укоренилась во время пандемии CoViD 2019, когда формально было запрещено появляться в общественных местах без жизненно необходимых целей. При этом имелся простаивающий участок не на окраине города (не села, не СНТ/ДНТ, не п. г. т., а именно города) со всеми коммуникациями. В 5 минутах ходьбы сетевой супермаркет (позже построили 2-й). В пешей доступности школа, не сильно дальше детский сад и поликлиника. В общем, сравнимо со спальным районом. Общественный транспорт, правда, проходящий и влезть в него в часы пик гарантии нет. Начали рисовать планировку дома. Цель - с комфортом разместить сначала 3 (я, супруга и ребёнок), а перспективе - до 5 человек (+дети и/или пожилые родители). Само собой нужны ку

Почему 1 этаж. Сколько нужно унитазов. Почему кухня отделена от гостиной. Что сделал бы иначе.

Этой статьёй я начну серию статьей о моём опыте строительства дома. Все друзья-знакомые, которые хотели, уже построились, поэтому делюсь опытом с "неограниченным кругом лиц".

Зачем вообще дом?

Идея укоренилась во время пандемии CoViD 2019, когда формально было запрещено появляться в общественных местах без жизненно необходимых целей. При этом имелся простаивающий участок не на окраине города (не села, не СНТ/ДНТ, не п. г. т., а именно города) со всеми коммуникациями. В 5 минутах ходьбы сетевой супермаркет (позже построили 2-й). В пешей доступности школа, не сильно дальше детский сад и поликлиника. В общем, сравнимо со спальным районом. Общественный транспорт, правда, проходящий и влезть в него в часы пик гарантии нет.

Начали рисовать планировку дома. Цель - с комфортом разместить сначала 3 (я, супруга и ребёнок), а перспективе - до 5 человек (+дети и/или пожилые родители).

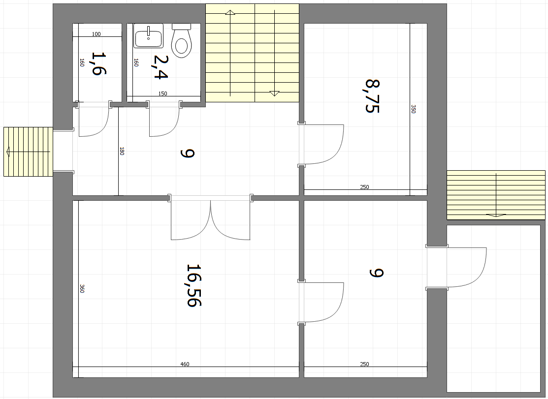
Само собой нужны кухня, 2 или 3 спальни, гостиная, которая в перспективе может быть перепрофилирована в ещё одну спальню, и не объединённая по этой причине с кухней. Из соображений эстетики (шумящий газовый котёл, электрический распределительный щит, коллекторы отопления и водоснабжения) также нужно отдельное техническое помещение, оно же "котельная". И для использования индивидуального жилого дома по максимуму - веранда.

Санузы. Как минимум нужно 2 помещения с унитазами. Также хотелось ванную для купания маленьких детей и стирки / мойки чего-то крупногабаритного. И в расчёте на будущую старость - душевая, в которую можно просто зайти и выйти из неё без лишней эквилибристики. Поэтому один унитаз целесообразно было поместить в ванную, а 2-й - душевую.

В целях рационального использования участка сначала прорабатывались 2-этажные планировки. Кухня, гостиная, одна из спален и один санузел должны остаться на 1-м этаже. Для второго этажа остаются оставшиеся спальни и 2-й санузел. Площадь 1-го этажа получалась немногим менее площади одноэтажного варианта. Поэтому экономия (помимо площади участка) получалась только на кровле. "Бетоноёмкость" фундамента получалась не меньше, из-за более тяжёлых несущих стен (1,5 кирпича вместо 1), дополнительного перекрытия и двойной массы "полезной нагрузки" (мебель и пр.). Также нужна лестница (около 500'000 руб. по ценам 2020 года). В итоге получался более неудобный дом (лестница, шум на 1-м этаже при ходьбе по 2-му) по большей цене.=

Первым делом были изучены планировки с online-магазинов проектов домов. Также была возможность посещать неогороженные соседние стройки коттеджей. Как потом оказалось, сначала планировка, а потом и фасад повторили один из коттеджей за исключением пары вспомогательных помещений. Но мы уверены, что это получилось случайно :)

На соседнем участке тоже затевалась стройка, и сосед запросил взаимное согласие на строительство в 1 метре от границы участка без окон и дверей по этой стороне по требованиям пожарной безопасности. С высоты имеющегося опыта я бы на это сейчас не согласился, т. к. я дом построил, а сосед нет. Если он продаст свой участок (как это уже сделал другой сосед), то новый хозяин может потребовать сноса моего дома из-за нарушения градостроительных норм.

На той стороне, где нет окон, логично было разместить спальни. Тогда на 2-ую сторону приходятся гостиная и кухня. Котельную было решено разместить за кухней, чтобы максимально отдалить её от жилых комнат. Также это минимизирует длину газовых труб, которые никуда не спрячешь. Вход/въезд на участок расположен на южной стороне участка, поэтому в жертву летнему Солнцу была принесена сравнительно редко посещаемая гостиная. Это позволило запланировать в ней 2 окна - одно обращено ко входу на участок, второе - в сторону соседнего участка, до которого было оставлено 3 метра.

Была идея из той спальни, окно которой обращено ко входу на участок, сделать т. н. "мастер-спальню". Полагающуюся мастер-спальне гардеробную получилось запланировать в пространстве между спальнями. Заодно гардеробная будет препятствовать проникновению шума из одной спальни в другую. А вот отдавать один из санузлов в эксклюзивное пользование обитателей этой спальни не решились.

В варианте 3 спален северные спальни получались очень маленьким, поэтому поэтому на месте смежной с кухней спальни была запланирована постирочная с входом из кухни, а также увеличены площади оставшейся спальни и ванной, расположенной между спальней и кухней.

Оба санузла оказались отделены от спален кирпичными перегородками минимальной ширины. Поэтому на этапе отделки пришлось организовывать дополнительную звукоизоляцию.

На этапе планировки участок был занят строениями, через одно из которых шла газовая труба на соседний участок. И до переноса этой трубы этой строение сносить было очень рискованно. Из-за этого было крайне затруднительно оценить перепады высот на участке. По этой причине было неправильно выбрано расположение дома на участке, т. к. не было учтено необходимое кол-во ступеней на входе в дом. Последняя ступень оказалась на расстоянии менее метра от калитки. Если бы это было выявлено на этапе планировки, то дом был был отодвинут как минимум на полметра вглубь участка.

Для гаража места сбоку от дома не оставалось совсем, но и 3 метров, оставшихся для навеса для машины, по факту оказалось мало - у машины можно открыть только 3 из 4 дверей. Сам навес тоже не был никак учтён, его опоры пришлось размещать между готовым окнами и вводным электрощитом. При этом навес нельзя располагать ближе одного метра от границы участка без согласия владельца соседнего участка.

Зная всё это, я разместил бы дом на расстоянии минимум 4 метров от границы участка, чтобы поместились и крыльцо, и машина с открытыми дверями.