Найти в Дзене
Лесстрой Портал

Дом из профилированного бруса по проекту № 331 от 3 117 880 рублей

Одноэтажный дом общей площадью 161,12 м2 и стоимостью от 3 117 880 рублей. От нашего подрядчика ПСК ДревПроектСтрой Ссылка на проект: https://lesstroy.net/user/8559/project/81638/
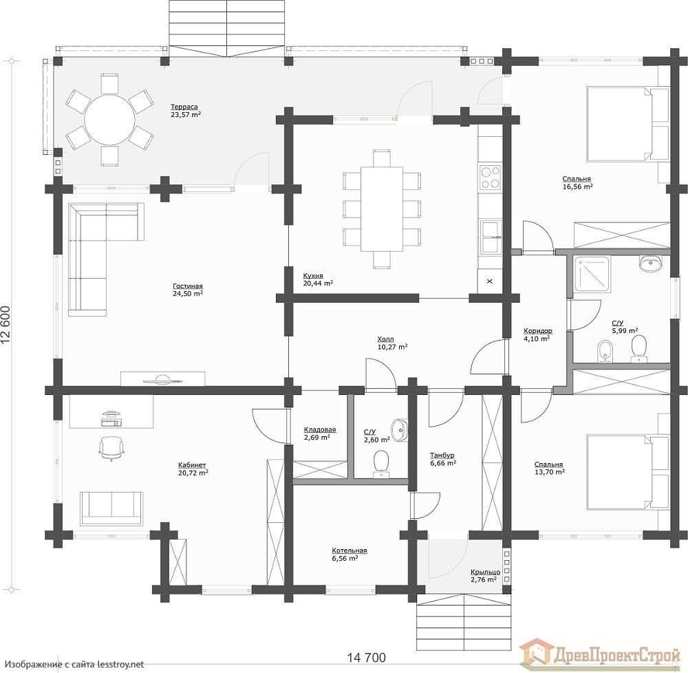
Добро пожаловать в чудесный мир деревянных домов от компании ООО ПСК «ДревПроектСтрой», («Деревянные дома России»). Проект дома № 331.   Артикул: DP-148 Стоимость проекта в альбомах АР и КД без изменений в планах этажей составляет: 25 700,00 рублей, пригодных для изготовления стенового комплекта (бесплатно при заказе стенового комплекта). Дом из массива бруса профилированного ЕВ 140х145h мм, 161,12м². Координатные размеры 14700х12600. 1 этаж 161,12м². Терраса 23,57м², Гостиная 24,50м², Кабинет 20,72м², Котельная 6,56м², Крыльцо 2,76м², Тамбур 6,66м, С/у 2,60м², Кладовая 2,69м², Холл 10,27м², Кухня 20,44м², Спальня 16,56м², Коридор 4,10м², С/у 5,99м², Спальня 13,70м². Фундамент: обсуждается на этапе проектирования. Заводское изготовление: Фундамент, кровля с чистовым кровельным покрытием, внутренняя отделка,

Одноэтажный дом общей площадью 161,12 м2 и стоимостью от 3 117 880 рублей. От нашего подрядчика ПСК ДревПроектСтрой

Ссылка на проект: https://lesstroy.net/user/8559/project/81638/

-2

Добро пожаловать в чудесный мир деревянных домов от компании ООО ПСК «ДревПроектСтрой», («Деревянные дома России»).

Проект дома № 331.   Артикул: DP-148

Стоимость проекта в альбомах АР и КД без изменений в планах этажей составляет: 25 700,00 рублей, пригодных для изготовления стенового комплекта (бесплатно при заказе стенового комплекта).

  • Продажа стеновых комплектов (конструктор) Комплект «Сделай сам» (Do it yourself) является набором изделий, полностью готовых к дальнейшей сборке. Каждая деталь домокомплекта пронумерована, что помогает мастерам легко ориентироваться в процессе монтажа строения. Стеновой комплект дополняется подробным рабочим проектом, где приведены этапы сборки деревянного дома или сооружения, указана раскладка деталей. Продажа стеновых комплектов во все регионы страны.
  • Стать владельцем собственного деревянного жилья – это не только престижно, но и актуально.Профилированный брус является одним из самых востребованных строительных материалов.С его помощью можно соорудить надежный и долговечный объект, который будет отличаться презентабельным внешним видом.Строительство домов из профилированного бруса осуществляется достаточно быстро (приблизительно 2-3 месяца).Данный материал позволяет в кратчайшие сроки обзавестись собственным жильем.

Дом из массива бруса профилированного ЕВ 140х145h мм, 161,12м². Координатные размеры 14700х12600.

1 этаж 161,12м². Терраса 23,57м², Гостиная 24,50м², Кабинет 20,72м², Котельная 6,56м², Крыльцо 2,76м², Тамбур 6,66м, С/у 2,60м², Кладовая 2,69м², Холл 10,27м², Кухня 20,44м², Спальня 16,56м², Коридор 4,10м², С/у 5,99м², Спальня 13,70м².

  • Проекты деревянных бань и домов, производимые компанией ООО ПСК «Древпроектстрой» могут быть исполнены из следующих видов древесины:
    • Оцилиндрованное бревно естественной и камерной сушки Ø 180-400 мм, длинна до 9000мм.
    • Эркер с косыми чашами (30,45,60 градусов)
    • Сверловка под шканты и электропроводку
    • Фрезеровка паза под обсаду
    • Фрезеровка (лыски) под наличник
    • Ручная рубка сосна, кедр.
    • Профилированный брус естественной и камерной сушки.
    • Клееный брус.
    • Карельская сухостойная сосна «Кело».
    Проектируем в программах К3Коттедж.

Фундамент: обсуждается на этапе проектирования.

Заводское изготовление:

  1. Нарезка чашек по проекту, доставляется полностью готовый стеновой комплект конструктор.
  2. Транспортировочная обработка торцов.
  3. Заводская упаковка в непрозрачную пленку (для клееного бруса), для ОЦБ стяжка пэт.
  4. Сортировка и раскладка бруса по венцам для сборки комплекта.
  5. Доставка сруба с помощью специальной спецтехники евро фура для участков со свободным проездом.
  6. Разгрузка сруба на месте застройки. Раскатывание и подготовка бревен для сборки сруба.
  7. Сборка сруба опытной и квалифицированной бригадой.
  • Стоимость изготовления стенового комплекта из массива бруса ЕВ 140х145h мм: 3 117 880,00 руб.

Фундамент, кровля с чистовым кровельным покрытием, внутренняя отделка, парная, и душевая, остекление, инженерная часть рассчитываются отдельно.
Мы строим дома из экологически чистых материалов Вологодской и Архангельской областей созданных самой природой по всей стране, и за ее пределами.