Добавить в корзинуПозвонить
Найти в Дзене

Что должно входить в профессиональный дизайн-проект? Состав дизайн-проекта

Задумываясь о ремонте или создании нового интерьера, многие сталкиваются с вопросом: с чего же начать? Ответ прост – с дизайн-проекта. Это не просто красивый эскиз, а целый комплекс документов, определяющих внешний вид, функциональность и технические параметры вашего будущего пространства. В этой статье мы подробно разберем, из чего состоит профессиональный дизайн-проект, чтобы вы понимали, какие этапы стоят за созданием идеального интерьера. После нашей встречи с заказчиком на объекте мы вместе заполняем техническое задание на дизайн-проект. В ТЗ учитываются индивидуальные потребности, предпочтения и образ жизни будущих жильцов, а также технические и инженерные особенности помещений. При составлении ТЗ дизайнер стремится понять, каким Вы представляете свой идеальный интерьер, какой стиль вы предпочитаете, какие цветовые сочетания, материалы и дизайнерские решения вам нравятся. Во избежание недопонимания мы используем референсы. В ТЗ также указываются функциональные и технические требо
Оглавление

Задумываясь о ремонте или создании нового интерьера, многие сталкиваются с вопросом: с чего же начать? Ответ прост – с дизайн-проекта. Это не просто красивый эскиз, а целый комплекс документов, определяющих внешний вид, функциональность и технические параметры вашего будущего пространства. В этой статье мы подробно разберем, из чего состоит профессиональный дизайн-проект, чтобы вы понимали, какие этапы стоят за созданием идеального интерьера.

ТЕХНИЧЕСКОЕ ЗАДАНИЕ (ТЗ)

После нашей встречи с заказчиком на объекте мы вместе заполняем техническое задание на дизайн-проект.

В ТЗ учитываются индивидуальные потребности, предпочтения и образ жизни будущих жильцов, а также технические и инженерные особенности помещений.

При составлении ТЗ дизайнер стремится понять, каким Вы представляете свой идеальный интерьер, какой стиль вы предпочитаете, какие цветовые сочетания, материалы и дизайнерские решения вам нравятся. Во избежание недопонимания мы используем референсы.

В ТЗ также указываются функциональные и технические требования к будущему интерьеру, а также информация о бюджете на ремонт.

Важно подойти к заполнению ТЗ ответственно, так как именно оно определяет, каким будет Ваш финальный результат.

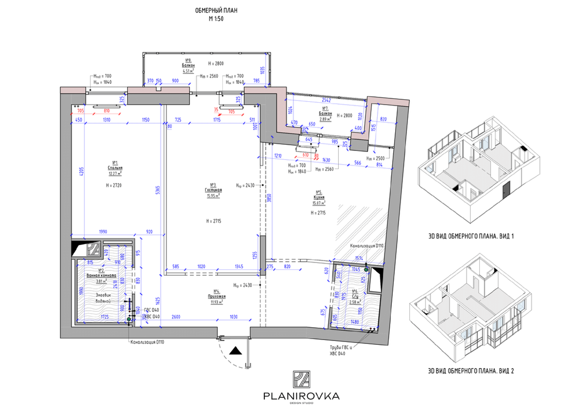
ОБМЕРНЫЙ ПЛАН

При встрече на объекте снимаются точные размеры для создания обмерного плана.

Обмерный план - подробный чертеж объекта с указанием размеров и параметров помещений, расположением дверей и окон, несущих стен и перегородок. Также на обмерный план наносится информация о существующих инженерных системах: расположение радиаторов отопления, розеток и выключателей, выводов ГВС и ХВС, и т.д. Чтобы не упустить ни одной детали, при замере обязательно проводится фотофиксация.

На основании полученного обмерного плана ведется разработка дизайн-проекта.

ПЛАНИРОВОЧНОЕ РЕШЕНИЕ

Планировочное решение - гармоничное распределение пространства, которое оптимизирует функциональность и эстетическую привлекательность помещений. Оно включает в себя зонирование пространства с расстановкой мебели, а также проработку потоков движения.

С учетом всех ваших требований и особенностей объекта, мы разрабатываем несколько вариантов планировочных решений. Мы подскажем варианты по увеличению полезной площади, поможем рационально организовать зоны, необходимые для комфортной жизни, и сориентируем вас о возможности перепланировки.

КОНЦЕПТУАЛЬНОЕ РЕШЕНИЕ

Концептуальное решение - основная идея интерьера, определяющая стиль, цветовое решение и общую атмосферу пространства. Концепция включает в себя выбор цветовой гаммы, материалов, мебели, освещения и основных декоративных элементов. Она служит основой для всех дизайнерских решений и помогает создать комфортное и гармоничное пространство, соответствующее вашим потребностям и предпочтениям.

3D ВИЗУАЛИЗАЦИЯ

После согласования планировочного решения и концепции интерьера мы приступаем к созданию визуализации.

Визуализация интерьера - создание реалистичных изображений будущего интерьера при помощи специальных программ. Например, мы используем связку 3Ds Max + Corona Render.

Визуализация помогает максимально точно показать, как будет выглядеть интерьер после реализации. Она помогает экспериментировать с материалами и цветами, легко вносить изменения в проект, что в будущем поможет избежать дорогостоящих переделок в реальности.

В общем, визуализация интерьера - это мощный инструмент, помогающий сэкономить время, деньги и нервы, а главное получить именно тот интерьер, о котором вы мечтали!

А еще мы делаем 3д туры по вашему будущему интерьеру! Посмотреть пример панорам можно ТУТ

ЧЕРТЕЖИ

Основой для успешной реализации дизайн-проекта являются чертежи, входящие в его состав. Благодаря комплекту чертежей задуманный интерьер переходит в реальность с максимальной точностью и качеством.

Основные чертежи, входящие в дизайн-проект:

  • Планы демонтажа и монтажа. Показывают, какие элементы требуется демонтировать (снести) и какие новые конструкции требуется возвести.
  • План заполнения дверных проемов. Описывает, как будут заполнены дверные проемы, в какую сторону будет открываться дверь, какие габариты дверного полотна и дверного проема.
  • План расстановки сантехоборудования. Указывает расположение сантехники с привязками.
  • Планы электрики: розетки, выключатели, освещение. Показывают расположение электроточек, выключателей и осветительных приборов с привязками на плане, подписью с привязкой высоты и указанием типа механизма.
  • План потолков. Описывает тип и конструкцию потолка (подвесной, натяжной и др.). Также показывает привязки декоративных элементов на потолке при их наличии.
  • План теплого пола. Показывает зону укладки теплого пола с привязками и место размещения терморегулятора.
  • План напольных покрытий. Указывает типы используемых покрытий, раскладку и направление укладки.
  • План чистовой отделки стен. Описывает материалы и способы отделки стен (обои, плитка, покраска, штукатурка и т.д.).
  • Развертки стен помещений. Показывают стены “в развернутом виде”. На развертке указаны отделочные материалы стен, расположение электрики с привязками и других элементов.

В совокупности эти чертежи дают полное представление о планируемых работах.

СПЕЦИФИКАЦИЯ

Спецификация материалов (отрывок)
Спецификация материалов (отрывок)

Неотъемлемая часть полного дизайн-проекта - спецификация отделочных материалов и предметов интерьера. В спецификации указывается ссылка на предмет или материал с требуемым количеством и стоимостью. В рамках проекта услуга поиска лучшей цены не оказывается.

В следующей статье можно узнать, как выполняется авторское сопровождение и чем оно отличается от строительного контроля.