Найти в Дзене
Мастерская дизайнера

Увеличение площади прихожей за счет переноса гостевой ванной комнаты и прочие варианты перепланировки в трехкомнатной квартире

В данном кратком отчете я представляю планы к вариантам планировки квартиры, которые были детально рассмотрены в этом видео: Первый проект планировки в значительной степени сохраняет концепцию застройщика, однако включает небольшие коррективы. Гардеробная поделена на два отдельных пространства: одно расположено возле спальни, а другое – у входа. По сути, они представляют собой встроенные шкафы. Санузел при главной спальне совмещён с одной из частей гардеробной, где теперь оборудована прачечная. Кроме того, изменили расстановку мебели в зоне кухни-гостиной, чтобы максимально эффективно использовать естественный свет от больших окон и французского остекления. Вторая версия перепланировки предполагает более значительные изменения перегородок, включая те, что находятся у входа в кухню-гостиную. Кухонное пространство организовано по принципу двух параллельных линий: справа в нише установлен холодильник. Спальню слегка увеличили за счет коридора, благодаря чему также удалось обустроить вмест

В данном кратком отчете я представляю планы к вариантам планировки квартиры, которые были детально рассмотрены в этом видео:

Первый проект планировки в значительной степени сохраняет концепцию застройщика, однако включает небольшие коррективы. Гардеробная поделена на два отдельных пространства: одно расположено возле спальни, а другое – у входа. По сути, они представляют собой встроенные шкафы. Санузел при главной спальне совмещён с одной из частей гардеробной, где теперь оборудована прачечная. Кроме того, изменили расстановку мебели в зоне кухни-гостиной, чтобы максимально эффективно использовать естественный свет от больших окон и французского остекления.

Вариант планировки 1
Вариант планировки 1

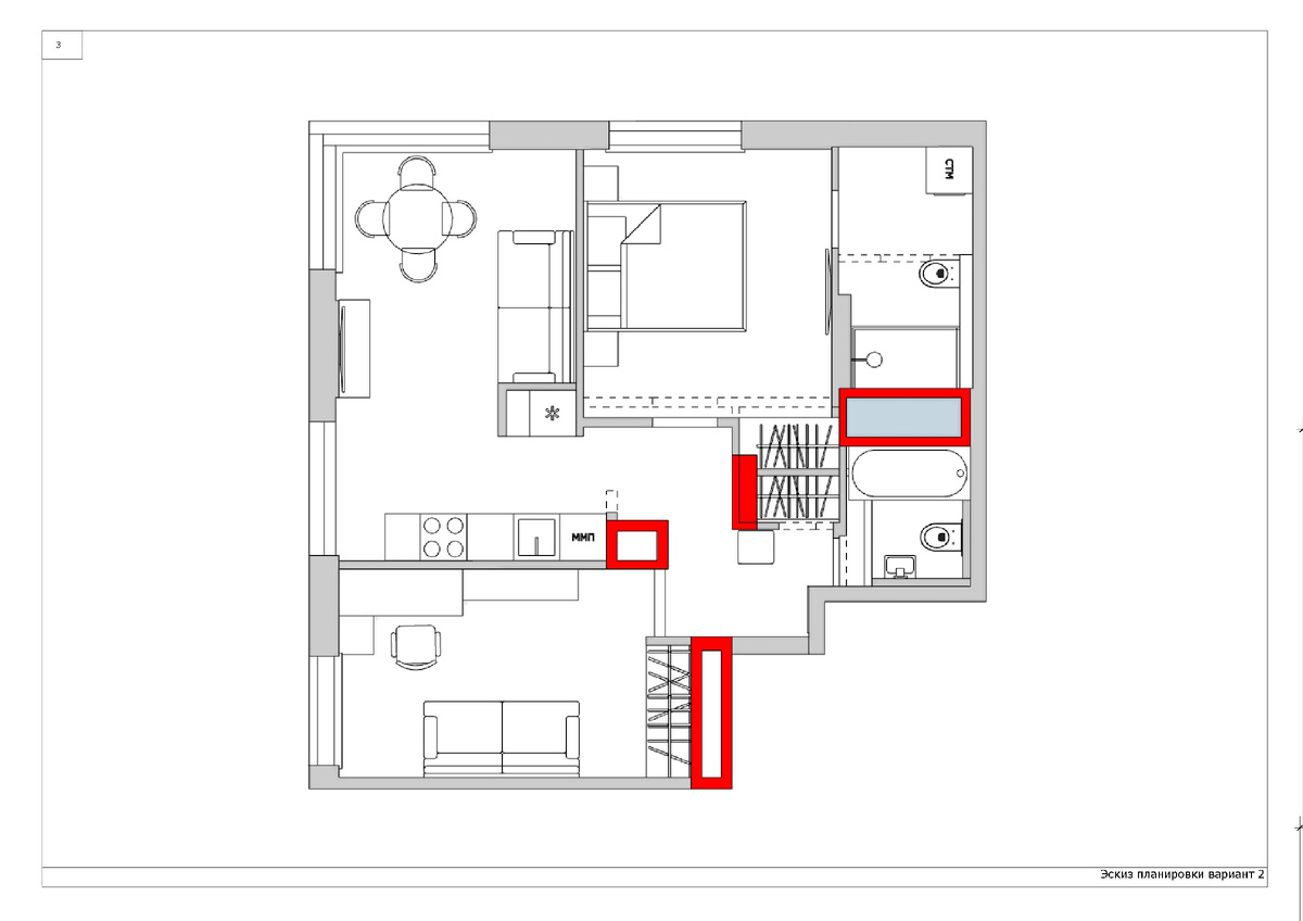
Вторая версия перепланировки предполагает более значительные изменения перегородок, включая те, что находятся у входа в кухню-гостиную. Кухонное пространство организовано по принципу двух параллельных линий: справа в нише установлен холодильник. Спальню слегка увеличили за счет коридора, благодаря чему также удалось обустроить вместительный шкаф глубиной, комфортной для использования, со стороны прихожей.

Вариант планировки 2
Вариант планировки 2

Третий вариант предлагает самое любопытное решение – переместить гостевую ванную комнату на место бывшего гардероба, уменьшив её площадь до разумного размера относительно общей площади квартиры. При этом прихожую можно расширить за счёт освободившегося пространства, чтобы разместить там встроенный шкаф, открытую зону с банкеткой и крючками для верхней одежды гостей, а также большое зеркало. Таким образом, прихожая станет более удобной и функциональной, что положительно скажется на всей планировке квартиры.

Вариант планировки 3
Вариант планировки 3

Исходная планировка с размерами:

Начальная планировка квартиры
Начальная планировка квартиры

Это первые три предложения, которые не окончательны, потому что их нужно обсудить и согласовать с заказчиком, и продолжить работу уже на основании этого обсуждения.

Ознакомиться с моими услугами по дизайну интерьеров можно на моей страничке на Houzz.