Добавить в корзинуПозвонить
Найти в Дзене

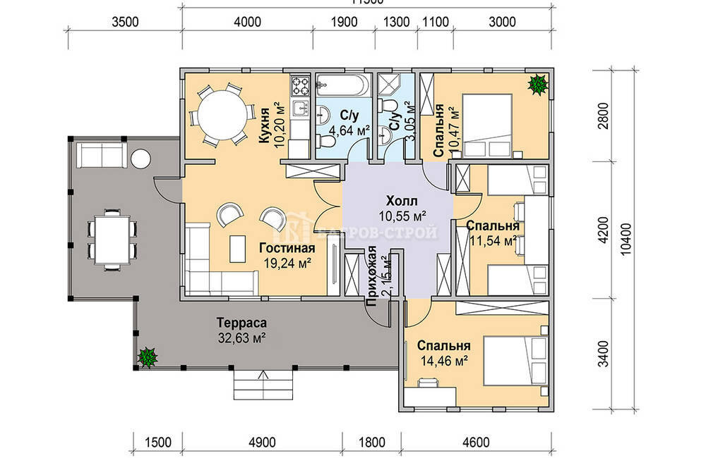
Большой каркасный дом 10,5х11. Фотоотчет, планировка, цена от 1 321 100 ₽

Август — большой одноэтажный дом, размером 10,5х11м с большой террасой 32,63 м². Планировкой предусмотрены просторные гостиная и кухня,3 спальни, 2 санузла, помещения под прихожую, а также предусмотрен просторный холл. Большой и элегантный дом для большой семьи общей площадью 132 м². • Площадь: 132 м²
• Размер: 10,5х11 м
• Этажность: 1
• Оплата: Без предоплаты
• Доставка: Индивидуально
• Сроки стр-ва: 12-14 дней 1. Без отделки: • Каркас 100 мм - 1 321 100 ₽
• Каркас 150 мм - 1 425 800 ₽
• Каркас 200 мм - 1 690 600 ₽ 2. С отделкой: • Каркас 100 мм - 3 199 200 ₽
• Каркас 150 мм - 3 394 300 ₽
• Каркас 200 мм - 3 602 500 ₽ Посмотреть комплектацию на сайте:
https://bagrovstroy.ru/karkasnye-doma/kd-avgust В комплектацию «с отделкой» входит все, что перечислено в комплектации «без отделки» + то, что перечислено на слайдах в карусели.
____________________
В каждую комплектацию УЖЕ ВКЛЮЧЕНА стоимость материалов, работа бригады, фотоотчет и мой личный контроль за строительством) Доставка рассчи
Оглавление

Август — большой одноэтажный дом, размером 10,5х11м с большой террасой 32,63 м². Планировкой предусмотрены просторные гостиная и кухня,3 спальни, 2 санузла, помещения под прихожую, а также предусмотрен просторный холл. Большой и элегантный дом для большой семьи общей площадью 132 м².

• Площадь: 132 м²
• Размер: 10,5х11 м
• Этажность: 1
• Оплата: Без предоплаты
• Доставка: Индивидуально
• Сроки стр-ва: 12-14 дней

Планировка:

-2

👉 СТОИМОСТЬ (цены актуальны на момент публикации):

1. Без отделки:

• Каркас 100 мм - 1 321 100 ₽
• Каркас 150 мм - 1 425 800 ₽
• Каркас 200 мм - 1 690 600 ₽

2. С отделкой:

• Каркас 100 мм - 3 199 200 ₽
• Каркас 150 мм - 3 394 300 ₽
• Каркас 200 мм - 3 602 500 ₽

Посмотреть комплектацию на сайте:
https://bagrovstroy.ru/karkasnye-doma/kd-avgust

👉🏻Что входит в каждую комплектацию?

В комплектацию «с отделкой» входит все, что перечислено в комплектации «без отделки» + то, что перечислено на слайдах в карусели.
____________________

В каждую комплектацию УЖЕ ВКЛЮЧЕНА стоимость материалов, работа бригады, фотоотчет и мой личный контроль за строительством) Доставка рассчитывается так же отдельно.

В карусели вы увидите что конкретно входит в каждый вариант :)

По вашему пожеланию, можно учесть доп.опции, убрать или заменить: фундамент, коммуникации, заменить окна на пластиковые, изменить внешнюю отделку дома и другие.

Понравился дом? Свяжитесь с нами, мы сделаем для вас расчет стоимости или подберем подходящий проект под ваши пожелания.

📍 Наши контакты:

• Сайт: bagrovstroy.ru
• Группа VK:
vk.com/bagrovstroy
• Telegram-канал:
t.me/bagrovstroy