Добавить в корзинуПозвонить
Найти в Дзене
Строим на Позитиве

Проект канализации частного дома. Сколько закладывать денег на канализацию.

Готовлю проект внутренней канализации, подбираю материал, делаю смету. На этапе устройства фундамента заложил вывод труб канализации из оранжевой трубы 110 диаметра. Вертикальную часть закрепил хомутами в бетон ленточного фундамента. Горизонтальную часть, проходящую через гильзу в фундаменте - запенил. Внутреннюю разводку я решил делать в полах, толщина пирога которых у меня 23 сантиметра. Этой толщины достаточно чтобы в моем случае проложить канализационные трубы с необходимом уклоном. Канализационный вывод и стояк расположен в помещении топочной. От него, с помощью двухплоскостной крестовины пойдут две трассы. Одна из трубы диаметром 50 мм, к мойке и посудомоечной машине на кухне. Вторая трасса из трубы диаметром 110мм к унитазу. Также от нее будут ответвления к душевой, раковине, стиральной машине и технический слив в топочной. Рекомендуемый уклон канализационных труб следующий: Прежде чем чертить проект, на сайтах продающих инженерную сантехнику посмотрел варианты канализационных
Оглавление

Готовлю проект внутренней канализации, подбираю материал, делаю смету.

  • Основные параметры инженерных сетей и канализации в том числе, были продуманы еще при проектирования дома.

На этапе устройства фундамента заложил вывод труб канализации из оранжевой трубы 110 диаметра. Вертикальную часть закрепил хомутами в бетон ленточного фундамента. Горизонтальную часть, проходящую через гильзу в фундаменте - запенил.

вывод канализации
вывод канализации

Внутреннюю разводку я решил делать в полах, толщина пирога которых у меня 23 сантиметра.

  • ЭППС 100мм, ППС кнауф ТП 44мм, стяжка 70мм и чистовое покрытие.

Этой толщины достаточно чтобы в моем случае проложить канализационные трубы с необходимом уклоном.

Канализационный вывод и стояк расположен в помещении топочной. От него, с помощью двухплоскостной крестовины пойдут две трассы. Одна из трубы диаметром 50 мм, к мойке и посудомоечной машине на кухне. Вторая трасса из трубы диаметром 110мм к унитазу. Также от нее будут ответвления к душевой, раковине, стиральной машине и технический слив в топочной.

Рекомендуемый уклон канализационных труб следующий:

  • Диаметром 110мм - 2 сантиметра на метр.
  • Диаметром 50мм - 3 сантиметра на метр.

Проект внутренней канализации

Прежде чем чертить проект, на сайтах продающих инженерную сантехнику посмотрел варианты канализационных фитингов.

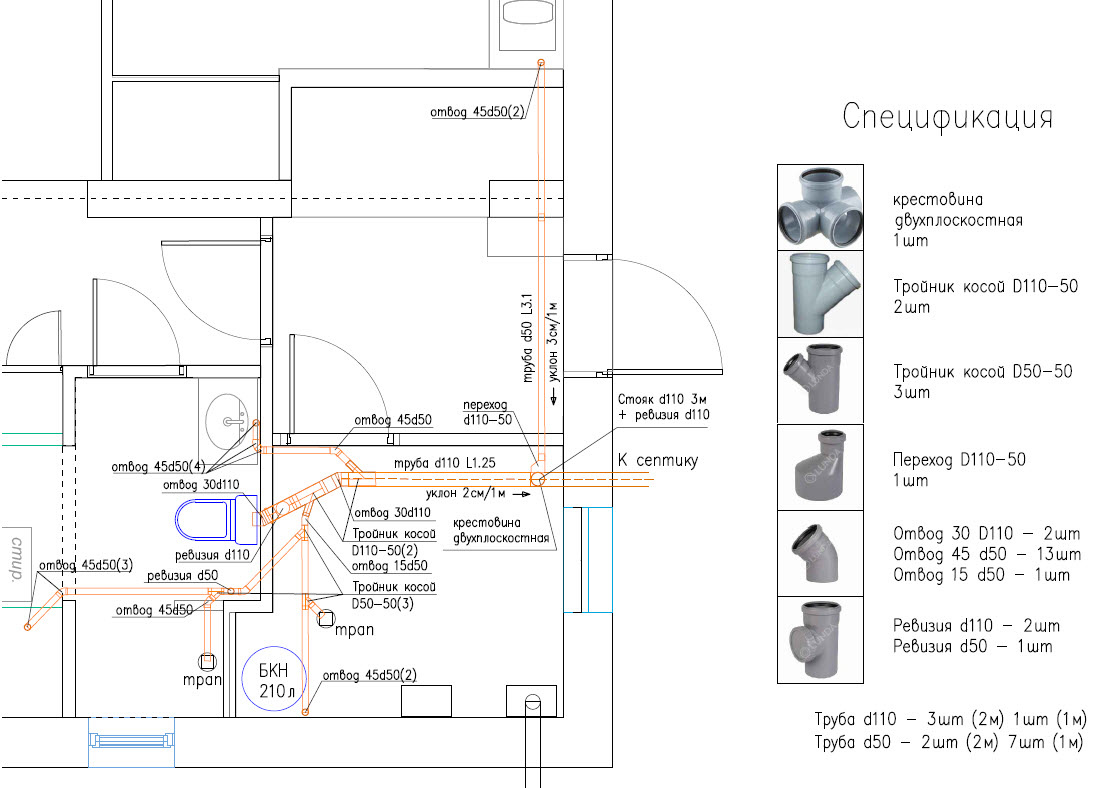
Разводка канализации 1 этаж.
Разводка канализации 1 этаж.

Проектируя внутреннюю разводку необходимо придерживаться следующих рекомендаций.

  • Чем меньше поворотов тем лучше.
  • Чем короче трасса тем лучше ( в идеале от унитаза до стояка не более 1.5м)
  • Если необходимо сделать поворот 90гр используйте два отвода по 45гр

Крепить трубы канализации планирую к бетонному перекрытию при помощи специальных хомутов, размещаемых на каждом стыке. На всякий случай запроектировал несколько ревизий, что бы в случае засора, его было проще устранить.

Начертив оптимальную трассу, записал типы и количество размещенных на ней фитингов.

Закончив с трассой канализации первого этажа, отрисовал трассу на втором.

Разводка канализации второго этажа
Разводка канализации второго этажа

Следующим этапом начертил вертикальную часть канализации на сечении дома. Еще раз просчитал уклоны трасс, и отобразил трубы в толще пирога пола.

Вентиляционный стояк канализации проходит у меня через чердачное перекрытие и присоединяется к фановой трубе уже заложенной в кровле. Отрезок трубы проходящей по холодному чердаку, необходимо будет утеплить.

Сечение
Сечение

После работ над листами проекта, и утверждения окончательного варианта приступил к расчету стоимости материалов. Цены брал из популярных интернет магазинов инженерной сантехники.

Смета на материал по устройству внутренней канализации

  • Крестовина двухплоскостная 1шт - 480р.
  • Крестовина одноплоскостная 1шт - 540р.
  • Тройник косой D110-110 1шт - 180р.
  • Тройник косой D110-50 2шт - 360р.
  • Тройник косой D50-50 5шт - 500р
  • Переход D110-50 3шт - 330р
  • Ревизия D110 3шт - 900р
  • Ревизия D50 1шт - 350р
  • Отвод D110 30гр 2шт - 270р
  • Отвод D50 45гр 22шт - 1100р
  • Отвод D50 15гр 1шт - 50р
  • Труба D110 10 м.п. - 4690р
  • Труба D50 16 м.п. - 3300р
  • Хомуты (кол-во уточнить по месту) - 2000р

Итого стоимость материалов на устройство внутренней канализации 15050 руб. Монтаж планирую сделать самостоятельно.

Проект наружной канализации.

Проект уличной канализации у меня довольно простой. Станция биологической очистки Спарта 800 (1000) плюс, расположенная в 3-ех метрах от дома. Трубу буду закладывать оранжевую, на песчаное основание, с уклоном 2-2.5см. на метр. Глубина заложения у меня получилось 80-90см от уровня земли. В Спарте есть готовые решения для глубины подходящей трубы до 1 метра. Большинство же других септиков имеет входное отверстие на глубине до 60см и нужно дополнительно заказывать удлинение горловины.

  • Перед проектированием сетей дома, наведите справки о планируемом септике, особенно стандартной глубины входного отверстия под канализационную трубу. Не забывайте учесть длину трассы и уклон 2-3 см на метр.

Отведение переработанных стоков принудительное, в уличную дренажную канаву расположенную в 5 - и метрах от станции.

План уличной трассы канализации
План уличной трассы канализации

В конце 2024 года запросил в нескольких компаниях коммерческое предложение на устройство наружной канализации.

Коммерческое предложение по устройству канализации
Коммерческое предложение по устройству канализации

На данный момент рассматриваю Станцию биологической очистки (СБО) Спарта 800 плюс или 1000 плюс при эксплуатации до 8 человек. Интересно узнать мнение подписчиков, какие альтернативные станции можно использовать?

А на этом все, ставьте лайки, подписывайтесь на канал, оставляйте комментарии.

Также вам может быть интересно: