Найти в Дзене
DIVAN.RU

Стильная евродвушка 45 кв.м с яркими акцентами, продуманным хранением и зеркальной стеной

Комфортный интерьер, в котором есть все необходимое, а пространство не кажется загроможденным. Об объекте: евродвушка, 45 кв.м, г. Москва ЖК Level Стрешнево Авторы проекта: дизайнер Мария Ничипоренко Квартира сдавалась с отделкой white box. Вход в спальню перенесли в гостиную. Это позволило организовать дополнительный хозяйственный блок на кухне, а в спальне выстроить систему хранения во всю стену. Основной объем хранения предусмотрен в гардеробной — ее обустроили при входе в квартиру. Основной составляющей цветовой палитры стал серый — его оттенки создали гармоничный фон для ярких акцентов и декоративных элементов. Кухонный гарнитур «разбили» на две части. В основном блоке находятся мокрая зона, посудомойка и вытяжка. Бытовая техника встроена в колонны на другой стене, здесь же предусмотрены места для хранения и спрятана стиральная машина. Обеденным столом служит барная стойка, которая еще и зонирует пространство. Обратите внимание: около раковины спроектировали открытые полки для пос
Оглавление

Комфортный интерьер, в котором есть все необходимое, а пространство не кажется загроможденным.

Проект дизайнера Марии Ничипоренко; автор фото Максим Канакин
Проект дизайнера Марии Ничипоренко; автор фото Максим Канакин

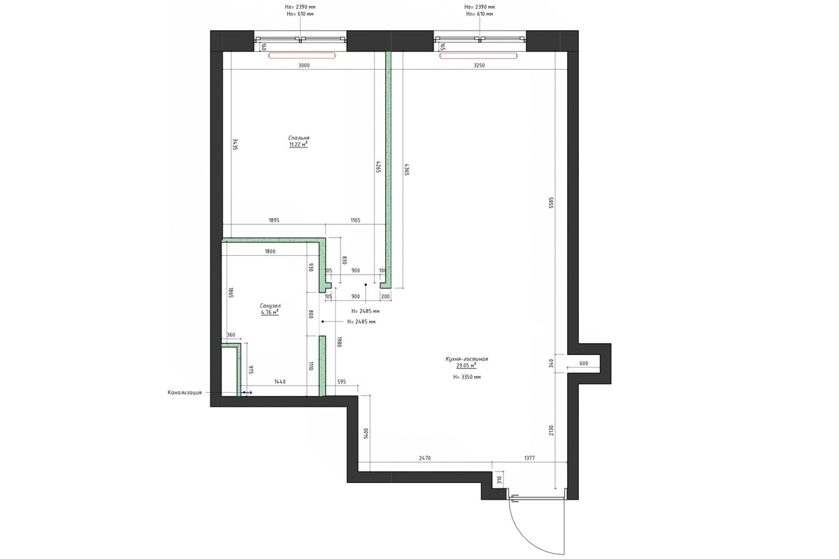
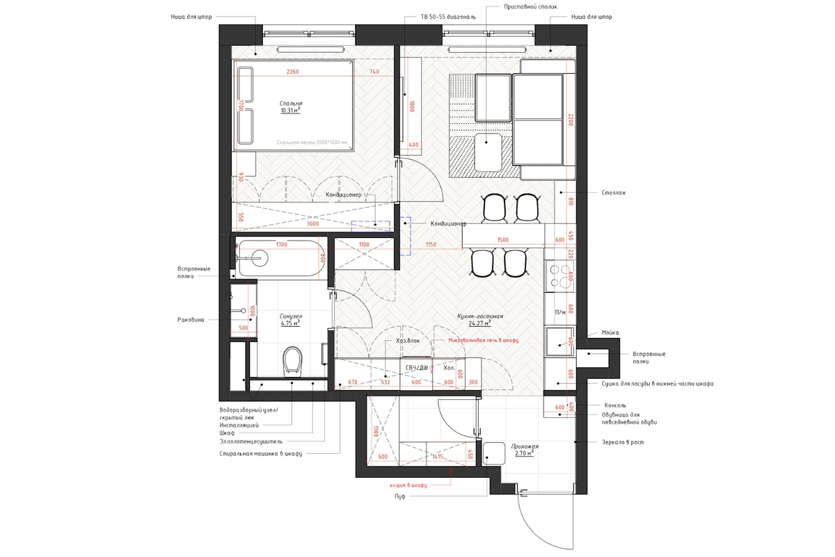
Об объекте: евродвушка, 45 кв.м, г. Москва ЖК Level Стрешнево

Авторы проекта: дизайнер Мария Ничипоренко

Квартира сдавалась с отделкой white box. Вход в спальню перенесли в гостиную. Это позволило организовать дополнительный хозяйственный блок на кухне, а в спальне выстроить систему хранения во всю стену. Основной объем хранения предусмотрен в гардеробной — ее обустроили при входе в квартиру.

Кухня-гостиная

Основной составляющей цветовой палитры стал серый — его оттенки создали гармоничный фон для ярких акцентов и декоративных элементов.

Проект дизайнера Марии Ничипоренко; автор фото Максим Канакин
Проект дизайнера Марии Ничипоренко; автор фото Максим Канакин

Кухонный гарнитур «разбили» на две части. В основном блоке находятся мокрая зона, посудомойка и вытяжка. Бытовая техника встроена в колонны на другой стене, здесь же предусмотрены места для хранения и спрятана стиральная машина. Обеденным столом служит барная стойка, которая еще и зонирует пространство.

Обратите внимание: около раковины спроектировали открытые полки для посуды.

Гостиная плавно «вытекает» из интерьера кухни — добиться гармоничной картинки позволило единое оформление гарнитура и открытой системы хранения.

Всю мебель для гостиной покупали на divan.ru. Модульный диван Этен собирали как конструктор — из отдельных элементов. От одной из боковин намеренно отказались, чтобы сохранить визуальную легкость. Напротив — ТВ-тумба Леванте с фрезерованными фасадами. Контрастным вкраплением цвета стал терракотовый журнальный столик Скетч.

➡️ В кадре модульный диван Этен от бренда divan.ru >>

Этот диван сейчас можно приобрести с выгодой до 28 000₽*! Успейте купить мебель и аксессуары на киберраспродаже со скидками до 70%>>

-7

Спальня

Интерьер спальни решен в двух оттенках серого — их контраст визуально отделил место для сна от зоны хранения. Прикроватная тумба Леванте рядом с кроватью выбрана из той же коллекции, что и ТВ-тумба в гостиной. А ковер на полу имеет схожий дизайн с ковром в диванной зоне.

➡️ В кадре тумба Леванте от бренда divan.ru >>

Обратите внимание: для хранения установили сразу три двустворчатых шкафа Кимбол. Такое решение позволило сэкономить на встроенной мебели и выдержать единый дизайн.

➡️ В кадре распашной шкаф Кимбол от divan.ru >>

Прихожая

Эффектное решение, которое создает вау-эффект на входе в квартиру — зеркальная стена. Поверхность отражает свет, зрительно увеличивая пространство и добавляя ему глубины.

Из мебели в прихожей только консоль и мягкий акцентный пуф Куб от divan.ru. Хранение организовано в отдельной гардеробной, которая располагается недалеко от входа.

➡️ В кадре пуф Куб от divan.ru >>

Санузел

На компактной площади санузла удалось разместить все необходимое: ванну, стеллаж во всю высоту стены, шкаф с полками над инсталляцией, встроенные полки с дополнительным светом над ванной. Между тумбой и раковиной оставили место для хранения полотенец.

==========

Оцените интерьер в комментариях, а если материал понравился — не забудьте поставить лайк👍

🖤divan.ru — не только блог про интерьеры, но и производитель доступной дизайнерской мебели. Ищите новые идеи и переходите на сайт, чтобы воплотить их в жизнь.

*Цены актуальны на момент публикации статьи