Добавить в корзинуПозвонить
Найти в Дзене

Зачем мне планировка квартиры /дома от дизайнера интерьера?

Важность планировки в дизайне интерьера невозможно переоценить! Большая площадь помещения не спасает от беспорядка, если нет достаточного количества мест для хранения. Каждая семья имеет свои индивидуальные потребности и предпочтения в интерьере На практике часто бывает так, что клиенты довольны планировкой квартиры и не хотят ничего менять. Однако после расстановки мебели становится ясно, что шкаф в спальне не помещается , ванна слишком маленькая, а на кухне не хватает места для разделочной доски. 1. Молодая семья без детей приобрела квартиру небольшой площади. Застройщик предполагал такую планировку Посмотрите как я реализовала все запросы в планировочном решении для них 2. Семья планирующая стать родителями приобрела 3 комнатную квартиру. Застройщик предполагал такую планировку Посмотрите как я реализовала все запросы в планировочном решении для них. Получилось две абсолютно не похожие друг на друга планировки, но учтены все пожелания Планировочное решение стоит дешевле, чем п
Оглавление

Важность планировки в дизайне интерьера невозможно переоценить!

Даже самый красивый, стильный, модный и дорогой интерьер теряет свою ценность, если он неудобен

Большая площадь помещения не спасает от беспорядка, если нет достаточного количества мест для хранения. Каждая семья имеет свои индивидуальные потребности и предпочтения в интерьере

Некоторые люди собирают обширные коллекции обуви, другие же предпочитают носить кеды круглый год. Вы можете работать из дома, а можете путешествовать по всему миру. Поэтому интерьер должен быть проработан под вас!

На практике часто бывает так, что клиенты довольны планировкой квартиры и не хотят ничего менять. Однако после расстановки мебели становится ясно, что шкаф в спальне не помещается , ванна слишком маленькая, а на кухне не хватает места для разделочной доски.

Я приведу несколько примеров:

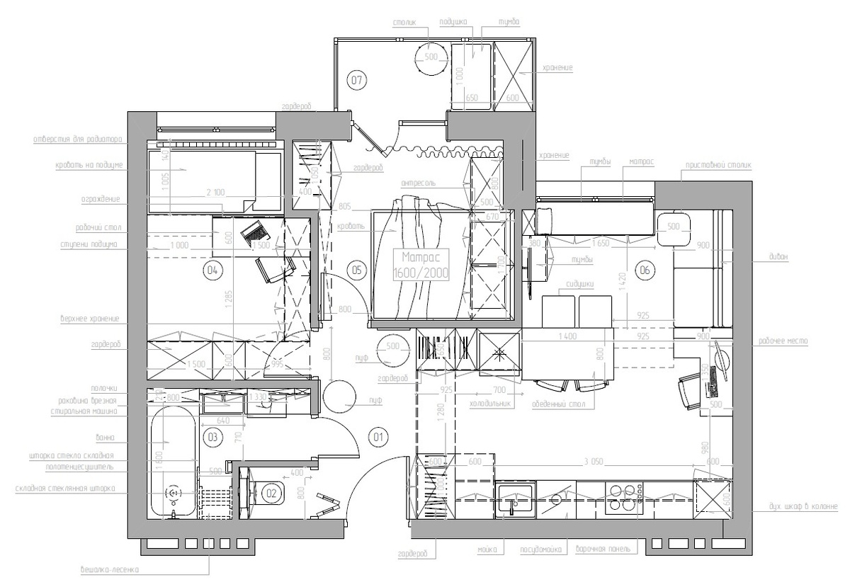
1. Молодая семья без детей приобрела квартиру небольшой площади. Застройщик предполагал такую планировку

Что было необходимо клиентам:

  • обязательно раздельный туалет и ванная комната
  • спальня для них меньше, а детская больше
  • пространство в кухне-гостиной
  • вместительный шкаф в прихожей

Посмотрите как я реализовала все запросы в планировочном решении для них

Планировочное решение Лесная Отрада. Дизайнер Харашевич Юлия
Планировочное решение Лесная Отрада. Дизайнер Харашевич Юлия

2. Семья планирующая стать родителями приобрела 3 комнатную квартиру. Застройщик предполагал такую планировку

-3

Что было необходимо клиентам:

  • обязательно выделить блок спальня-гардероб-санузел
  • создать планировку кабинета, которую можно без усилий переделать в детскую комнату
  • просторную кухню-гостиную
  • вместительную кухню с островом (жена любит готовить)
  • выделить зону построчной

Посмотрите как я реализовала все запросы в планировочном решении для них. Получилось две абсолютно не похожие друг на друга планировки, но учтены все пожелания

Помните, что планировка — это инвестиция в ваш комфорт и уют на долгие годы. Поэтому подойдите к этому вопросу ответственно.

Планировочное решение стоит дешевле, чем полный дизайн-проект с визуализацией, но при этом вы получаете грамотную основу для дальнейшего оформления интерьера. Дальше вам будет проще выбрать отделочные материалы, освещение и мебель, опираясь на предложенную планировку.

🔔 Поделитесь своими мыслями о важности планировки в дизайне интерьера в комментариях. Какие аспекты планировки важны для вас?