Добавить в корзинуПозвонить
Найти в Дзене
Onlíner

Как инь и ян. Минчане рискнули и сделали нетипичный ремонт в хрущевке

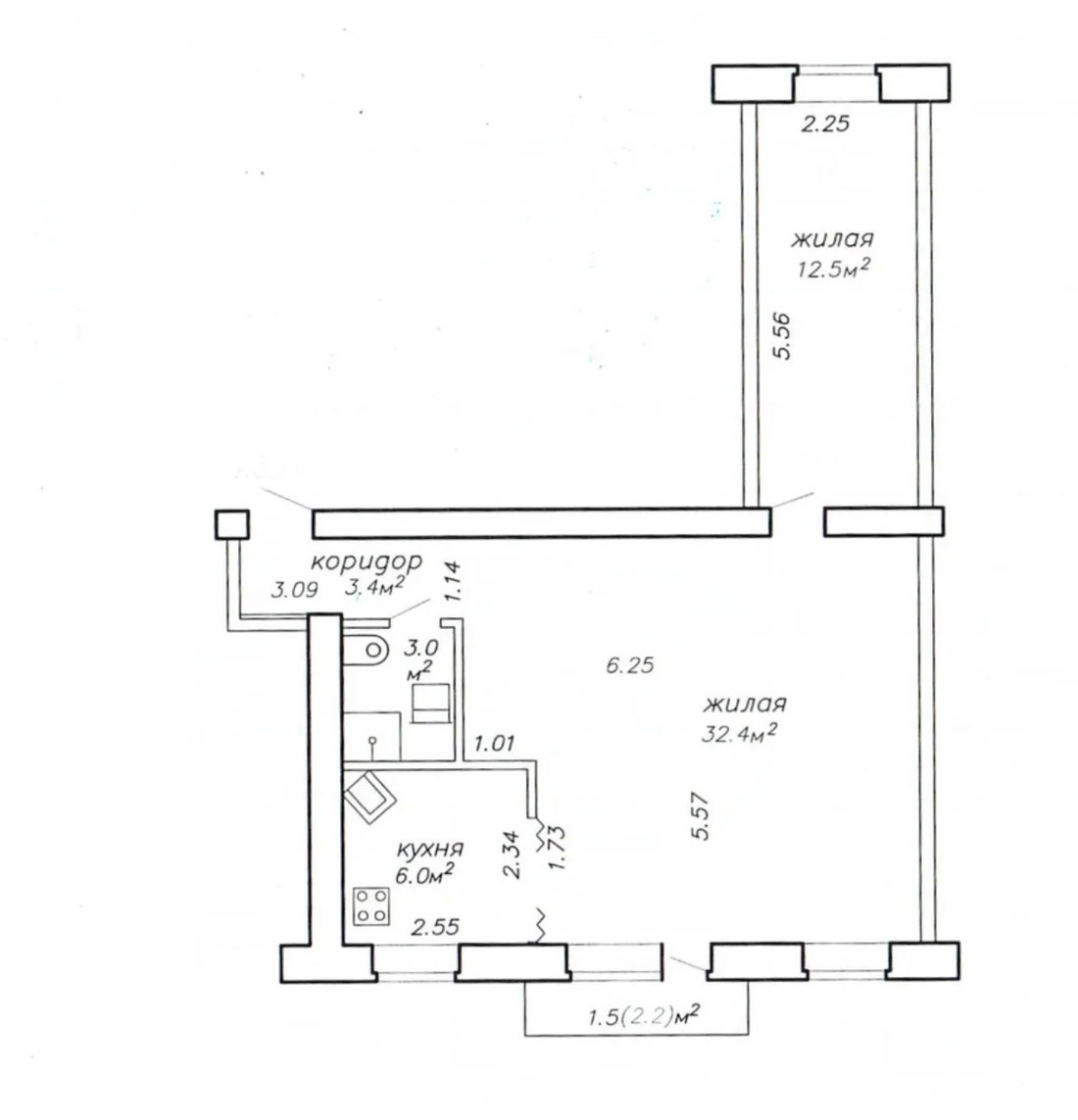
Пока кто-то упорно копит деньги на квартиру в новостройке, кто-то, не боясь трудностей, берет жилье в старом доме и делает из него что-нибудь современное. Очередной пример скрывается на улице Каховской. Глядя на такой интерьер, вряд ли догадаешься, что находится он не в каком-то модном ЖК, а в хрущевке. Выдать квартиру может разве что планировка с крохотной кухней. Двушку можно найти на самом верху пятиэтажки, построенной в 1963 году. Ее площадь — 59 кв. м. Бо́льшую часть занимает просторная гостиная на 32 «квадрата», спальне досталось всего 12,5, а кухне — скромных 6. Основная комната оформлена в стиле лофт. Кое-где проступает кирпичная кладка, а стены и потолки выкрашены в черный и белый — такая контрастная отделка сразу бросается в глаза. Эту цветовую гамму повторяет кухонная мебель, тем самым создается единое стилистическое пространство. Кухня, к слову, имеет достаточно оригинальную перегородку — она выполнена в виде бамбукового тростника. Спальня же пол

Пока кто-то упорно копит деньги на квартиру в новостройке, кто-то, не боясь трудностей, берет жилье в старом доме и делает из него что-нибудь современное. Очередной пример скрывается на улице Каховской. Глядя на такой интерьер, вряд ли догадаешься, что находится он не в каком-то модном ЖК, а в хрущевке. Выдать квартиру может разве что планировка с крохотной кухней.

 📷
📷

Двушку можно найти на самом верху пятиэтажки, построенной в 1963 году. Ее площадь — 59 кв. м. Бо́льшую часть занимает просторная гостиная на 32 «квадрата», спальне досталось всего 12,5, а кухне — скромных 6.

 📷
📷

Основная комната оформлена в стиле лофт. Кое-где проступает кирпичная кладка, а стены и потолки выкрашены в черный и белый — такая контрастная отделка сразу бросается в глаза. Эту цветовую гамму повторяет кухонная мебель, тем самым создается единое стилистическое пространство.

 📷
📷

 📷
📷

Кухня, к слову, имеет достаточно оригинальную перегородку — она выполнена в виде бамбукового тростника.

 📷
📷

 📷
📷

 📷
📷

Спальня же получилась более сдержанной и лаконичной, хотя там тоже используется похожий прием в отделке. А белая мебель придает свежести и легкости всей обстановке.

 📷
📷

 📷
📷

Санузел в квартире совмещенный — с душевой кабиной, плиткой под «камень» и модной неоновой подсветкой.

 📷
📷

Прямо сейчас двушка продается. Ее стоимость — $102 900 по курсу. В пересчете на «квадраты» получается $1744 за метр.

Есть о чем рассказать? Пишите в наш телеграм-бот. Это анонимно и быстро