Найти в Дзене
КЗТО Радиаторы

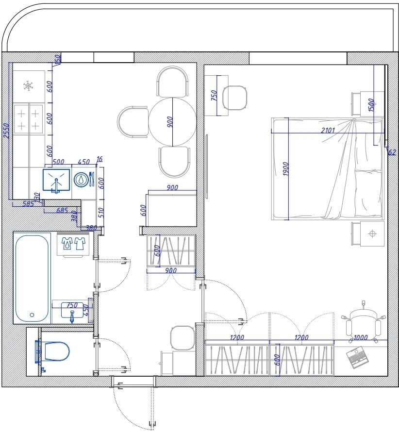
До и после: переделка однушки 39 м² с изюминкой

В короткие сроки и с минимальным бюджетом перед дизайнером Екатериной стояла задача преобразить типовую однокомнатную квартиру, которая изначально была непригодной для жизни, в готовый для продажи уютный и стильный объект. Важным этапом было создание визуально привлекательного и максимально функционального пространства, а также гармоничное включение модели радиаторов отопления КЗТО РС в интерьер. Делимся подробностями проекта! Помещение отличалось сложной планировкой: нестандартная геометрия, наличие нескольких выступов и выход на лоджию создавали дополнительные вызовы для дизайна. Для оптимального использования сложной геометрии кухни кухонную мебель изготовили на заказ, что позволило максимально эффективно задействовать пространство для хранения. В дополнение к стандартным элементам — встраиваемому холодильнику, посудомоечной машине шириной 45 см, духовому шкафу и многочисленным ящикам — были созданы удобные неглубокие зоны для хранения возле входа. Также на кухне установили готовый
Оглавление
Блог — Преображение однушки 39 м² с радиаторами КЗТО РС: до и после ремонта

В короткие сроки и с минимальным бюджетом перед дизайнером Екатериной стояла задача преобразить типовую однокомнатную квартиру, которая изначально была непригодной для жизни, в готовый для продажи уютный и стильный объект.

Важным этапом было создание визуально привлекательного и максимально функционального пространства, а также гармоничное включение модели радиаторов отопления КЗТО РС в интерьер.

Делимся подробностями проекта!

Кухня до ремонта

Помещение отличалось сложной планировкой: нестандартная геометрия, наличие нескольких выступов и выход на лоджию создавали дополнительные вызовы для дизайна.

Кухня после ремонта

Для оптимального использования сложной геометрии кухни кухонную мебель изготовили на заказ, что позволило максимально эффективно задействовать пространство для хранения.

В дополнение к стандартным элементам — встраиваемому холодильнику, посудомоечной машине шириной 45 см, духовому шкафу и многочисленным ящикам — были созданы удобные неглубокие зоны для хранения возле входа.

Также на кухне установили готовый шкаф, предназначенный для размещения хозяйственно-бытовых принадлежностей.

Комната до ремонта

Жилая комната имела вход из коридора, а основной источник света поступал через лоджию, из-за чего естественное освещение было ограниченным.

Комната после ремонта

Полы были покрыты ламинатом, а стены оформлены гладкими флизелиновыми обоями под покраску — популярными и практичными отделочными материалами, понятными конечным потребителям.

В комнате, помимо комфортного спального места, был размещен вместительный шкаф шириной 2400 мм с тщательно продуманным наполнением, включающим штанги, полки и ящики для удобного хранения вещей и рабочим местом.

Изюминка на торте

Это радиаторы отопления КЗТО РС. Их стильный черный матовый цвет не только придает интерьеру особую элегантность, но и становится ярким акцентом, который дополняет общую атмосферу пространства.

Эти радиаторы не просто функциональны, но и служат важным декоративным элементом, подчеркивая современный и продуманный дизайн комнаты.

Санузлы до ремонта

Раздельные санузлы с классической планировкой, где оборудование было расположено по стандартной схеме. Требовалось привести всё в порядок и скрыть коммуникации, чтобы создать более аккуратное и современное пространство.

Санузлы после ремонта

Расположение сантехники в ванной комнате и санузле осталось без изменений, но был добавлен вывод для стиральной машины в ванной. В отделке использовали керамогранит песочного цвета, который сочетался с белыми окрашенными стенами.

Для завершенности образа помещения стены были разделены черными молдингами, что придало им стильный и законченный вид.

Прихожая до ремонта

В квартире была непривлекательная прихожая с устаревшими дверями и отделкой, которые требовали полной замены, чтобы обновить пространство и создать более современный и стильный вид.

-9

Прихожая после ремонта

Шкаф для прихожей был выбран в готовом виде, с возможностью подбора подходящего наполнения.

Он так же подходит для хранения сезонной одежды, что позволило эффективно организовать пространство.

Двери были заменены на белые полотна без наличников, а входную дверь установили в цвет стен, что визуально расширило пространство прихожей.

Заключение

Интерьер — это не только вопрос стиля, но и вопрос комфорта.

Радиаторы КЗТО стали для клиентов настоящим открытием, они помогли создать пространство, которое не только привлекает взгляды, но и полностью соответствует всем требованиям. Они идеально сочетают в себе эстетику и функциональность, что позволяет достигать гармонии в интерьере.

Мы надеемся, что этот проект вдохновит и вас на создание уникальных пространств, где красота и практичность идут рука об руку.

Город: Санкт-Петербург

Тип дома: панельный дом серии 137

Метраж: 39 кв. м

Комната: 1

Санузел: 1

Высота потолков: 2,7 м

Бюджет: 1,8 млн рублей

Дизайнер / визуализатор: Екатерина Сюсюкина