Найти в Дзене

Уместили все в небольшой квартире: добавили кабинет, увеличили ванные, сделали много мест для хранения

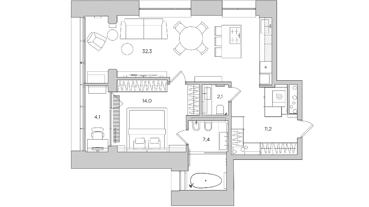
Наши заказчики, активная пара, ставили перед интерьером много важных задач: сделать изолированный кабинет, удобную кухню с островом и найти в апартаментах места для хранения вещей. Планировка от застройщика была не самой удачной: небольшая спальня, широкий и длинный коридор, маленькая изолированная кухня и длинная холодная лоджия. Но зато ванная с окном! Площадь апартаментов 71 м², и рассказ про их перепланировку будет полезен всем! Мы снесли перегородку между кухней и гостиной, объединив их в одно большое пространство с тремя функциональными зонами: кухонный гарнитур с островом, обеденная зона и место для отдыха с аудиосистемой.  После перепланировки мы избавились от коридоров, а также перенесли гостевой санузел и сделали его больше. А маленькое пространство между прихожей и кухней-гостиной мы использовали полезно: в черном шкафу с решеткой стоят стиральная и сушильная машины.  В прихожей мы расположили пенал с пылесосами и большие шкафы для обуви, одежды и чемоданов.  Небольшую спаль

Наши заказчики, активная пара, ставили перед интерьером много важных задач: сделать изолированный кабинет, удобную кухню с островом и найти в апартаментах места для хранения вещей.

Планировка от застройщика была не самой удачной: небольшая спальня, широкий и длинный коридор, маленькая изолированная кухня и длинная холодная лоджия. Но зато ванная с окном!

Отдельно стоящая ванна
Отдельно стоящая ванна

Площадь апартаментов 71 м², и рассказ про их перепланировку будет полезен всем!

Мы снесли перегородку между кухней и гостиной, объединив их в одно большое пространство с тремя функциональными зонами: кухонный гарнитур с островом, обеденная зона и место для отдыха с аудиосистемой. 

После перепланировки мы избавились от коридоров, а также перенесли гостевой санузел и сделали его больше.

Гостевой санузел
Гостевой санузел

А маленькое пространство между прихожей и кухней-гостиной мы использовали полезно: в черном шкафу с решеткой стоят стиральная и сушильная машины. 

Хозяйственный шкаф
Хозяйственный шкаф

В прихожей мы расположили пенал с пылесосами и большие шкафы для обуви, одежды и чемоданов. 

Большие шкафы для хранения
Большие шкафы для хранения

Небольшую спальню мы расширили за счет коридора и гостиной. У застройщика вход в ванную был из коридора, мы присоединили ее к спальне и увеличили. 

Мастер-спальня с ванной комнатой
Мастер-спальня с ванной комнатой

Одно из пожеланий заказчиков — сделать объемную систему хранения. Так как для обособленной гардеробной места не было, мы поставили в спальне два больших шкафа со стеклянными фасадами и подсветкой.

Платяные шкафы с подсветкой
Платяные шкафы с подсветкой

Так как это апартаменты, мы смогли разделить лоджию и установить второй контур остекления, чтобы она стала теплой. При спальне сделали изолированный кабинет площадью 4,1 м², а в кухне-гостиной на её месте мы расположили зону отдыха с креслом.

Как вам наша перепланировка?

Смету, все фотографии и видео этого интерьера смотрите на нашем сайте.

Если вы тоже хотите воплотить интерьер с продуманной комфортной планировкой, оставляйте заявку на сайте и мы с вами свяжемся.