Добавить в корзинуПозвонить
Найти в Дзене
DIVAN.RU

Ремонт в трешке 80 кв.м: нескучная переделка для семьи с котом

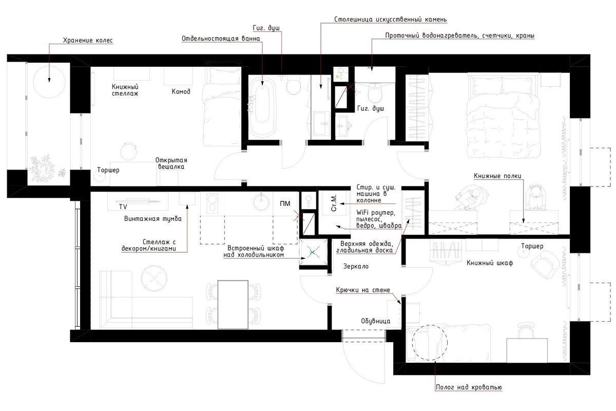
Владельцы этой квартиры — молодая семья с двумя детьми-дошкольниками. Им хотелось, чтобы интерьер был не только функциональным, но и атмосферным, «не как у всех». Смотрим, что получилось. Об объекте: трехкомнатная квартира 80 кв.м в г. Уфа Автор проекта: дизайнер Надежда Токарева Планировка в целом устраивала заказчиков, внесли лишь незначительные изменения. «Передвинули» вход в кухню-гостиную и создали нишу в зоне кухни, в которую встроили холодильник. Спальню расширили за счет детской, чтобы разместить там шкафы и организовать рабочие места для родителей. Для отделки стен в квартире использовали краску и обои, а полы во всех помещениях, кроме санузлов, покрыли кварц-винилом с узором «елочка». Поскольку заказчица — творческая личность с прекрасным вкусом, ее видение оказало значительное влияние на разработку проекта, — делится дизайнер. — Она подобрала чудесные референсы и четко озвучила желаемые результаты. Кухня-гостиная площадью 18 квадратных метров объединила комфортные зоны для г
Оглавление

Владельцы этой квартиры — молодая семья с двумя детьми-дошкольниками. Им хотелось, чтобы интерьер был не только функциональным, но и атмосферным, «не как у всех». Смотрим, что получилось.

Проект Надежды Токаревой; автор фото: Роман Спиридонов
Проект Надежды Токаревой; автор фото: Роман Спиридонов

Об объекте: трехкомнатная квартира 80 кв.м в г. Уфа

Автор проекта: дизайнер Надежда Токарева

Планировка в целом устраивала заказчиков, внесли лишь незначительные изменения. «Передвинули» вход в кухню-гостиную и создали нишу в зоне кухни, в которую встроили холодильник. Спальню расширили за счет детской, чтобы разместить там шкафы и организовать рабочие места для родителей.

Для отделки стен в квартире использовали краску и обои, а полы во всех помещениях, кроме санузлов, покрыли кварц-винилом с узором «елочка».

Поскольку заказчица — творческая личность с прекрасным вкусом, ее видение оказало значительное влияние на разработку проекта, — делится дизайнер. — Она подобрала чудесные референсы и четко озвучила желаемые результаты.

Кухня-гостиная

Кухня-гостиная площадью 18 квадратных метров объединила комфортные зоны для готовки и отдыха. На входе установлен линейный гарнитур без верхних шкафов. Деревянные полки с декором и посудой добавили обстановке уют и домашность.

Обратите внимание: Для освещения рабочей зоны использовали пару бра с регулируемым наклоном, которые выполняют основную функцию и в то же время приглушают утилитарность кухни.

В гарнитуре встроены духовой шкаф, двухконфорочная варочная панель, измельчитель, фильтр для воды. Холодильник аккуратно спрятан в специально отведенной нише, созданной во время перепланировки.

Проект Надежды Токаревой; автор фото: Роман Спиридонов
Проект Надежды Токаревой; автор фото: Роман Спиридонов

С противоположной стороны от кухонного гарнитура расположена обеденная зона с круглым столом и винтажными стульями. Столовую не перегружали лишними деталями: на стену повесили картину, а для локального освещения выбрали подвесной светильник.

В гостиную для большой семьи заказали угловой диван. Искали именно раскладной — на случай, если вдруг понадобиться разместить друзей или родственников. Оптимальный вариант нашли в divan.ru — угловой диван Маркфул в изумрудном цвете.
Проект Надежды Токаревой; автор фото: Роман Спиридонов
Проект Надежды Токаревой; автор фото: Роман Спиридонов

➡️В кадре угловой диван Маркфул Velvet Emerald от бренда divan.ru >>

Этот диван сейчас можно приобрести с выгодой до 44 000₽*! Успейте купить мебель и аксессуары на киберраспродаже со скидками до 70%>>

-7

«У заказчиков имелись два крупных армейских сундука, от которых не хотели отказываться, — рассказывает дизайнер. — Один из них стал журнальным столиком в гостиной, а второй — прикроватной тумбой в одной из детских. Кроме того, сундуки отлично подходят для хранения».

ТВ-тумба в ретро-стиле была приобретена заказчицей, и она по своему вкусу заменила одну из ручек на фигурную в виде зайца. Чтобы скрыть радиаторы, стену под подоконником доработали с помощью гипсокартона и закрыли решеткой из МДФ.

Спальня

Изначально стены спальни хотели покрасить в нейтрально-серый, но в процессе реализации заказчица попросила внести изменения. Остановились на насыщенном сине-зеленом, который создает уютную и спокойную атмосферу. Изголовье кровати изготовлено из гипсокартона, оклеено молдингами и покрашено в один тон. Основание просто приставлено к изголовью, без дополнительной фиксации.

Чтобы шкаф не выглядел слишком массивным, его сделали встроенным, а фасады покрасили в цвет стен. Для теплоты и уюта были использованы деревянные акценты, текстиль и подвесной светильник из перьев.

«Во время работы многие из выбранных позиций владелица, согласовав с нами, заменила на винтажные находки с Авито, — рассказывает дизайнер. — Среди них ТВ-тумба, обеденные стулья, прикроватная тумба в спальне родителей, кресло и шкаф в детской. Кстати, черный рабочий стул из моего личного запаса я подарила заказчице перед своим переездом, так как она искала именно такую форму и цвет».

Детские

Детские комнаты получились необычными. Стены в комнатах подготовили под покраску, однако в спальне дочки одна из стен выделена с помощью шведских обоев с растительным принтом. Вместо встроенных систем хранения поставили компактные шкафы, комоды и тумбы, а кровати установили односпальные. В комнате дочки над кроватью — полог в пыльно-розовом цвете.

Для создания контраста во всей квартире использовались двери и плинтусы, отличающиеся по цвету от дверных полотен. «Этот прием навеян викторианским стилем английских интерьеров. Он понравился как мне, так и заказчице, — поясняет автор проекта. — Для достижения эффекта я специально подбирала цвет краски для плинтусов под цвет наличников дверей. Наличники были изготовлены и покрашены на заводе, а плинтусы на месте».

Прихожая

У входа располагается банкетка, выше — крючки для верхней одежды. В прихожей предусмотрено большое зеркало, ключница и стол-пуф для хранения сумок и телефонов во время сборов. Кроме того, спроектированы два встроенных шкафа: в одном из них спрятана колонна со стиральной и сушильной машинами, а в другом хранится верхняя одежда.

Санузлы

Так как постирочная вынесена в прихожую, ванная комната получилась довольно просторной. Для создания расслабляющей атмосферы здесь установлена отдельно стоящая ванна, на стенах — комбинация из плитки и обоев. «У заказчицы были сохраненные примеры ванных из Pinterest, и мне тоже всегда хотелось попробовать смесь плитки и обоев в санузле, — делится дизайнер. — Это отличный способ показать потенциальным клиентам, как можно оригинально оформить ванную».

В туалете нижнюю часть стен облицевали серой плиткой, а оставшаяся часть окрашена в синий цвет. Над инсталляцией — шкафы с доступом к водонагревателю и сантехническим коммуникациям.

Проект Надежды Токаревой; автор фото: Роман Спиридонов
Проект Надежды Токаревой; автор фото: Роман Спиридонов

«Отдельной гордостью считаю тот факт, что для фотосессии в квартиру практически ничего не понадобилось докупать, — подводит итог дизайнер. Мои заказчики живут в такой же красоте, как и на фотографиях. Это не декорации, это настоящая жизнь».

==========

Оцените интерьер в комментариях, а если материал понравился — не забудьте поставить лайк👍

🖤divan.ru — не только блог про интерьеры, но и производитель доступной дизайнерской мебели. Ищите новые идеи и переходите на сайт, чтобы воплотить их в жизнь.

*Цены актуальны на момент публикации статьи