Добавить в корзинуПозвонить
Найти в Дзене
Энергетик на пенсии.

Federica Bugatti VARME 24 конструкция.

Друзья! Если вам пригодилась информация в статье, поставьте лайк и оставьте комментарий чтобы вы хотели еще узнать. Я вам буду очень признателен.

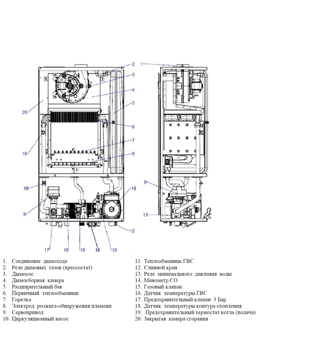
Federica Bugatti 24 VARME конструкция, внутренние компоненты котла.
Federica Bugatti 24 VARME конструкция, внутренние компоненты котла.

Друзья! Если вам пригодилась информация в статье, поставьте лайк и оставьте комментарий чтобы вы хотели еще узнать. Я вам буду очень признателен.