Добавить в корзинуПозвонить
Найти в Дзене
Строю для себя

10х10, а может всё-таки 9х12? Как безошибочно определиться с размерами дома? Ловушка, в которую многие попадают

Добрый день, уважаемые гости и подписчики моего канала! Очень часто слышу от своих друзей и знакомых, что, мол, вот — хочу дом 10х10, а то 9х9 как то маловат, а 12х12 уже слишком большой. Это требования к будущему дому, в которых во главу угла ставится внешний размер строения. Много примеров, когда внешние стены уже готовы, установлены окна, входная дверь, а внутри практически свободная планировка. И, хозяева начинают в дальнейшем ставить перегородки, бурить фундамент для коммуникаций и преодолевают много других трудностей, которых заранее можно было избежать. Есть такой еще вариант, что уже нарисованный проект есть, все помещения отделены друг от друга, но построив дом, то холодильник не вписывается, то диван некуда приткнуть, то телевизор, висящий на стене, выступает за половину окна, перекрывая солнечный свет :-))) Эти ошибки идут только от привязки к внешним размерам дома. Когда готова коробка, жильцы начинают вписывать в готовую площадь все помещения, в которых есть потребность —

Добрый день, уважаемые гости и подписчики моего канала!

Очень часто слышу от своих друзей и знакомых, что, мол, вот — хочу дом 10х10, а то 9х9 как то маловат, а 12х12 уже слишком большой. Это требования к будущему дому, в которых во главу угла ставится внешний размер строения.

Много примеров, когда внешние стены уже готовы, установлены окна, входная дверь, а внутри практически свободная планировка. И, хозяева начинают в дальнейшем ставить перегородки, бурить фундамент для коммуникаций и преодолевают много других трудностей, которых заранее можно было избежать.

Есть такой еще вариант, что уже нарисованный проект есть, все помещения отделены друг от друга, но построив дом, то холодильник не вписывается, то диван некуда приткнуть, то телевизор, висящий на стене, выступает за половину окна, перекрывая солнечный свет :-)))

Эти ошибки идут только от привязки к внешним размерам дома. Когда готова коробка, жильцы начинают вписывать в готовую площадь все помещения, в которых есть потребность — и это головная боль!

-2

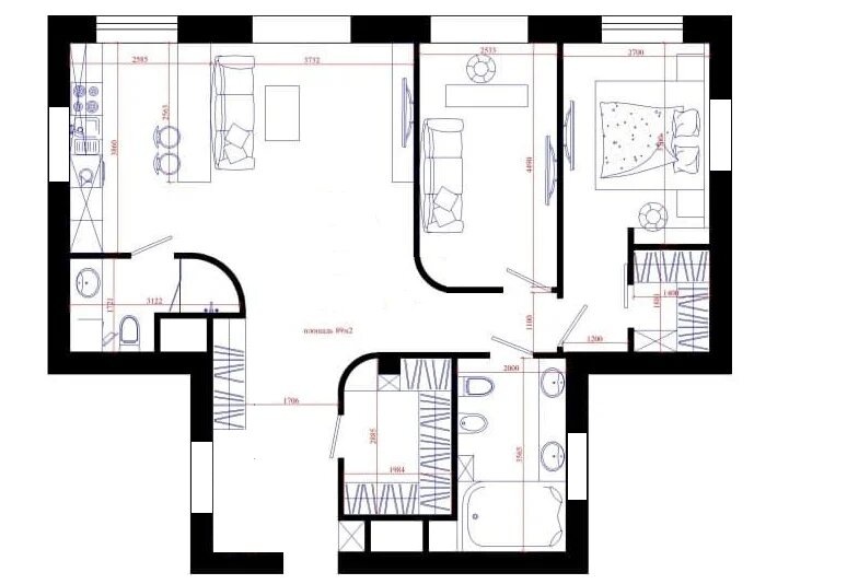
Отсюда в планировках появляются узенькие комнатушки, закругленные или косые перегородки, стоящие под 45 градусов, вырисовываются какие-либо ниши, будто для встроенных шкафов и прочие вещи — другими словами, начинается экономия пространства в каждой комнате, так как ничего не помещается в это пространство.

Как вы уже понимаете, вписывание нужных помещений в ограниченное габаритами дома пространство — это в корне неверный подход.

Как правильно определиться с размерами дома?

Размеры дома сами определятся, когда будут отдельно выписаны все помещения, в которых у будущего хозяина есть потребность — вот это является верным подходом!

У каждого из людей — свои потребности, поэтому я не люблю типовые проекты. Конфигурация дома сама проявляется, когда схематично наносятся комнаты.

К примеру, минимальные показатели помещений по квадратуре для комфортности проживания 4-х жильцов:

  • кухня-столовая — 14 кв.м.
  • с/у (совместный) — 5 кв.м.
  • коридор — 2 кв.м.
  • спальни — 12 кв.м. (3 спальни — 36 кв.м.)
  • гостиная — 18 кв.м.
  • гардероб — 2 кв.м.
  • котельная — 5 кв.м.

В итоге, по вышеуказанным данным — мы имеем минимальную общую площадь всех помещений в чистом виде: 82 кв.м.

А это только один с/узел и дом без дополнительной комнаты, т.е. гостей разместить будет негде! К полученному значению требуется добавить площадь несущих стен и перегородок, что приблизительно составляет 5% от площади или в пересчете на метры ~4 кв.м.

Итого, внутренняя общая площадь — 86 кв.м. (82+4)

-3

Какой внешний размер дома может быть у дома при 86 кв.м.? Если учесть, что толщина внешних стен около 0,5 м., то площадь, занимаемая домом на участке приблизительно составит 110 кв.м. — и это только при минимальных потребностях.

В итоге получается, чтобы более-менее создать комфорт проживания и не ждать друг друга по утрам у входа в туалет, нужно иметь дом не менее 100 кв.метров внутренней общей площади, а с учетом толщины стен это уже дома не 9х9 и 10х10, а минимум 11х11, 10х12 или 9х13.

При организации второго этажа, обязательно нужно учитывать площадь лестницы, которая отбирает как минимум 10 кв.м., из них 5 квадратов с первого и 5 со второго этажей.

А на этом пожалуй всё, надеюсь, статья была для Вас полезной!

И, еще раз, основное правило: Только компоновка и планировка помещений определяют внешний вид дома, а не наоборот!

----

Уважаемые читатели, на протяжении 3 лет, в свободное от строительства дома время, я увлекаюсь созданием скульптур из металлолома, делаю различные предметы интерьера и дизайнерские вещи из стали.

-4

Если вам интересно это направление, то приглашаю Вас на свой недавно созданный телеграм-канал: ART-Metal: живая сталь. Здесь я публикую все свои новые работы и иногда раскрываю некоторые секреты обработки металла :-)

С уважением, Роман, автор блога "Строю для себя"!