Добавить в корзинуПозвонить
Найти в Дзене
DIVAN.RU

Бюджетный и яркий ремонт евродвушки 35 кв.м

Эту квартиру оформили в духе баухауз. Графичности дизайну добавляет черная полоса по периметру всех комнат. Объект: студия 35 кв.м, г. Новосибирск, ЖК «Никольский парк» Автор проекта: дизайнер Анна Сотикова, автор фото Дмитрий Шибаев Бюджет проекта: 1,4 млн руб. Объект — однокомнатная квартира (или евродвушка) площадью 35 кв.м. Жилую комнату спроектировали так, чтобы ее можно было использовать как спальню, детскую или отдельную гостиную. Часть прихожей объединили с комнатой, выделили место под нишу для кровати (при желании в этой нише можно будет оформить гардеробную). Обустроили кухню-гостиную, входную зону и совмещенный санузел с душевой. Застройщик сдавал объект с предчистовой отделкой. Стены пришлось заново выравнивать, а электрику переработать под нужды проекта. Стиль баухаус — это прежде всего функциональность, технологичность и геометричность форм. Его отличают максимально простые, но при этом эстетичные формы, многозадачность каждого элемента обстановки, надежность и доступност
Оглавление

Эту квартиру оформили в духе баухауз. Графичности дизайну добавляет черная полоса по периметру всех комнат.

Автор проекта: дизайнер Анна Сотикова, фотограф Дмитрий Шибаев
Автор проекта: дизайнер Анна Сотикова, фотограф Дмитрий Шибаев

Объект: студия 35 кв.м, г. Новосибирск, ЖК «Никольский парк»

Автор проекта: дизайнер Анна Сотикова, автор фото Дмитрий Шибаев

Бюджет проекта: 1,4 млн руб.

Задачи дизайнеру

  • Исправить «косяки» застройщика и сделать в квартире ремонт под продажу (нейтральная отделка плюс яркие акценты, которые выделят предложение из общей массы).
  • Создать универсальное и трансформируемое под разную аудиторию пространство.
  • И все это с минимальным бюджетом.

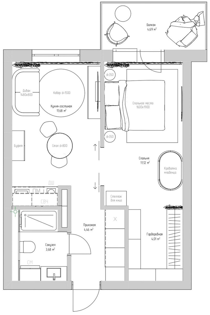
О планировке

Объект — однокомнатная квартира (или евродвушка) площадью 35 кв.м. Жилую комнату спроектировали так, чтобы ее можно было использовать как спальню, детскую или отдельную гостиную. Часть прихожей объединили с комнатой, выделили место под нишу для кровати (при желании в этой нише можно будет оформить гардеробную). Обустроили кухню-гостиную, входную зону и совмещенный санузел с душевой.

Застройщик сдавал объект с предчистовой отделкой. Стены пришлось заново выравнивать, а электрику переработать под нужды проекта.

О концепции

Стиль баухаус — это прежде всего функциональность, технологичность и геометричность форм. Его отличают максимально простые, но при этом эстетичные формы, многозадачность каждого элемента обстановки, надежность и доступность.

Цветовое решение пространства: светлая база и яркие акценты «чистых» цветов: красного и синего. Эффектный и недорогой прием — черная полоса по периметру стен, которая повторяет линию плинтуса. Чтобы «связать» комнаты по смыслу, на пол единым контуром уложили ламинат, а все стены в квартире оклеили одинаковыми обоями под покраску.

Кухня-гостиная

В комнате площадью 11 кв.м совместили зоны готовки и отдыха.

Проблема и решение: корпусную мебель с яркими деталями оказалось трудно найти в магазинах с готовыми решениями или на маркетплейсах. А изготовить их под заказ в рамках бюджета не удалось. Решение оказалось простым: были куплены обычные белые шкафы, которые перекрасили в нужные оттенки.

Автор проекта: дизайнер Анна Сотикова, фотограф Дмитрий Шибаев
Автор проекта: дизайнер Анна Сотикова, фотограф Дмитрий Шибаев

Те же оттенки используются и на стенах. Краску нанесли на обои, поскольку подготовка стен потребовала бы значительных затрат. Светильник над диваном покрасили вместе с частью стены, в результате чего получился цельный красный прямоугольник.

Кухонный гарнитур установили в нишу. Часть стены и открытую полку также выкрасили в красный, добавили яркий смеситель.

Автор проекта: дизайнер Анна Сотикова, фотограф Дмитрий Шибаев
Автор проекта: дизайнер Анна Сотикова, фотограф Дмитрий Шибаев

➡️В кадре буфет Нордик от бренда divan.ru >>

Для хранения посуды был выбран буфет Нордик от divan.ru со стеклянными фасадами. Задняя стенка в стандартном исполнении белая — ее перекрасили в синий. На таком фоне даже простые белые тарелки выглядят эффектнее. Обеденную зону дополнили круглым столом и пластиковыми стульями, среди которых есть один красный.

Диван Роттердам с разноцветными пуговицами заказали в divan.ru, как и большую часть мебели в квартиру. В «Конструкторе» на сайте больше 250 вариантов обивки, можно даже поменять цвет деревянных ножек.
Автор проекта: дизайнер Анна Сотикова, фотограф Дмитрий Шибаев
Автор проекта: дизайнер Анна Сотикова, фотограф Дмитрий Шибаев

➡️В кадре диван Роттердам от бренда divan.ru >>

Этот диван сейчас можно приобрести с выгодой до 10 000₽*! Успейте купить мебель и аксессуары на праздничной распродаже со скидками>>

-6

ТВ-тумбу Имин, расположенную на противоположной стене, также кастомизировали, перекрасив основание и ручки в синий цвет. Мелкие детали способны значительно изменить дизайн типовых моделей.

Автор проекта: дизайнер Анна Сотикова, фотограф Дмитрий Шибаев
Автор проекта: дизайнер Анна Сотикова, фотограф Дмитрий Шибаев

➡️В кадре ТВ-тумба Имин от бренда divan.ru >>

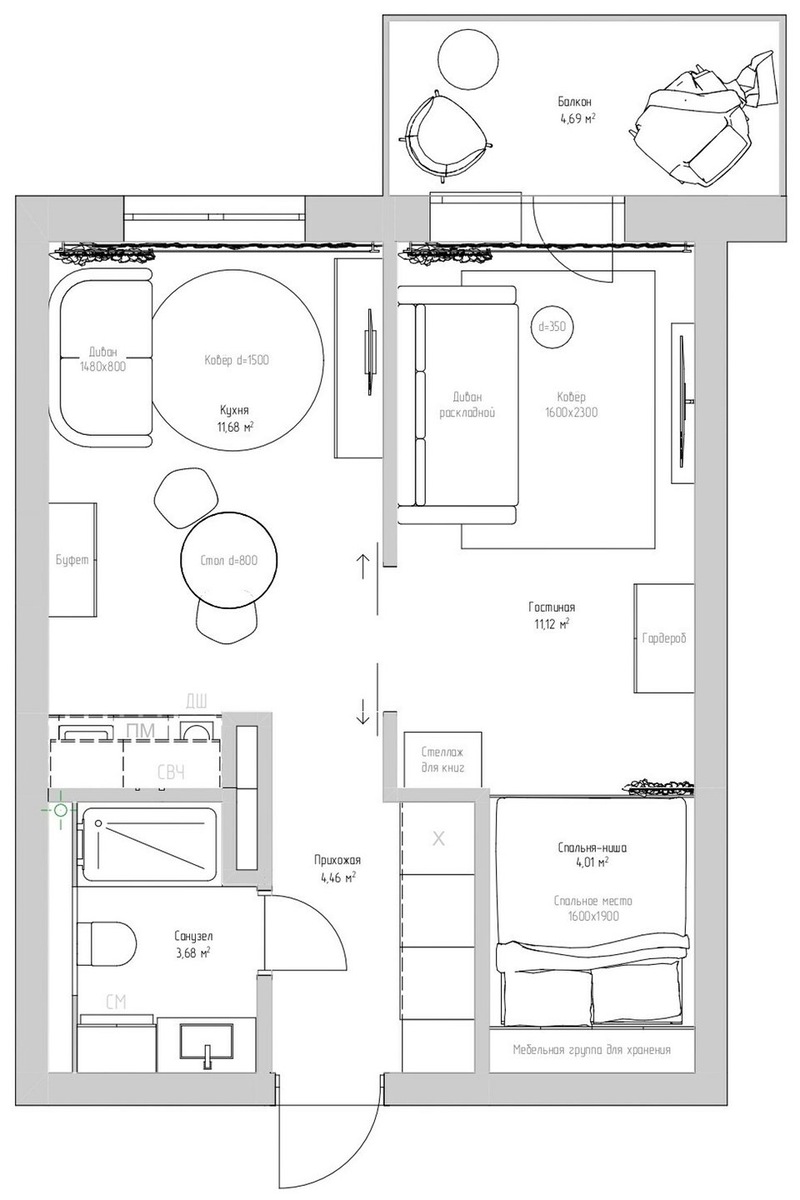
Спальня-гостиная

Жилая комната площадью 11 квадратных метров разделена на зоны гостиной и спальни. У окна установлен раскладной диван.

Автор проекта: дизайнер Анна Сотикова, фотограф Дмитрий Шибаев
Автор проекта: дизайнер Анна Сотикова, фотограф Дмитрий Шибаев

Несмотря на то, что квартира однокомнатная, было принято решение обустроить полноценное спальное место. Зону спальни площадью 4 кв.м организовали в нише. Здесь установили двуспальную кровать с ящиком для постельных принадлежностей. Над ней расположены подвесные шкафы с полками. Так как стандартные секции не подходили, шкафы были изготовлены из фанеры рабочими, выполняющими ремонт. Фанеру отшлифовали, загрунтовали и покрасили.

Шкаф для одежды рядом с нишей — Нордик от divan.ru, который также кастомизировали с помощью красной краски, подобно стеллажу Копенгаген.
Автор проекта: дизайнер Анна Сотикова, фотограф Дмитрий Шибаев
Автор проекта: дизайнер Анна Сотикова, фотограф Дмитрий Шибаев

➡️В кадре шкаф Нордик от бренда divan.ru >>

Санузел

В санузле использовали два вида плитки: белую — на стенах, с геометрическим рисунком — на полу. Стояк, разводку труб и инсталляцию спрятали за фальшстеной. Душевая с поддоном из красного керамогранита расположена в нише. Раковина на металлическом основании — под ней стоит корзина для белья. Рядом займет место стиральная машина, а над ней — закрытый подвесной шкаф. На стене сбоку — узкий вертикальный полотенцесушитель.

Прихожая

В прихожей площадью 4 кв.м потолок, стены и шкафы — белые. Только акцентные синие ручки мебели и черная полоска на стенах привлекают внимание. Один из шкафов скрывает холодильник, для которого не нашлось места на кухне. Дверь в ванную комнату выполняет функцию ростового зеркала.

Автор проекта: дизайнер Анна Сотикова, фотограф Дмитрий Шибаев
Автор проекта: дизайнер Анна Сотикова, фотограф Дмитрий Шибаев

==========

Оцените интерьер в комментариях, а если материал понравился — не забудьте поставить лайк👍

🖤divan.ru — не только блог про интерьеры, но и производитель доступной дизайнерской мебели. Ищите новые идеи и переходите на сайт, чтобы воплотить их в жизнь.

*Цены актуальны на момент публикации статьи