Добавить в корзинуПозвонить
Найти в Дзене
ДОМОСБОР

Дом, который создан для комфортной жизни. Каркасно-панельный дом по проекту KRP 107

Вы мечтаете о доме, который станет отражением ваших ценностей и стиля жизни? Проект каркасно-панельного дома KRP-107 сочетает в себе скандинавский минимализм, продуманную планировку и передовые технологии строительства Общая площадь дома — 148 м2, из которых 76 м2 отведено под жилую зону, где каждая комната находит свое место в общей концепции уюта и функциональности. Планировка продумана до мелочей: Дом выполнен в скандинавском стиле: прямоугольная форма, лаконичные линии, и двускатная крыша делают его визуально легким и гармоничным. Панорамные окна добавляют эстетики и открывают доступ к естественному свету, делая внутреннее пространство максимально светлым и просторным. Габариты дома — 10х14, он идеально впишется в участок средних размеров, оставив место для сада или зоны отдыха. Дом построен с использованием многослойных деревянных панелей, которые обеспечивают:
Оглавление

Вы мечтаете о доме, который станет отражением ваших ценностей и стиля жизни? Проект каркасно-панельного дома KRP-107 сочетает в себе скандинавский минимализм, продуманную планировку и передовые технологии строительства

Эстетика и функциональность: что внутри?

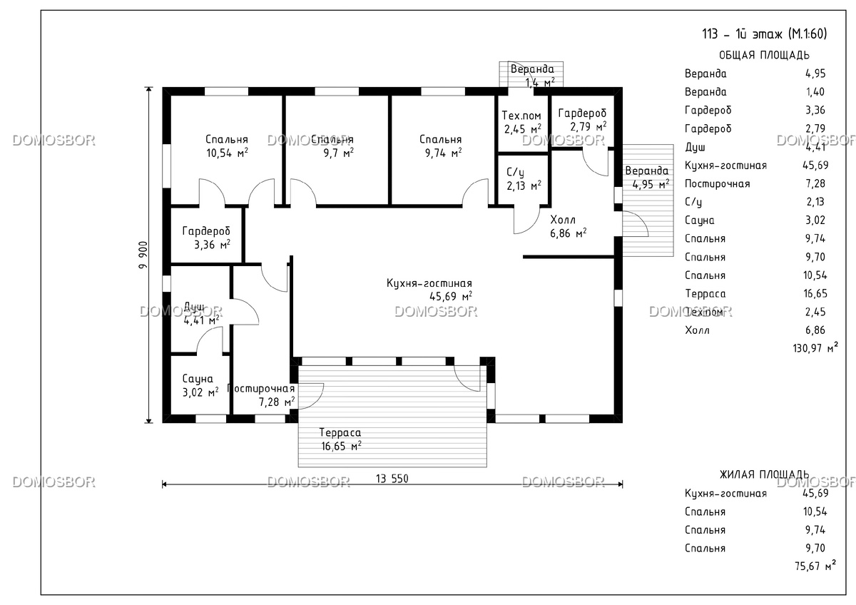
Общая площадь дома — 148 м2, из которых 76 м2 отведено под жилую зону, где каждая комната находит свое место в общей концепции уюта и функциональности.

Планировка продумана до мелочей:

  • Просторная кухня-гостиная площадью 46 м2. Это сердце дома, где будет уютно собираться всей семьей.
  • Три спальни. Уютные, изолированные комнаты для отдыха каждого члена семьи.
  • Два санузла. Рациональное решение для удобства, исключающее очереди по утрам.
  • Сауна. Личный спа-уголок для расслабления и восстановления сил.
  • Гардеробная и техническое помещение. Дополнительное пространство для хранения вещей и бытовой техники.
  • Терраса и веранда. Прекрасное место для утреннего кофе, вечерних посиделок или отдыха на свежем воздухе.

Внешний вид: современная классика

Дом выполнен в скандинавском стиле: прямоугольная форма, лаконичные линии, и двускатная крыша делают его визуально легким и гармоничным.

Панорамные окна добавляют эстетики и открывают доступ к естественному свету, делая внутреннее пространство максимально светлым и просторным.

Габариты дома — 10х14, он идеально впишется в участок средних размеров, оставив место для сада или зоны отдыха.

Почему именно каркасно-панельная технология?

Дом построен с использованием многослойных деревянных панелей, которые обеспечивают:

  • Тепло и энергоэффективность. Такие стены сохраняют тепло зимой и прохладу летом.
  • Быстрое строительство. Технология позволяет сократить время возведения дома без ущерба качеству.
  • Экологичность. Используемые материалы безопасны для здоровья и окружающей среды.
-2

Характеристики дома

  • Общая площадь: 148 м2
  • Полезная площадь: 131 м2
  • Жилая площадь: 76 м2
  • Габариты: 10 х 14 м
  • Этажность: 1 этаж
  • Кол-во спален: 3 спальни
  • Кол-во санузлов: 2

Ваш дом — ваша история. Не откладывайте мечту — воплощайте ее уже сегодня!