Найти в Дзене

Планировочное решение квартиры для семьи с двумя детьми (110 кв.м.)

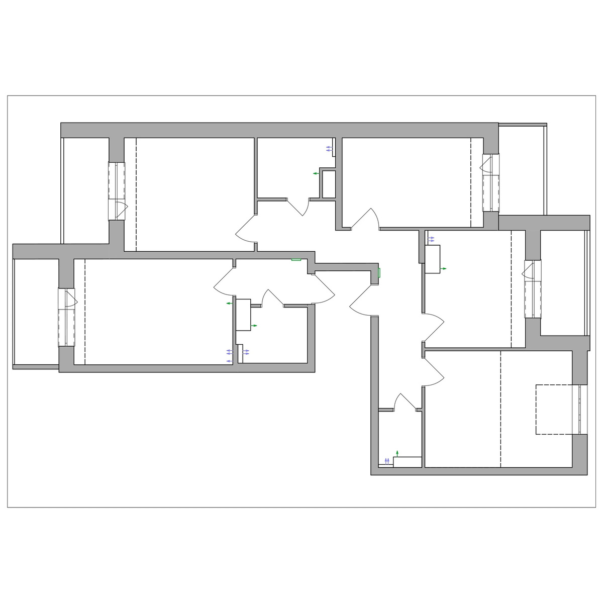
Данный объект находится в Санкт-Петербурге. Главная задача - удобно совместить две квартиры в одну (студию и 3-комнатную квартиры). Прихожая сделана за счет общего коридора дома. Объединены 3 комнаты и коридор в пользу кухни-гостиной. Одна комната поделена на две: гардеробная и кабинет. Отдельная мастер-спальня со своей ванной комнатой. Детская комната с двухъярусной кроватью, которую в дальнейшем можно заменить на отдельностоящие кровати. Вторая ванная комната находится рядом с детской, что очень удобно. Плюс около санузла есть отдельный постирочный шкаф.
Для заказа дизайн-проекта интерьера переходи по ссылке: taplink.cc/ekaterina_axm

Данный объект находится в Санкт-Петербурге. Главная задача - удобно совместить две квартиры в одну (студию и 3-комнатную квартиры).

Прихожая сделана за счет общего коридора дома.

Объединены 3 комнаты и коридор в пользу кухни-гостиной.

Одна комната поделена на две: гардеробная и кабинет.

Отдельная мастер-спальня со своей ванной комнатой.

Детская комната с двухъярусной кроватью, которую в дальнейшем можно заменить на отдельностоящие кровати.

Вторая ванная комната находится рядом с детской, что очень удобно. Плюс около санузла есть отдельный постирочный шкаф.

Для заказа дизайн-проекта интерьера переходи по ссылке:
taplink.cc/ekaterina_axm